Stathern Road, Eastwell

£595,000

3 Bedroom Detached Bungalow for sale in Eastwell

2 3 2
  • Stunning Detached Bungalow
  • Thoughtfully Extended
  • Tastefully Modernised & Updated Throughout
  • 3 Double Bedrooms
  • Stunning Open Plan Living/Dining Kitchen
  • Ensuite & Separate Bathroom
  • Utility & Cloak Room
  • Delightful Level Plot
  • Considerable Level Of Parking
  • Planning In Place For Treble Garage

** STUNNING DETACHED BUNGALOW ** THOUGHTFULLY EXTENDED ** TASTEFULLY MODERNISED & UPDATED THROUGHOUT ** 3 DOUBLE BEDROOMS ** STUNNING OPEN PLAN LIVING/DINING KITCHEN ** ENSUITE & SEPARATE BATHROOM ** UTILITY & CLOAK ROOM ** DELIGHTFUL LEVEL PLOT ** CONSIDERABLE LEVEL OF PARKING ** PLANNING IN PLACE FOR TREBLE GARAGE **

We have pleasure in offering to the market this stunning, individual, detached bungalow which has seen a significant programme of redevelopment, having been thoughtfully designed, reconfigured and modernised to a high specification to create a light and airy single storey home within within this quaint hamlet.

The property proves a versatile level of accommodation depending on a prospective client's needs, offering up to three double bedrooms which of course could alternatively be utilised as reception space. The principal room affords a contemporary ensuite and there is a separate main bath/shower room. In addition there are two main reception areas, including a stunning open plan living/dining kitchen which is flooded with light, benefitting from full height glazed doors leading out into the rear garden as well as three sky lanterns to the ceiling. The kitchen is beautifully appointed with a generous range of units finished in heritage style colours with quartz preparation surfaces and integrated appliances and is a well proportioned space, large enough to accommodate both living and dining areas. This links through into a further reception space with a log burning stove and window to the front. A useful utility space is, again, well appointed to complement the main kitchen and leads through into what is potentially a secondary entrance hall with cloak room off.

The property is neutrally decorated throughout and benefits from underfloor heating, double glazed windows and upgraded oil fired central heating.

As well as the internal accommodation the property occupies a delightful plot which is relatively generous by modern standards, set well back from the lane behind an electric gated frontage beyond which lies a considerable level of off road parking (with planning approved for a double garage with additional car port) The frontage has been landscaped for relatively low maintenance living and to maximise off road parking. To the rear there is a pleasant, enclosed, mainly lawned garden with an initial terrace providing a pleasant outdoor space linking back into the main living area of the kitchen.

Overall this is a fantastic opportunity for a wide variety of prospective purchasers, whether that is professional couples. potentially families or also those downsizing from considerably larger dwellings and looking for a single storey home within a pleasant village setting.

Eastwell - Eastwell lies in the Vale of Belvoir and amenities can be found in the adjacent village of Stathern including primary school and village shop. Further facilities can be found in the nearby market towns of Bingham, Grantham and Melton Mowbray and from Grantham there is a high speed train to King's Cross in just over an hour. The village is also convenient for the A52, A46 and A1.

AN ATTRACTIVE COMPOSITE COTTAGE STYLE ENTRANCE DOOR WITH DOUBLE GLAZED LIGHT LEADS THROUGH INTO:

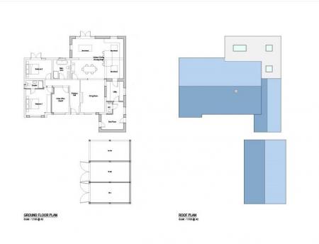
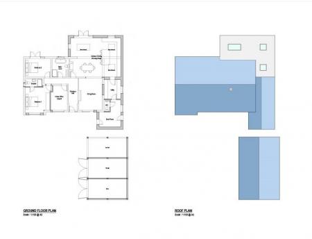
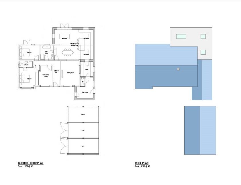
Initial L Shaped Entrance Hall - 5.18m x 5.31m max (17' x 17'5" max) - A pleasant initial entrance vestibule having double glazed vertical light to the front, deep skirtings, inset downlighters to the ceiling, central heating radiator and engineered oak internal doors leading to:

Open Plan Living/Dining Kitchen - 7.82m x 6.10m (25'8" x 20') - A fantastic, well proportioned, everyday living/entertaining space flooded with light benefitting from windows to two elevations as well as two central sky lanterns over the reception and kitchen areas. In turn this area is also open plan to the main sitting room which, combined, creates a wonderful space.

The kitchen is beautifully appointed with a generous range of Shaker style units finished in heritage colours providing a fantastic level of storage as well as having a generous run of quartz preparation surfaces including a central island unit which again provides additional storage and a breakfast bar for informal dining. Integrated appliances include Franke induction hob, Neff fan assisted oven and combination microwave, full height fridge and freezer and under counter dishwasher. The kitchen also having twin bowel Rangemaster ceramic sink with brush metal swan neck mixer tap, inset downlighters to the ceiling, tiled floor with a part wet and part electric underfloor heating system and double glazed windows to the rear. The kitchen in turn is open plan to a living/dining space which provides a versatile reception area with French doors leading out into the rear garden.

A large open doorway leads through into:

Sitting Room - 5.11m x 3.61m (16'9" x 11'10") - A light and airy space having aspect to the front, the focal point to the room being a chimney breast with slate hearth, exposed brick back, inset solid fuel stove, timber mantel over and alcoves to the side. The room also having inset downlighters to the ceiling, central heating radiator, deep skirtings and double glazed window.

Returning to the kitchen a further door leads through into:

Utility Room - 3.02m x 2.39m (9'11" x 7'10") - Fitted with a particularly generous range of storage complementing the main kitchen units, having built in cloaks and larder cupboards with overhead storage, addition base and drawer units, quartz work surface with undermounted ceramic sink with brush metal swan neck mixer tap and quartz upstands, plumbing for washing machine, space for tumble dryer, inset downlighters to the ceiling, continuation of the tiled floor, double glazed window to the side and further door leading to:

Secondary Entrance Hall - 4.22m x 3.40m max (13'10" x 11'2" max) - A well proportioned L shaped space which could be utilised as the main entrance or useful boot room, having composite stable door, additional double glazed window at the rear, attractive tiled floor, deep skirtings, inset downlighters to the ceiling and a further door into:

Cloak Room - 1.83m x 0.86m (6' x 2'10") - Having a two piece suite comprising close coupled WC and heritage style vanity unit with inset washbasin with chrome mixer tap, continuation of the tiled floor, inset downlighters and extractor to the ceiling.

RETURNING TO THE INITIAL ENTRANCE HALL FURTHER DOORS LEAD TO:

Bedroom 1 - 4.11m max (3.73m min) x 3.96m max (13'6" max (12'3 - A well proportioned double bedroom benefitting from ensuite facilities having aspect to the front and being tastefully appointed with a range of integrated furniture including 3/4 wardrobes with overhead storage cupboards and central drawer unit, and alcove designed for flat screen television, the room also having deep skirtings, central heating radiator, double glazed window and further door leading through into:

Ensuite Shower Room - 2.57m x 1.19m (8'5" x 3'11") - Beautifully appointed with a three piece suite with both traditional and contemporary elements comprising double width shower enclosure with sliding glass door and flush wall mounted shower mixer with both independent handset and rainwater rose over, two piece heritage style suite with close coupled WC and vanity unit with inset washbasin with chrome mixer tap and LED mirror above, deep skirtings, contemporary towel radiator and double glazed window to the side.

Bedroom 2 - 4.04m x 2.87m (13'3" x 9'5") - A further double bedroom tastefully appointed with aspect out into the rear garden, fitted with bespoke wardrobes with low level drawer units and having central heating radiator, deep skirtings and double glazed French door and window.

Bedroom 3/Reception - 3.94m x 2.51m (12'11" x 8'3") - A versatile room which could be utilised as a further double bedroom or alternatively would make an excellent home office or snug, having aspect to the front, central heating radiator, deep skirtings, inset downlighters to the ceiling and double glazed window.

Bathroom - 2.79m x 2.79m (9'2" x 9'2") - A well proportioned family bath/shower room tastefully appointed with a contemporary suite comprising double width shower enclosure with sliding glass screen and flush wall mounted shower mixer with both independent handset and rainwater rose over, double ended bath with centrally mounted mixer tap, close coupled WC and attractive heritage style vanity unit with inset washbasins with double chrome mixer taps and LED mirror above, inset downlighters to the ceiling, deep skirtings, contemporary towel radiator, electric underfloor heating and double glazed window to the rear.

Exterior - The property occupies a generous level plot on the outskirts of this attractive hamlet, set well back behind a fenced frontage with a five bar electric field gate leading onto a substantial pebbled driveway providing a considerable level of off road parking and a pathway leading to the front door. It's worth noting that planning permission has been granted for the addition of a detached garage with further details available under Ref: 21/00123/FULHH. To the rear of the property is an enclosed garden with initial terrace leading onto a central lawn with established borders, outside cold water tap and courtesy gate returning to the front of the property.

Council Tax Band - Melton Borough Council - Band E

Tenure - Freehold

Additional Notes - We understand the property is on mains electricity and water with oil fired central heating (information taken from Energy performance certificate and/or vendor).

Additional Information - Please see the links below to check for additional information regarding environmental criteria (i.e. flood assessment), school Ofsted ratings, planning applications and services such as broadband and phone signal. Note Richard Watkinson & Partners has no affiliation to any of the below agencies and cannot be responsible for any incorrect information provided by the individual sources.

Flood assessment of an area:_
https://check-long-term-flood-risk.service.gov.uk/risk#

Broadband & Mobile coverage:-
https://checker.ofcom.org.uk/en-gb/broadband-coverage

Radon Gas:-
https://www.ukradon.org/information/ukmaps

School Ofsted reports:-
https://reports.ofsted.gov.uk/

Planning applications:-
https://www.gov.uk/search-register-planning-decisions

Planning For Garage - The property offers a considerable level of off road parking and, as part of the original application, approval was given for a treble fronted garage and car port to the front of the property. This would allow an prospective purchaser the ability to add a garage at a later date if required. Further plans can be found on the original application on Melton Borough Council's planning portal under Ref: 21/00123/FULHH.

Property Ref: 59501_34270911

Share:

Similar Properties

Meadows Lane, Hose

4 Bedroom Detached House | £595,000

** STUNNING CONTEMPORARY FAMILY HOME ** IN THE REGION OF 1,895 SQ.FT. ** 3-4 BEDROOMS ** 2 ENSUITES & MAIN BATHROOM ** W...

Rutland Square, Barkestone Le Vale

4 Bedroom Detached House | £595,000

** WELL PROPORTIONED PERIOD HOME ** EXTENDED ACCOMMODATION ** IN THE REGION OF 2,200 SQ.FT. ** 4 BEDROOMS 2 MAIN RECEPTI...

Penson Gardens, Bingham

5 Bedroom Detached House | Guide Price £595,000

** DETACHED FAMILY HOME ** CONSTRUCTED BY DAVID WILSON HOMES ** APPROACHING 2,000 SQ.FT. ** 5 BEDROOMS ** 2 ENSUITES & M...

Orchard Park, Long Bennington

5 Bedroom Detached House | £599,995

** VERSATILE DETACHED FAMILY HOME ** 5 DOUBLE BEDROOMS ** 2 ENSUITE & MAIN BATHROOM ** 4 RECEPTIONS ** TASTEFULLY APPOIN...

Brandhills View, Alverton

4 Bedroom Barn Conversion | Offers in region of £600,000

** INDIVIDUAL CHARACTER CONVERSION ** APPROACHING 2100 SQ FT ** 3 DOUBLE BEDROOMS ** 2 MAIN RECEPTIONS ** OPEN PLAN LIVI...

Browns Lane, East Bridgford

3 Bedroom Detached House | £612,000

** INDIVIDUAL DETACHED HOME ** VERSATILE ACCOMMODATION OVER 2 FLOORS ** CONSIDERABLE POTENTIAL ** 3 BEDROOMS ** 2 RECEPT...

Richard Watkinson & Partners (Bingham)

10 Market Street, Bingham, Nottinghamshire, NG13 8AB

01949 836678

How much is your home worth?

Use our short form to request a valuation of your property.

Request a Valuation

Mortgage Calculator

Amount Borrowed: £
Total Amount Repayable: £
Total Monthly Payment: £
©2026 The Guild of Property Professionals. All rights reserved. Terms and Conditions | Privacy Policy | Cookie Policy | Complaints Policy | Members Login
The Guild of Property Professionals Trading Address: 121 Park Lane, London W1K 7AG. GPEA Limited. Registered in England & Wales.  Company No: 02819824.  Registered Office Address: 2 St. Stephen's Court, St. Stephen's Road, Bournemouth, Dorset, England, BH2 6LA.  VAT Registration No: 576 8795 61
Book a Property Valuation Update Cookies Preferences