Tonbridge Road, Bough Beech

Guide Price
£2,150,000

9 Bedroom Detached House for sale in Edenbridge

3 9 6
  • Grade II Listed 4 Bedroom Cottage
  • 1 Bedroom Annex with En-Suite Shower and Kitchenette
  • Listed Barn
  • Summerhouse
  • Delightful Gardens & Grounds
  • Approx 3 Acres
  • Isobel's Stables - 4 Bedroom Separate Oak Framed Conversion (currently used for Airbnb)

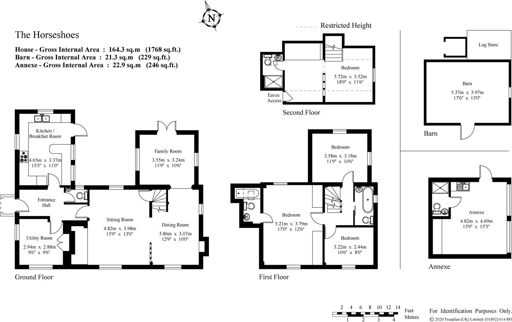
Charming Grade II listed detached 4 bedroom cottage including a 1 bedroom annexe, a further 4 bedroom oak framed barn and summerhouse, situated within delightful gardens and grounds of approximately three acres, in a semi-rural position

Accessed through double electric gates to an in and out gravel driveway, The Horseshoes is a quintessential and most attractive Grade II listed detached cottage believed to date back to the 16th century with later additions.

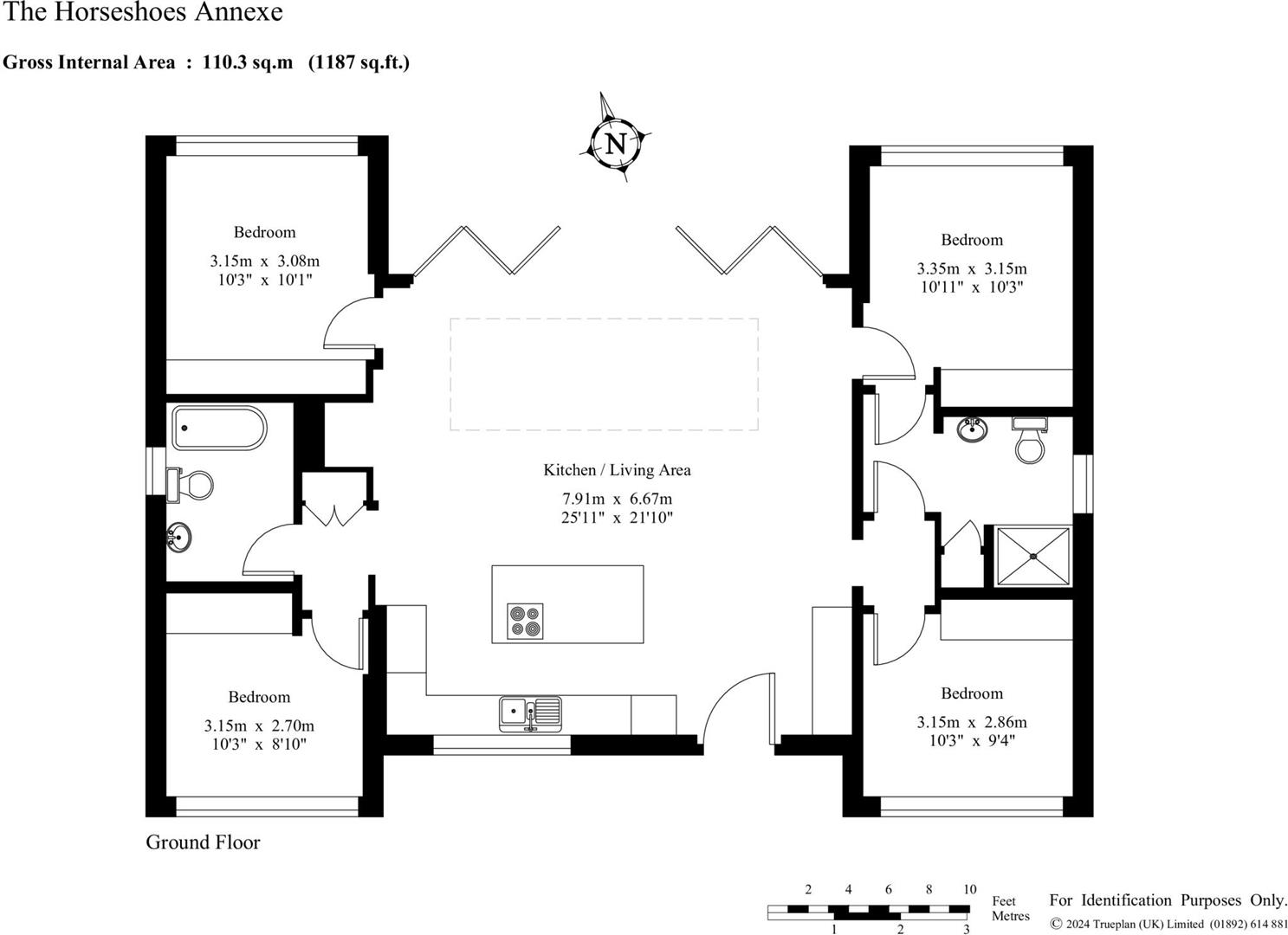
The property includes an oak framed four bedroom annexe currently used for Airbnb rental, generating a supplementary income of circa £50,000. Additionally, there is a converted garage into self-contained one bedroom accommodation.

All set within delightful gardens and grounds of about three acres offering wonderful views of the adjacent fields.

FEATURES

- The property retains many period features such as exposed wall and ceiling timbers, inglenook fireplace, wooden floors, and leaded light casement windows.

- Access through a covered entrance porch with glazed wooden door.

- Dual aspect sitting room with a brick inglenook fireplace with bressummer beam, leading via open stud work to the dining room with stairs to the first floor. The family room, adjacent to these areas, offers direct access to the terrace and garden, seamlessly extending the living space.

- Triple aspect kitchen with custom painted wooden units, granite work surfaces, and a breakfast bar. It is equipped with a Rangemaster cooker with a hob and extractor fan. Integrated fridge and space for dishwasher. A glazed door opens directly onto the terrace.

- The ground floor also includes a utility room and cloakroom.

- The principal bedroom features an ensuite bathroom with views to both the front and rear. Two further bedrooms share a family bathroom.

- Stairs lead to a further spacious bedroom with its own ensuite shower room.

OUTSIDE

- Charming converted garage comprising bedroom, shower room and kitchenette.

- The newly constructed single storey oak framed annexe with underfloor heating comprises four double bedrooms, two with a Jack & Jill shower room, whilst the other two bedrooms share the other bathroom. The bright and spacious open plan living area includes a well appointed hand painted kitchen with composite stone worktops and island unit/breakfast bar with integrated dishwasher and washing machine, Neff appliances and induction hob. There is ample space for a dining table. Bifold doors lead to the rear, opening onto a terrace that overlooks the fields.

- There is a summerhouse which is currently being used as an office.

- Delightful gardens with listed period barn and picturesque views of the surrounding fields. A paved terrace provides an ideal setting for outdoor entertaining, a secluded seating area, and a fenced natural pond. The grounds span to approximately three acres and offer walks across unspoiled farmland to Bough Beech reservoir and beyond.

PROPERTY INFORMATION

- Services: Mains Water and Electricity. Private Drainage. Oil fired Central Heating

- Local Authority: Sevenoaks District Council, 01732 227000
- Council Tax band G: £3,799.19 (2024/25)

- Fixtures and fittings are excluded from the sale but may be available by separate negotiation.

SITUATION

The Horseshoes occupies a convenient rural position between the Natural Trust Village of Chiddingstone, Bough Beech and Chiddingstone Causeway with its Post Office and Little Brown Jug Public House/Restaurant.

Wider shopping facilities are available from Sevenoaks, Tonbridge and Tunbridge Wells Town Centres all offer a wide range of shopping facilities as well as main line stations to London Charing Cross/Cannon Street. Similar services are available from Hildenborough Main Line Station. Nearby Penshurst Station has services to Tonbridge and Redhill.

There are a good number of well-regarded schools in the local area including Chiddingstone and Leigh Primary Schools. Grammar Schools for both Boys and Girls in Tonbridge and Tunbridge Wells as well as the Weald of Kent girl's grammar annexe in Sevenoaks. Tonbridge and Sevenoaks Public Schools and a variety of Preparatory Schools in and around Sevenoaks and Tonbridge including Hilden Grange, the Schools at Somerhill and New Beacon. Holmewood House at Langton Green and Walthamstow Hall for Girls.

The A21 gives access to the M25 and motorway network to Gatwick, Heathrow and Stansted airports, Channel Tunnel Terminus and Ports and Bluewater Shopping Centre.

Leisure facilities include Golf Courses at Hever and Nizels and Sailing at Bough Beech Reservoir. There is also a private health/fitness centre at Nizels. Tonbridge School Sports Centre.

Property Ref: 58845_33857146

Share:

Similar Properties

Somerden Green, Chiddingstone

8 Bedroom Detached House | Guide Price £1,975,000

Keepers Cottage is a delightful Grade II Listed property, dating in parts to circa 1585, situated in a tranquil no throu...

Forest Farm, Tonbridge

5 Bedroom Detached House | Offers in excess of £1,750,000

GUIDE PRICE: £1,750,000 - £1,950,000Superb twin roundel oast house, situated in an idyllic semi - rural setting, yet hig...

Off London Road, Westerham

6 Bedroom House | Guide Price £1,750,000

A unique opportunity to acquire one of Westerham's most historic homes, sensitively modernised to cater for 21st century...

Stonehouse Lane, Halstead, Nr. Sevenoaks

5 Bedroom Plot | Guide Price £2,250,000

UNIQUE REDEVELOPMENT OPPORTUNITY - Historic farmstead of circa 10 acres located to the south and west of Stonehouse Lane...

James Millard Independent Estate Agents (Hildenborough)

178 Tonbridge Road, Hildenborough, Kent, TN11 9HP

01732 834835

How much is your home worth?

Use our short form to request a valuation of your property.

Request a Valuation

Mortgage Calculator

Amount Borrowed: £
Total Amount Repayable: £
Total Monthly Payment: £
©2025 The Guild of Property Professionals. All rights reserved. Terms and Conditions | Privacy Policy | Cookie Policy | Complaints Policy | Members Login
The Guild of Property Professionals Trading Address: 121 Park Lane, London W1K 7AG. GPEA Limited. Registered in England & Wales.  Company No: 02819824.  Registered Office Address: 2 St. Stephen's Court, St. Stephen's Road, Bournemouth, Dorset, England, BH2 6LA.  VAT Registration No: 576 8795 61
Book a Property Valuation Update Cookies Preferences