Compass Close, Edgware

£595,000

2 Bedroom Apartment for sale in Edgware

1 2 2
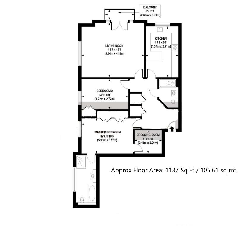
  • LUXURY 2 DOUBLE BEDROOM FLAT - 1137 SQ FT
  • MAIN BEDROOM WITH WALK IN WARDROBE AND EN-SUITE
  • STUNNING KITCHEN / BREAKFAST ROOM
  • SPACIOUS RECEPTION ROOM
  • BALCONY
  • SECURE UNDERGROUND PARKING
  • CLOSE TO SHOPS
  • LIFT
  • GATED ENTRANCE

Set within beautifully maintained communal gardens and built by the highly regarded developers Banner Homes, this impressive second-floor apartment offers both space and style in a prime Edgware location.

Accessed via a secure gated entrance, the property features both stairs and lift access. Upon entering, you're welcomed by a spacious hallway leading to a modern kitchen, complete with integrated appliances and a convenient dining area.

The generously proportioned lounge/dining room opens onto a private balcony, perfect for relaxing or entertaining. There are two well-sized double bedrooms and two contemporary bathrooms, including an en-suite and dressing area to the principal bedroom.

Additional benefits include an allocated parking space in a secure underground car park, along with visitor parking within the development.

Property Ref: 699857_34170685

Share:

Similar Properties

Hale Grove Gardens, London

3 Bedroom Flat | £595,000

Cosway Estates are pleased to offer for sale this 3 double bedroom 1st & 2nd floor GARDEN FLAT. The property is in IMMAC...

Silkfield Road, London

3 Bedroom House | £595,000

Located in a popular turning close to local schools and transport links, is this 3 bedroom semi-detached house offering...

Goodwyn Avenue, Mill Hill, NW7

2 Bedroom Apartment | £595,000

Beautifully Presented Large Two-Bedroom Ground Floor Garden Flat Moments from Mill Hill BroadwayJust a stone's throw fro...

Riverdene, Edgware

3 Bedroom Semi-Detached House | Offers in excess of £597,000

Edgware/Mill Hill Borders - We are pleased to offer for sale, this well-proportioned 3 bedroom property offering ample p...

Franco Avenue, Colindale, NW9

3 Bedroom Duplex | £597,000

OVER 1400 SQ FT - Cosway Estates are pleased to offer this stunning large well-presented three double bedroom duplex apa...

Wise Lane, Mill Hill, NW7

2 Bedroom End of Terrace House | Offers Over £600,000

Spacious 2-Bedroom Home with Garden - Chain Free - Excellent Location Near Mill Hill BroadwayThis well-presented two dou...

Cosway Estates (Mill Hill)

Mill Hill, London, NW7 4TD

020 8959 0011

How much is your home worth?

Use our short form to request a valuation of your property.

Request a Valuation

Mortgage Calculator

Amount Borrowed: £
Total Amount Repayable: £
Total Monthly Payment: £
©2025 The Guild of Property Professionals. All rights reserved. Terms and Conditions | Privacy Policy | Cookie Policy | Complaints Policy | Members Login
The Guild of Property Professionals Trading Address: 121 Park Lane, London W1K 7AG. GPEA Limited. Registered in England & Wales.  Company No: 02819824.  Registered Office Address: 2 St. Stephen's Court, St. Stephen's Road, Bournemouth, Dorset, England, BH2 6LA.  VAT Registration No: 576 8795 61
Book a Property Valuation Update Cookies Preferences