Farm Road, Edgware

£825,000
SSTC
This property listing is now SSTC

4 Bedroom Semi-Detached House for sale in Edgware

2 4 2
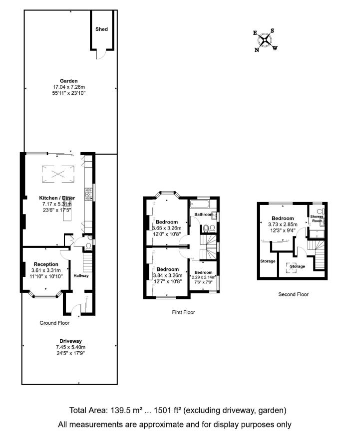
  • 1500 Sq Ft
  • 4 Bedroom Family Home
  • 2 Bathrooms + 1 W/C
  • Excellent Condition
  • Spacious Open-Plan Family Room
  • Formal Reception Room
  • Walking Distance To Edgware High Street
  • Prime Location

Stylish Four-Bedroom Family Home in a Prime Edgware Location

Set on the ever-popular Farm Road, this beautifully maintained four-bedroom, two-bathroom home offers the perfect blend of modern style and family-friendly living. Immaculately presented throughout, the property provides spacious accommodation ideal for both everyday life and entertaining.

The ground floor features a welcoming front reception room, leading into a bright and airy open-plan kitchen, living, and dining space - the heart of the home - with bi-folding doors opening onto a well-kept rear garden. A guest WC adds extra convenience.

Upstairs, the first floor hosts three well-proportioned bedrooms and a sleek family bathroom. The top floor is home to a large principal bedroom complete with an en-suite, creating a peaceful and private retreat.

Further highlights include off-street parking, side access, and a superb location just a short walk from Edgware High Street's array of shops, caf�s, restaurants, and excellent transport links. Sole Agent.

Property Ref: 699857_33294325

Share:

Similar Properties

Cheldon Avenue, London

4 Bedroom Semi-Detached House | £825,000

Located in the highly sought after Lidbury Square development and in excellent condition is this well proportioned 4 bed...

Church Close, Edgware

4 Bedroom Semi-Detached House | £825,000

EDGWARE/MILL BORDERS - Located in a quiet cul-de-sac in Edgware, this beautifully presented four bedroom, two bathroom f...

Gibbs Green, Edgware

4 Bedroom Semi-Detached House | £820,000

Mill Hill/Edgware Borders - Located in a sought after road within catchment of excellent local schools, is this well pre...

David Wildman Lane, London

4 Bedroom Semi-Detached House | £830,000

Situated in the highly sought after Millbrook Park Development is this modern 4 bedroom 2 bathroom property. On the grou...

Lawrence Gardens, Mill Hill, NW7

4 Bedroom Semi-Detached House | £835,000

Situated on one of Mill Hill's most sought after tree-lined roads, off Lawrence Street and within approximately 0.8 of a...

Aberdare Gardens, Mill Hill

5 Bedroom Semi-Detached House | £835,000

An immaculately presented and extended 4/5 bedroom property situated in a highly desirable location off Devonshire Road,...

Cosway Estates (Mill Hill)

Mill Hill, London, NW7 4TD

020 8959 0011

How much is your home worth?

Use our short form to request a valuation of your property.

Request a Valuation

Mortgage Calculator

Amount Borrowed: £
Total Amount Repayable: £
Total Monthly Payment: £
©2025 The Guild of Property Professionals. All rights reserved. Terms and Conditions | Privacy Policy | Cookie Policy | Complaints Policy | Members Login
The Guild of Property Professionals Trading Address: 121 Park Lane, London W1K 7AG. GPEA Limited. Registered in England & Wales.  Company No: 02819824.  Registered Office Address: 2 St. Stephen's Court, St. Stephen's Road, Bournemouth, Dorset, England, BH2 6LA.  VAT Registration No: 576 8795 61
Book a Property Valuation Update Cookies Preferences