Stoneleigh Avenue, Enfield, EN1

Asking Price
£400,000

3 Bedroom Terraced House for sale in Enfield

1 3 1
  • Three Bedroom Terraced House
  • Spacious Receptions/Lounge
  • Fitted Kitchen & 3 Piece Wet Room
  • Private Rear Garden with Outbuilding
  • Double Glazed & Gas Central Heating
  • EPC Rating: C | Council Tax Band: D
  • Potential for a Rear Extension & Loft Conversion (STPP)
  • Chain Free & Vacant

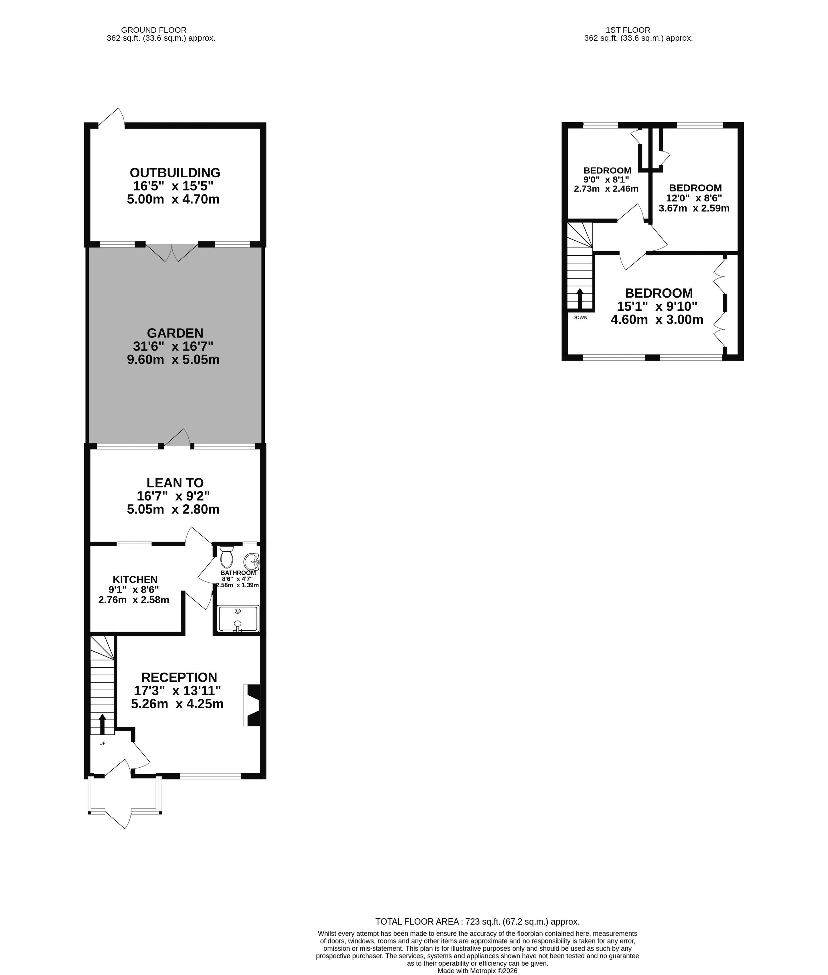
Filey Properties are pleased to present this Mid-Terraced Three-Bedroom House situated on the popular Stoneleigh Avenue, Enfield, EN1, offering spacious accommodation and excellent potential for further development.

The ground floor comprises a Large Reception/Lounge to the front, providing a bright and comfortable living space. To the rear of the property there is a Spacious Kitchen, offering ample room for dining and everyday family use. The ground floor also benefits from a Three-Piece Shower Room/Wet Room, providing convenient accessibility and practicality.

To the first floor, the property offers Three well-proportioned Bedrooms, making it ideal for families or buyers seeking additional living space.

Further benefits include Double Glazing, Gas Central Heating, a Private Rear Garden, and a useful Rear Outbuilding which can be utilised for storage, a workshop, or hobby space.

The property also offers excellent potential for future development, with scope to Extend to the Rear and potential for a Loft Conversion (STPP), allowing purchasers the opportunity to enhance the accommodation and add long-term value.

Stoneleigh Avenue is well positioned within Enfield, providing convenient access to local shops, amenities, and supermarkets. Transport links are available via Southbury Railway Station and Bush Turkey Street Railway Station, offering direct routes into Central London. A number of bus routes also serve the area. Furthermore, the property is ideally suited for families, with a range of well-regarded primary and secondary schools nearby.

This is a fantastic opportunity to acquire a well-located family home with generous living space and strong potential for future extension in a popular EN1 residential setting.

EPC Rating - C

Council Tax Band – D

Tenure – Freehold

Further Information

Conservation Area: No

Flood Risk: Very Low

Mobile Coverage: EE / Three / Vodafone / O2

Broadband: Basic (3 Mbps) / Superfast (54 Mbps) / Ultrafast (1000 Mbps)

Satellite/Fibre TV: BT / Sky / Virgin

Important Information

  • This is a Freehold property.

Property Ref: fps01470

Share:

Similar Properties

Scotland Green Road, Enfield. EN3

3 Bedroom House | Asking Price £390,000

FILEY PROPERTIES are delighted to offer on the market this THREE BEDROOM TERRACED HOUSE, situated in a highly convenient...

Turner Avenue, Tottenham, N15

2 Bedroom Flat | Asking Price £367,500

Filey Properties are delighted to offer on the market for sale this Two Bedroom, Split-Level, Ex-Local Authority Apartme...

Northumberland Park, Tottenham, N17

2 Bedroom Ground Floor Flat | Asking Price £340,000

FILEY PROPERTIES are delighted to offer on the market this TWO BEDROOM MAISONETTE benefitting from a Share of Freehold a...

South Road, Edmonton, N9

3 Bedroom Terraced House | Asking Price £425,000

FILEY PROPERTIES are delighted to offer on the market this THREE BEDROOM TERRACED HOUSE with, situated in a quiet reside...

Kingsland Road, Plaistow, E13

3 Bedroom House | Asking Price £435,000

Filey Properties are delighted to present this spacious Three Bedroom Terraced House located in the heart of Plaistow, E...

Durants Road, Enfield, EN3

3 Bedroom Terraced House | Asking Price £440,000

FILEY PROPERTIES are delighted to offer on the market this THREE BEDROOM TERRACED HOUSE with an Additional Loft Room & R...

Filey Properties (Enfield)

78 Lancaster Road, Enfield, London, EN2 0BZ

0203 231 4081

How much is your home worth?

Use our short form to request a valuation of your property.

Request a Valuation

Mortgage Calculator

Amount Borrowed: £
Total Amount Repayable: £
Total Monthly Payment: £
©2026 The Guild of Property Professionals. All rights reserved. Terms and Conditions | Privacy Policy | Cookie Policy | Complaints Policy | Members Login
The Guild of Property Professionals Trading Address: 121 Park Lane, London W1K 7AG. GPEA Limited. Registered in England & Wales.  Company No: 02819824.  Registered Office Address: 2 St. Stephen's Court, St. Stephen's Road, Bournemouth, Dorset, England, BH2 6LA.  VAT Registration No: 576 8795 61
Book a Property Valuation Update Cookies Preferences