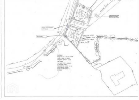
Drumary, Derrygonnelly, Enniskillen

POA

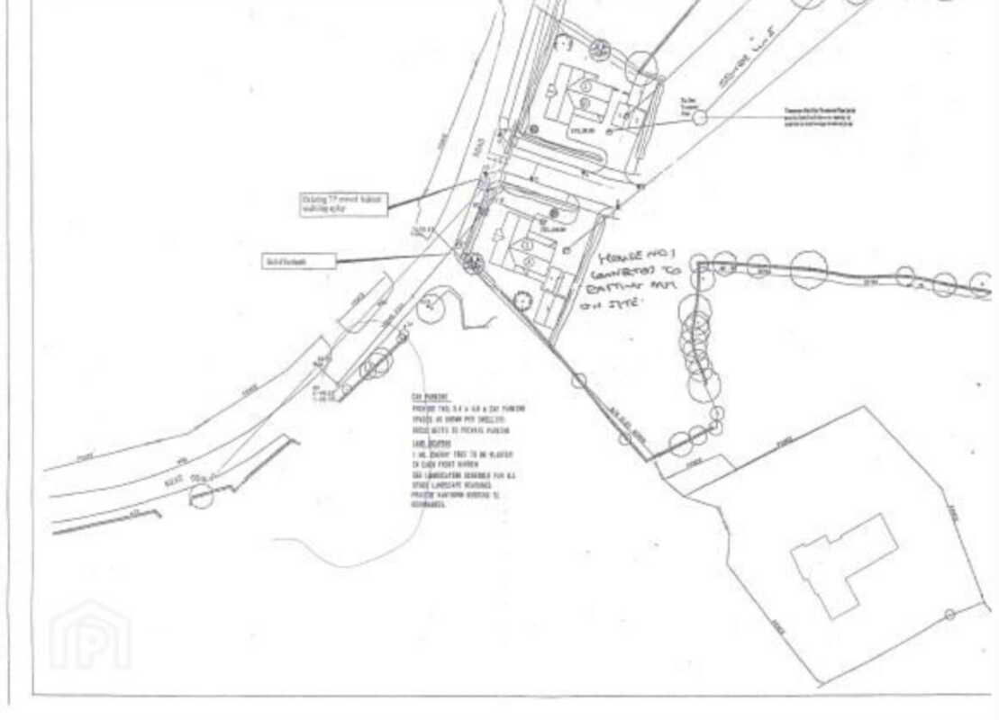
Land for sale in Enniskillen

  • C. 4 Acres
  • Dual Access Position
  • Edge of Village Point
  • Set Within The Local Limits
  • Currently Used for Agricultural Purposes
  • Planning Potential (Subject to Approval)
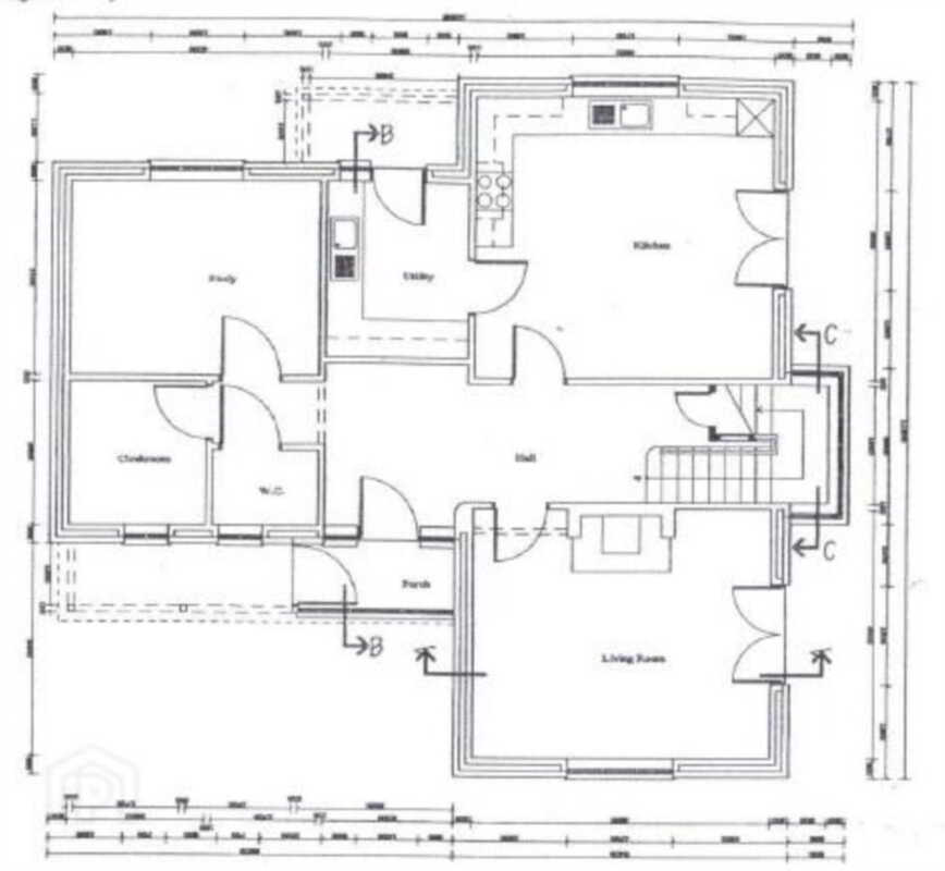
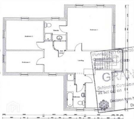
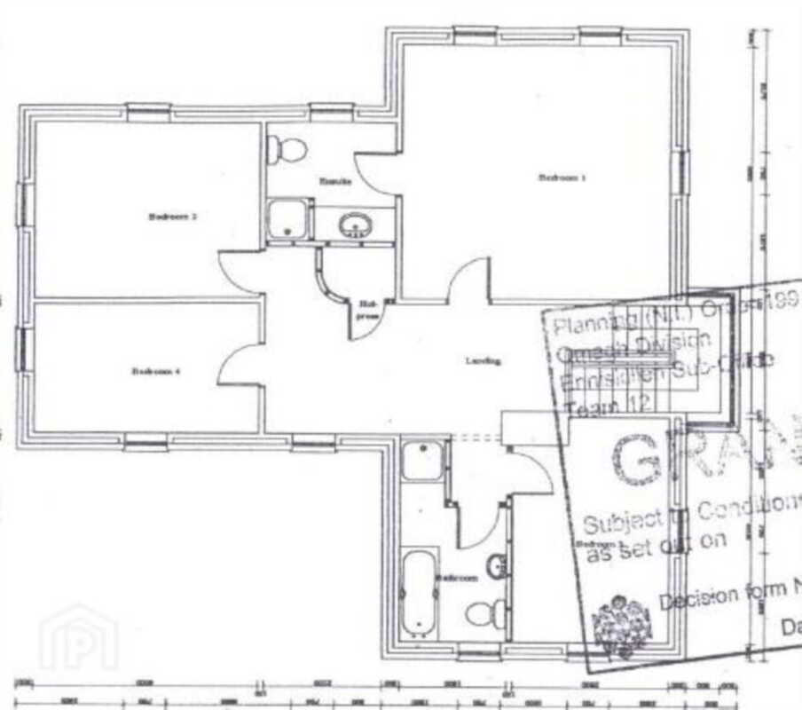
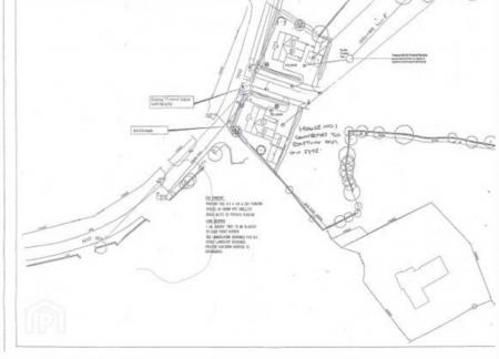
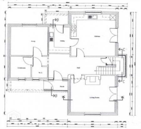
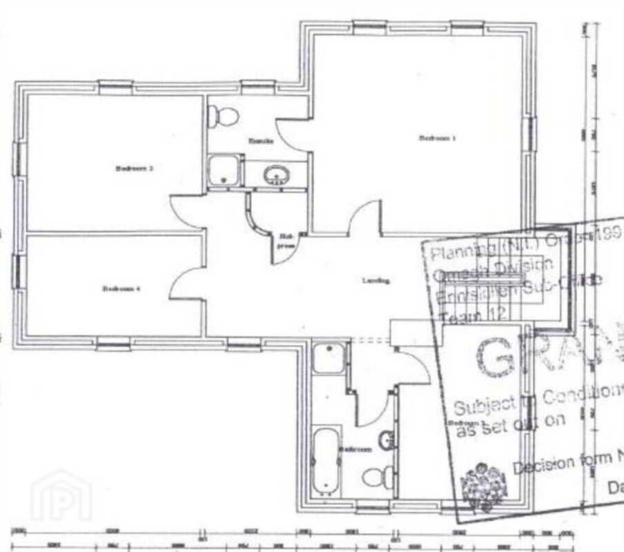
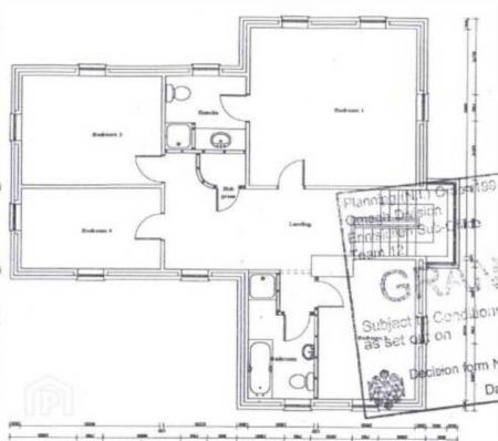
  • FPP In Place For Detached 4 Bedroom Residence
  • Foundations Have Been Constructed
  • Connection To Public Sewer
  • All Mains Services Close By

Situated on the edge of Derrygonnelly Village, this eye catching building site offers Full Planning Permission for a detached 4 bedrooms residence, providing an excellent opportunity to construct a family home in an attractive village location, adjacent to many local amenities and attractions, combining family life and all that village living has to offer.

Notice
Please note we have not tested any apparatus, fixtures, fittings, or services. Interested parties must undertake their own investigation into the working order of these items. All measurements are approximate and photographs provided for guidance only.

Property Ref: 77666445_926280

Share:

Similar Properties

54 Drumcru Road, Enniskillen

Not Specified | Guide Price £50,000

Lattone Road, Belcoo, Enniskillen

Not Specified | Guide Price £47,500

Main Street, Manorhamilton

Land | Guide Price £25,000

Movarran Road, Tievenavarnog, Enniskillen

Not Specified | Guide Price £65,000

Drumeer Road, Lisbellaw, Enniskillen

Not Specified | Guide Price £65,000

Smyth Leslie & Co (Enniskillen)

Enniskillen, Fermanagh, BT74 7BW

028 6632 0456

How much is your home worth?

Use our short form to request a valuation of your property.

Request a Valuation

Mortgage Calculator

Amount Borrowed: £
Total Amount Repayable: £
Total Monthly Payment: £
©2026 The Guild of Property Professionals. All rights reserved. Terms and Conditions | Privacy Policy | Cookie Policy | Complaints Policy | Members Login
The Guild of Property Professionals Trading Address: 121 Park Lane, London W1K 7AG. GPEA Limited. Registered in England & Wales.  Company No: 02819824.  Registered Office Address: 2 St. Stephen's Court, St. Stephen's Road, Bournemouth, Dorset, England, BH2 6LA.  VAT Registration No: 576 8795 61
Book a Property Valuation Update Cookies Preferences