8 Ingrave Road, Brentwood, Essex

£330,000

1 Bedroom Apartment for sale in Essex

1 1 1

Nestled in the heart of Brentwood, this beautifully presented apartment offers the perfect combination of style, comfort, and convenience. With its attractive exterior and well-maintained setting, the property provides a warm and welcoming first impression.

Inside, the apartment is tastefully decorated throughout, featuring spacious and light-filled living areas ideal for both relaxation and entertaining. The thoughtfully designed open-plan lounge and kitchen benefit from dual-aspect windows, providing an abundance of natural light. The modern kitchen is well-equipped with quality fittings and ample space for food preparation, while the adjoining living area offers an inviting space for dining or unwinding. The property comprises a generous double bedroom with fitted wardrobes and plenty of room for additional furnishings. A stylish, contemporary bathroom completes the accommodation, finished to a high standard with a white suite including WC, wash hand basin, and bath with overhead shower.

Externally, the property enjoys secure gated allocated parking and access to a communal roof terrace, perfect for relaxing or enjoying the surroundings.

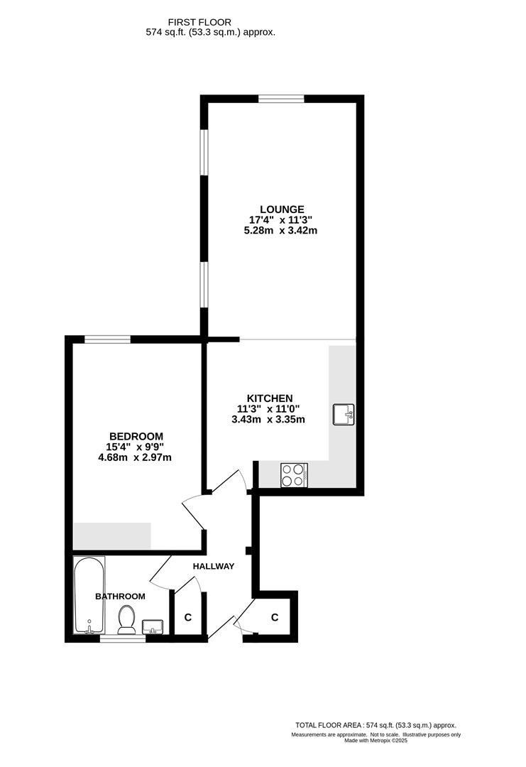
Entrance Hall -

Kitchen - 3.43 x 3.35 (11'3" x 10'11") -

Lounge - 5.28 x 3.42 (17'3" x 11'2") -

Bedroom - 4.68 x 2.97 (15'4" x 9'8") -

Bathroom -

Agents Note - As part of the service we offer we may recommend ancillary services to you which we believe may help you with your property transaction. We wish to make you aware, that should you decide to use these services we will receive a referral fee. For full and detailed information please visit 'terms and conditions' on our website www.keithashton.co.uk

Property Ref: 8226_34369617

Share:

Similar Properties

Ongar Road, Brentwood

2 Bedroom Retirement Property | £330,000

Perfectly positioned just yards from the High Street, The Meads is a modern development built specifically for those ove...

Ingrave House, Brentwood

1 Bedroom Apartment | £330,000

We are delighted to present this Duplex Penthouse within the sought-after Ingrave House development, perfectly positione...

Pastoral Way, Warley, Brentwood

1 Bedroom Apartment | £329,500

We are delighted to present this characterful one-bedroom duplex apartment, ideally located just 0.6 miles from Brentwoo...

Rose Valley, Brentwood

2 Bedroom Maisonette | £340,000

Set within close proximity of Brentwood's Elizabeth Line Station and less than a mile to Brentwood High Street is this c...

Cromwell Road, Warley, Brentwood

3 Bedroom Cottage | Guide Price £350,000

** GUIDE RANGE £350,000 - £400,000 ** NO ONWARD CHAIN - This charming two/three bed cottage boasts a welcoming porch tha...

Woodman Road, Warley, Brentwood

2 Bedroom Apartment | £350,000

We are pleased to bring to market this well-presented first-floor apartment, ideally positioned on Woodman Road-just a s...

Keith Ashton Estates - Brentwood Office (Brentwood)

26 St. Thomas Road, Brentwood, Essex, CM14 4DB

01277 260858

How much is your home worth?

Use our short form to request a valuation of your property.

Request a Valuation

Mortgage Calculator

Amount Borrowed: £
Total Amount Repayable: £
Total Monthly Payment: £
©2025 The Guild of Property Professionals. All rights reserved. Terms and Conditions | Privacy Policy | Cookie Policy | Complaints Policy | Members Login
The Guild of Property Professionals Trading Address: 121 Park Lane, London W1K 7AG. GPEA Limited. Registered in England & Wales.  Company No: 02819824.  Registered Office Address: 2 St. Stephen's Court, St. Stephen's Road, Bournemouth, Dorset, England, BH2 6LA.  VAT Registration No: 576 8795 61
Book a Property Valuation Update Cookies Preferences