North Road, South Ockendon, Essex, RM15

Guide Price
£220,000
SSTC
This property listing is now SSTC

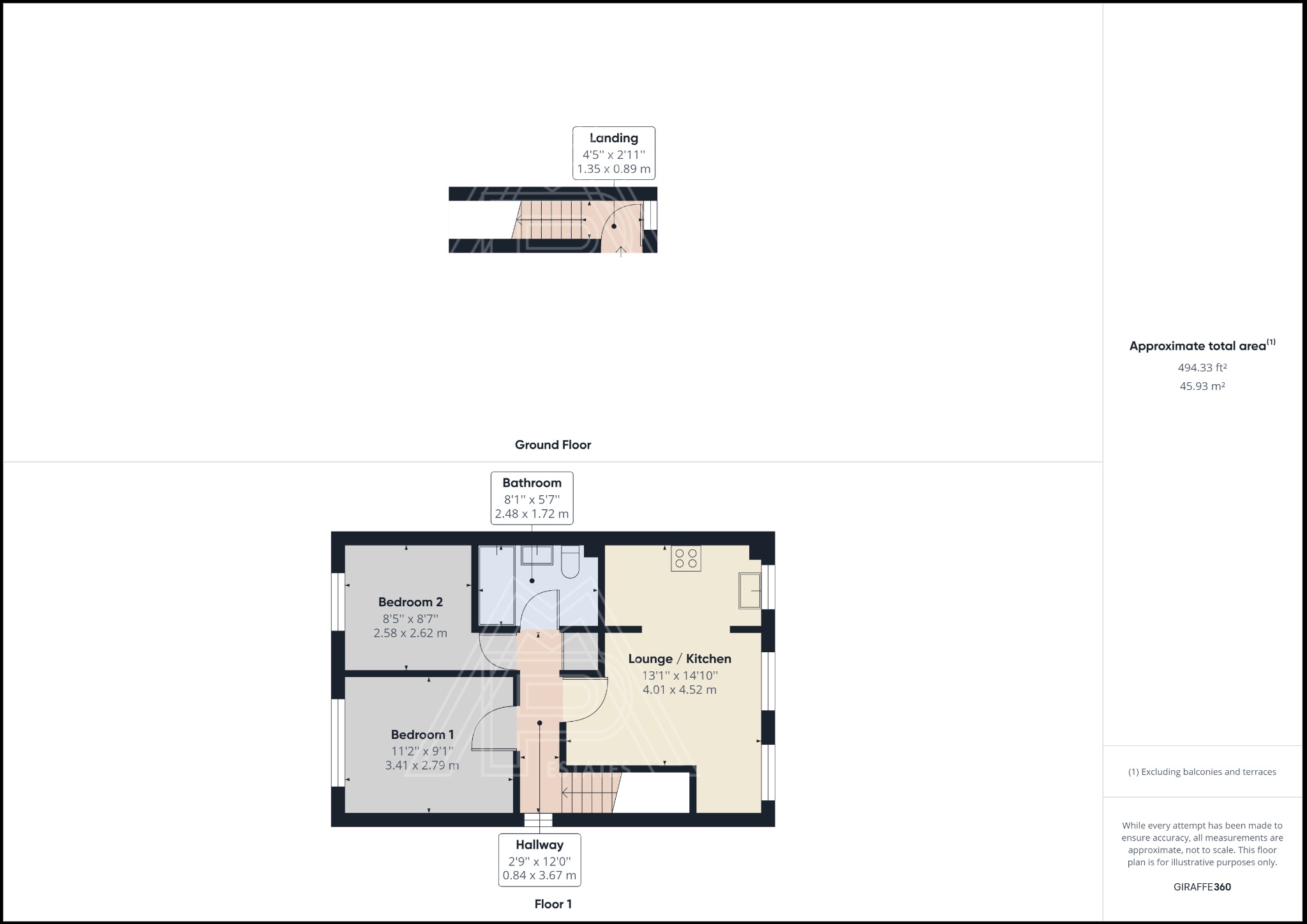
2 Bedroom Flat for sale in Essex

1 2 1
  • CHAIN FREE
  • TWO BEDROOM UPPER FLOOR FLAT
  • ATTIC SPACE OFFERING A STORAGE SOLUTION
  • MODERN KITCHEN & STYLISH BATHROOM
  • ALLOCATED PARKING + VISTORS PARKING + COMMUNAL GARDEN
  • TRIPPLE GLAZED FRONT ROOM & DOUBLE GLAZED IN OTHER ROOMS
  • GROUND RENT : £50 & SERVICE CHARGE £790
  • LEASE EXTENDED TO 153 YEARS
  • EPC RATING D & COUNCIL TAX BAND B
  • 0.4M TO OCKENDON STATION (C2C)

CHAIN-FREE MODERN TWO-BEDROOM FLAT PRIVATE ENTRANCE EXTENDED LEASE ALLOCATED PARKING SECURE COMMUNIAL GARDEN Come and view this well-presented two-bedroom flat with its with its own private entrance located in a sought-after area of South Ockendon, ideal for first-time buyers or those looking to down size. Offered chain-free and with its own private ground floor entrance, this spacious flat boasts a modern fitted kitchen and a stylish bathroom. The property features two generous-sized bedrooms, perfect for a small family or those working from home. A standout feature is the rare attic space, offering a fantastic storage solution. Professionally finished with three-quarter flooring, lighting, shelving, and a fold-up wooden ladder for easy access — a rare find in flats of this style. Further benefits include: • Allocated parking space plus visitors parking • Secure communal garden ideal for outdoor enjoyment • Extended lease — 153 years remaining • Excellent transport links — less than 0.4 miles from Ockendon Station (C2C Line) and conveniently located on the TfL 370 bus route • Close to local shops, amenities, and schools Viewing is highly recommended. Contact M&P Estates to arrange your viewing today

Important Information

  • This is a Leasehold property.
  • The annual cost for the ground rent on this property is £50
  • The annual service charges for this property is £790
  • This Council Tax band for this property is: C

Property Ref: 52922_386914

Share:

Similar Properties

Windstar Drive, South Ockendon, Essex, RM15

1 Bedroom Flat | Fixed Price £220,000

Sought after Windstar Drive, South Ockendon. This contemporary property boasts a host of features that make it the perfe...

Gidea Close, South Ockendon, Essex, RM15

2 Bedroom Ground Floor Flat | Guide Price £220,000

Discover this chain-free, two-bedroom ground floor flat in Gidea Close, South Ockendon, offering modern living and resid...

Windstar Drive, South Ockendon, Essex, RM15

1 Bedroom Apartment | Offers Over £220,000

Discover this stylish 1 bed, 1 bath flat on Windstar Drive, offering lift access and a modern kitchen. Allocated parking...

Windstar Drive, South Ockendon, Essex, RM15 5GW

1 Bedroom Apartment | Guide Price £225,000

Sophisticated One-Bedroom Top-Floor Apartment with Park Views in Windstar Drive, South Ockendon

Nicholas Close, South Ockendon, Essex, RM15

2 Bedroom Terraced House | Guide Price £225,000

An excellent opportunity to acquire a two-bedroom terraced house in South Ockendon, offered with a tenant in situ, perfe...

44 Celandine Close, South Ockendon, Essex, RM15

3 Bedroom Terraced House | Guide Price £225,000

Discover this three-bedroom terraced house in South Ockendon, offered via 'Secure Sale' auction with immediate exchange....

M & P Estates (South Ockendon)

South Ockendon, Essex, RM15 5EH

01708 851999

How much is your home worth?

Use our short form to request a valuation of your property.

Request a Valuation

Mortgage Calculator

Amount Borrowed: £
Total Amount Repayable: £
Total Monthly Payment: £
©2025 The Guild of Property Professionals. All rights reserved. Terms and Conditions | Privacy Policy | Cookie Policy | Complaints Policy | Members Login
The Guild of Property Professionals Trading Address: 121 Park Lane, London W1K 7AG. GPEA Limited. Registered in England & Wales.  Company No: 02819824.  Registered Office Address: 2 St. Stephen's Court, St. Stephen's Road, Bournemouth, Dorset, England, BH2 6LA.  VAT Registration No: 576 8795 61
Book a Property Valuation Update Cookies Preferences