Summer Lane, Exbury

Guide Price
£150,000
SSTC
This property listing is now SSTC

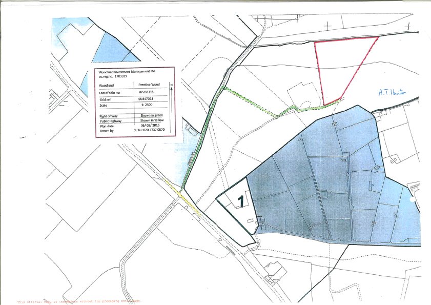
Land for sale in Exbury

Welcome to Prentice Wood a tranquil parcel of woodland which has a fantastic entrance which opens up creating great off track vehicular access and parking.

The track then leads down to a huge opening which currently hosts various storage and utility sheds with built in woodstores, composting toilet, firepit, swing seat and freestanding woodstore. There is also a natural spring.

From the opening you are lead through the trees down to the stream which is called stock water and in this area is a deer hide.

The woodland is approximatley half a mile from Summer Lane and is accessed via a five bar gate.

The land used to be part of the Exbury estate (source of clay for Exbury village bricks and a reservoir for the arboretum). It has shooting and mineral rights.

RIGHTS OF WAY

The land is sold subject to and with the benefit of all matters contained in or referred to in the title deeds together with all public or private rights of way, wayleaves, easements and other rights of way affecting the property. There are no public rights of way crossing the woodland.

TENURE AND POSSESSION

The land and woodland is being offered for sale on a freehold basis with vacant possession.

Important Information

  • This is a Freehold property.

Property Ref: BRC250151

Share:

Similar Properties

Grigg Lane, Brockenhurst

1 Bedroom Flat | Guide Price £75,000

Discover one of the largest and most sought-after designs within this exclusive development. This beautifully refurbishe...

Toms Lane, Linwood

Land | Guide Price £200,000

Nestled in the highly sought-after hamlet of Linwood, near Ringwood, this parcel of land measuring approx 3.6 acres offe...

Station Road, Sway

2 Bedroom Flat | Guide Price £295,000

*Share of Freehold* Located in the heart of the New Forest, this beautifully presented two-bedroom central apartment at...

Brookley Road

2 Bedroom Ground Floor Flat | Guide Price £325,000

An extremely well presented two double bedroom ground floor apartment set in the heart of Brockenhurst village.The apart...

Hayward Fox (Brockenhurst)

1 Courtyard Mews, Brookley Road, Brockenhurst, Hampshire, SO42 7RB

01590 624300

How much is your home worth?

Use our short form to request a valuation of your property.

Request a Valuation

Mortgage Calculator

Amount Borrowed: £
Total Amount Repayable: £
Total Monthly Payment: £
©2026 The Guild of Property Professionals. All rights reserved. Terms and Conditions | Privacy Policy | Cookie Policy | Complaints Policy | Members Login
The Guild of Property Professionals Trading Address: 121 Park Lane, London W1K 7AG. GPEA Limited. Registered in England & Wales.  Company No: 02819824.  Registered Office Address: 2 St. Stephen's Court, St. Stephen's Road, Bournemouth, Dorset, England, BH2 6LA.  VAT Registration No: 576 8795 61
Book a Property Valuation Update Cookies Preferences