Loveridge Drive, Alphington, EX2

£325,000

3 Bedroom End of Terrace House for sale in Exeter

2 3 2

A well presented three bedroom end of terrace property situated on a popular develpment in the village of Alphington with good size living accommodation, off road parking and enclosed rear garden. The property is within close proximity to local schools, shop, supermarkets and main commuter links. EPC B, Council Tax Band C, Freehold.

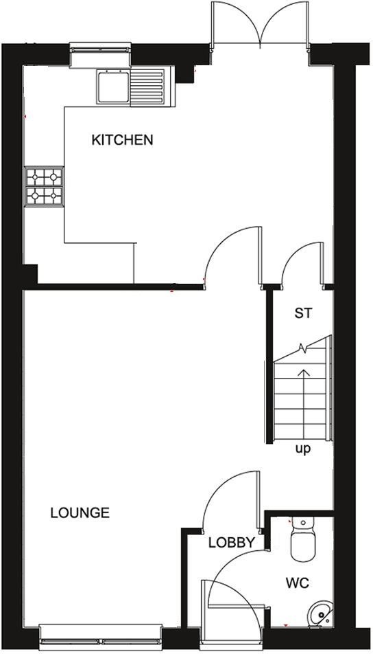
FRONT DOOR TO..

ENTRANCE HALL: Door to the lounge, radiator, door to..

CLOAKROOM: Close coupled WC, pedestal wash hand basin.

LOUNGE: 4.9m x 3.6m (16'1" x 11'10"), Double glazed window to the front, radiator, stairs to first floor landing, door to..

KITCHEN/DINER: 4.6m x 3.2m (15'1" x 10'6"), Base cupboards and drawers with worktop over, built in oven and hob with hood over, wall mounted cupboards, built in fridge and freezer, built in dishwasher, built in washing machine, radiator, under stair storage cupboard, double glazed window to the rear, double glazed doors to the rear.

FIRST FLOOR LANDING: Radiator, loft access, doors to..

BEDROOM 1: 4.2m x 2.6m (13'9" x 8'6") Maximum, Double glazed window to the front, radiator, door to..

EN-SUITE: Shower cubicle, close coupled WC, pedestal wash hand basin, towel rail, double glazed window to the side.

BEDROOM 2: 2.9m x 2.6m (9'6" x 8'6"), Double glazed window to the rear, radiator.

BEDROOM 3: 2.7m x 1.9m (8'10" x 6'3"), Double glazed window to the front, radiator.

BATHROOM: Panelled bath with wall mounted shower over, pedestal wash hand basin, close coupled WC, towel rail.

OUTSIDE: To the rear of the property is an enclosed garden mainly laid to grass lawn with gate providing side access and handy timber storage shed. There are two allocated parking spaces to the front of the property.

MANAGEMENT CHARGE: Management service charge: TBC

Important Information

  • This is a Freehold property.

Property Ref: FRASE003806

Share:

Similar Properties

Newlands Close, St. Thomas, EX2

3 Bedroom Semi-Detached House | £325,000

A three bedroom semi detached property situated in a cul de sac position within a popular residential area and is in clo...

Sentrys Orchard, Exminster, EX6

4 Bedroom Semi-Detached House | £325,000

A four bedroom semi detached property situated in the popular and sought after village of Exminster with good size livin...

Cowick Lane, St Thomas, EX2

3 Bedroom End of Terrace House | £325,000

A well presented three bedroom end of terrace property situatd within St Thomas and conveniently positioned for local sc...

Prescot Road, St Thomas, EX4

3 Bedroom Semi-Detached House | £330,000

A well presented three bedroom semi detached property positioned in a popular residential area with good size living acc...

Prescot Road, St Thomas, EX4

3 Bedroom Semi-Detached House | £330,000

A three bedroom semi detached property positioned in the popular residential area of St Thomas with enclosed rear garden...

Newlands Close, St Thomas, EX2

3 Bedroom Semi-Detached House | Offers in excess of £340,000

A well presented three bedroom semi detached property situated in a popular residential area within close proximity to l...

Fraser & Wheeler (Exeter) (St Thomas)

St Thomas, Exeter, EX4 1AW

01392 420410

How much is your home worth?

Use our short form to request a valuation of your property.

Request a Valuation

Mortgage Calculator

Amount Borrowed: £
Total Amount Repayable: £
Total Monthly Payment: £
©2026 The Guild of Property Professionals. All rights reserved. Terms and Conditions | Privacy Policy | Cookie Policy | Complaints Policy | Members Login
The Guild of Property Professionals Trading Address: 121 Park Lane, London W1K 7AG. GPEA Limited. Registered in England & Wales.  Company No: 02819824.  Registered Office Address: 2 St. Stephen's Court, St. Stephen's Road, Bournemouth, Dorset, England, BH2 6LA.  VAT Registration No: 576 8795 61
Book a Property Valuation Update Cookies Preferences