Chantry Meadow, Alphington, EX2

Offers in excess of
£250,000

2 Bedroom End of Terrace House for sale in Exeter

1 2 1

Nestled in the ever-popular village of Alphington, this delightful two-bedroom end-of-terrace property offers the perfect blend of comfort and convenience. Boasting a generously sized rear garden-ideal for relaxing or entertaining, -this home also features a versatile Home Office, perfect for remote working or creative pursuits. You'll benefit from an allocated parking space, and with its warm, welcoming feel, this property makes an ideal first-time purchase or a fantastic investment opportunity.Don't miss your chance to own a slice of Alphington charm-schedule your viewing today. EPC - C. Council Tax Band - C, Freehold.

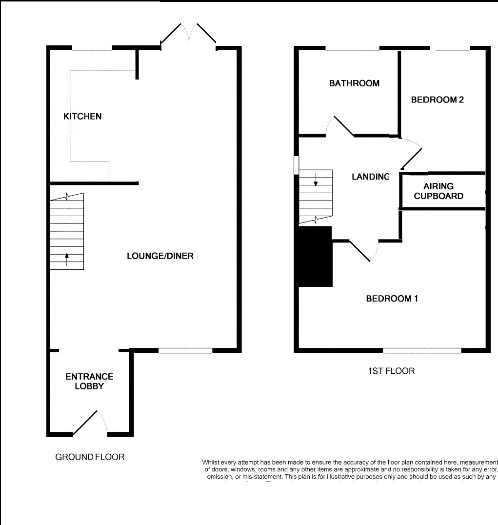
ENTRANCE VESTIBULE: Doorway to...

LOUNGE: 4.2m x 3.8m (13'9" x 12'6"), Double glazed window to the front, radiator, open plan to...

KITCHEN/DINER: 3.8m x 2.9m (12'6" x 9'6"), Base cupboards and drawers with worktop over, sink and drainer, appliance space for cooker, washing machine and fridge freezer. Wall mounted boiler, double glazed window to the rear, double doors to the rear garden, wall mounted cupboards.


FIRST FLOOR LANDING: Radiator, linen cupboard, double glazed window to the side, doors to...

BEDROOM 1: 4.0m x 3.8m (13'1" x 12'6") Maximum, Double glazed window to the front, radiator.

BEDROOM 2: 3.1m x 2.0m (10'2" x 6'7"), Double glazed window to the rear, radiator.

BATHROOM: Suite comprising close coupled WC, pedestal wash hand basin, panelled bath with shower over, double glazed window to the rear, towel rail.

OUTSIDE: A side gate provides convenient access to the rear of the property, where the garden stands out as a key feature. Thoughtfully designed for low maintenance, the space is attractively paved and includes a dedicated seating area-ideal for outdoor dining or relaxation. From here, you’ll also find direct access to the Home Office, offering a perfect blend of work and leisure. A rear gate leads to the property's allocated parking space, conveniently accessed via Lichgate Road.

HOME OFFICE: 5.2m x 2.8m (17'1" x 9'2")

Important Information

  • This is a Freehold property.

Property Ref: 11602779_FRASE003793

Share:

Similar Properties

Four Oaks Road, Tedburn St Mary, EX6

3 Bedroom Terraced House | Offers in excess of £250,000

A fantastic opportunity to acquire this three bedroom mid terrace home in the popular and sought after village location...

Cotfield Street, Water Lane, EX2

2 Bedroom End of Terrace House | Offers in excess of £250,000

A two bedroom end of terrace property situated within close proximity to Exeter's Historic Quayside and river walks with...

High Street, Ide, EX2

2 Bedroom Terraced House | £250,000

A charming and recently renovated two bedroom terraced cottage situated in the popular and sought after village of Ide....

Buddle Lane, St Thomas, EX4

3 Bedroom Semi-Detached House | £260,000

A three bedroom semi detached property situated in a popuar residential area with good size living accommodation and fro...

Palmerston Drive, Exwick, EX4

3 Bedroom Terraced House | £269,950

A well presented three bedroom property with garage and garden to the rear situated in a popular residential area within...

Riverside Court, Colleton Crescent, EX2

2 Bedroom Flat | £270,000

A well presented two double bedroom first floor apartment situated in the highly desirable Riverside Court development i...

Fraser & Wheeler (Exeter) (St Thomas)

St Thomas, Exeter, EX4 1AW

01392 420410

How much is your home worth?

Use our short form to request a valuation of your property.

Request a Valuation

Mortgage Calculator

Amount Borrowed: £
Total Amount Repayable: £
Total Monthly Payment: £
©2025 The Guild of Property Professionals. All rights reserved. Terms and Conditions | Privacy Policy | Cookie Policy | Complaints Policy | Members Login
The Guild of Property Professionals Trading Address: 121 Park Lane, London W1K 7AG. GPEA Limited. Registered in England & Wales.  Company No: 02819824.  Registered Office Address: 2 St. Stephen's Court, St. Stephen's Road, Bournemouth, Dorset, England, BH2 6LA.  VAT Registration No: 576 8795 61
Book a Property Valuation Update Cookies Preferences