Anning Crescent, Alphington, EX2

£387,500

3 Bedroom Semi-Detached House for sale in Exeter

2 3 2

A fantastic opportunity to acquire this three bedroom semi detached property situated on the popular and sought-after development of St Michaels Meadow in Alphington. This lovely LETCHWORTH style property has good size living accommodation, modern fitted kitchen and bathroom, master en-suite with enclosed rear garden and allocated parking. NO ONWARD CHAIN. EPC A, Council Tax Band **, Freehold.


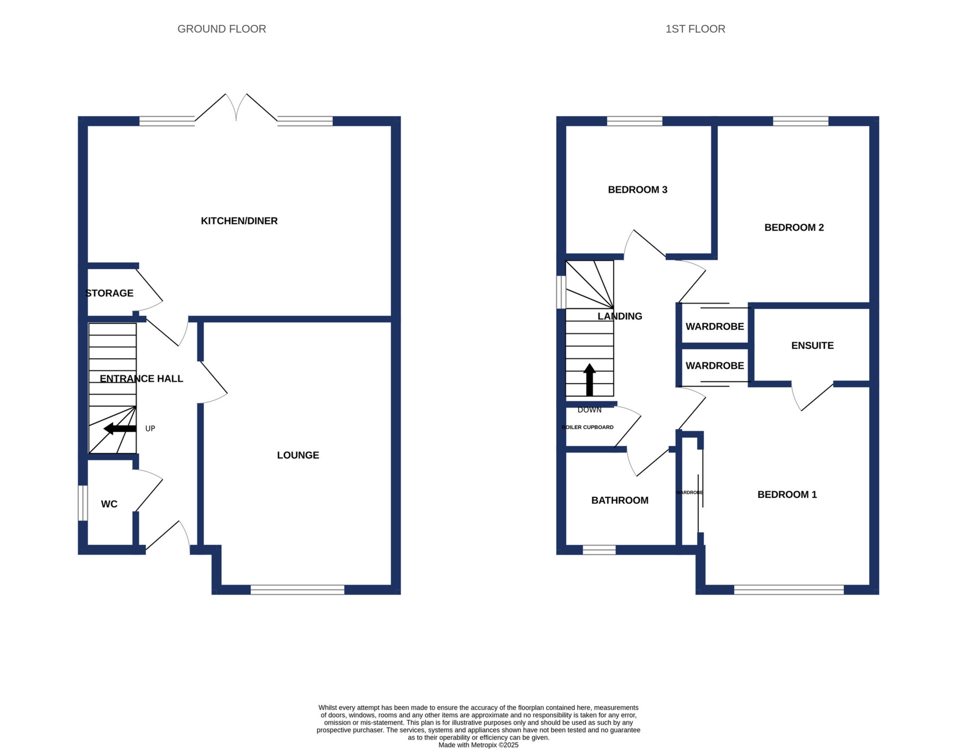
FRONT DOOR TO..

ENTRANCE HALL: Stairs to first floor landing with storage cupboard under, radiator.


LOUNGE: 4.9m x 3.4m (16'1" x 11'2"), Double glazed window to the front, radiator.

KITCHEN/DINER: 5.5m x 3.5m (18'1" x 11'6"), Double glazed doors to the rear, base cupboards and drawers with worktop over, sink and drainer, built in oven and hob with hood over, built in fridge and freezer, built in dishwasher, wall mounted cupboards, built in cupboard with space for washing machine.


WC: Close coupled WC, wash hand basin, double glazed window to the side.

FIRST FLOOR LANDING: Loft access, cupboard housing boiler, radiator, doors to..

BEDROOM 1: 3.5m x 3.4m (11'6" x 11'2") Maximum, Double glazed window to the front, radiator, built in wardrobe, door to..

EN-SUITE: Close coupled WC, pedestal wash hand basin, shower cubicle with wall mounted shower.

BEDROOM 2: 3.6m x 2.8m (11'10" x 9'2") Plus door recess, Double glazed window to the rear, radiator, built in wardrobe.

BEDROOM 3: 2.6m x 2.6m (8'6" x 8'6"), Double glazed window to the rear, radiator.

BATHROOM: Close coupled WC, wash hand basin, panelled bath with shower over, heated towel rail, double glazed window to the front.

OUTSIDE: To the front of the property is an area laid to lawn with shrubs and plants. To the rear is an enclosed garden mainly laid to grass lawn with gate providing handy access which leads to the two allocated parking spaces.


ESTATES MANAGEMENT CHARGE: TBC

Important Information

  • This is a Freehold property.

Property Ref: 11602779_FRASE003845

Share:

Similar Properties

Sandford Place, St Thomas, EX2

4 Bedroom Terraced House | £385,000

A four bedroom tow houe situated in a popular residenatial area o St Thomas with good size living accommodation, modern...

Broadway Hill, St Thomas, EX2

4 Bedroom Semi-Detached House | £375,000

A well presented four bedroom semi detached property situated in a popular residential area with good size living accomm...

Shelton Place, North Street, EX1

4 Bedroom Terraced House | Offers in excess of £375,000

A three storey terrace house situated in the popular residential area of Heavitree within close proximity to local schoo...

Plot 417, Holden, EX1

4 Bedroom House | £395,000

WAS �405,000, NOW 395,000!! This stylish four bedroom home has a modern kitchen with integrated dining and f...

Stapleton Way, Matford, EX2

3 Bedroom Detached House | £400,000

A well presented three bedroom detached property situated on the new development of Elm Park, Matford. The property boas...

Lawrence Avenue, St Thomas, EX4

3 Bedroom Semi-Detached House | £400,000

A well presented three bedroom property situated in the popular location of St Thomas with garage, off road parking and...

Fraser & Wheeler (Exeter) (St Thomas)

St Thomas, Exeter, EX4 1AW

01392 420410

How much is your home worth?

Use our short form to request a valuation of your property.

Request a Valuation

Mortgage Calculator

Amount Borrowed: £
Total Amount Repayable: £
Total Monthly Payment: £
©2025 The Guild of Property Professionals. All rights reserved. Terms and Conditions | Privacy Policy | Cookie Policy | Complaints Policy | Members Login
The Guild of Property Professionals Trading Address: 121 Park Lane, London W1K 7AG. GPEA Limited. Registered in England & Wales.  Company No: 02819824.  Registered Office Address: 2 St. Stephen's Court, St. Stephen's Road, Bournemouth, Dorset, England, BH2 6LA.  VAT Registration No: 576 8795 61
Book a Property Valuation Update Cookies Preferences