Peterborough Road, Exwick, EX4

£375,000

4 Bedroom Detached House for sale in Exeter

2 4 1

A lovely detached family home situated in the popular residential area of Exwick with good size living accommodation, enclosed rear garden, off road parking and a garage. The property is within close proximity to the local well regarded primary school, bus route, shops, public house, river walks and St Davids Train Station and is being offered with NO ONWARD CHAIN. EPC D, Council Tax Band D, Freehold.

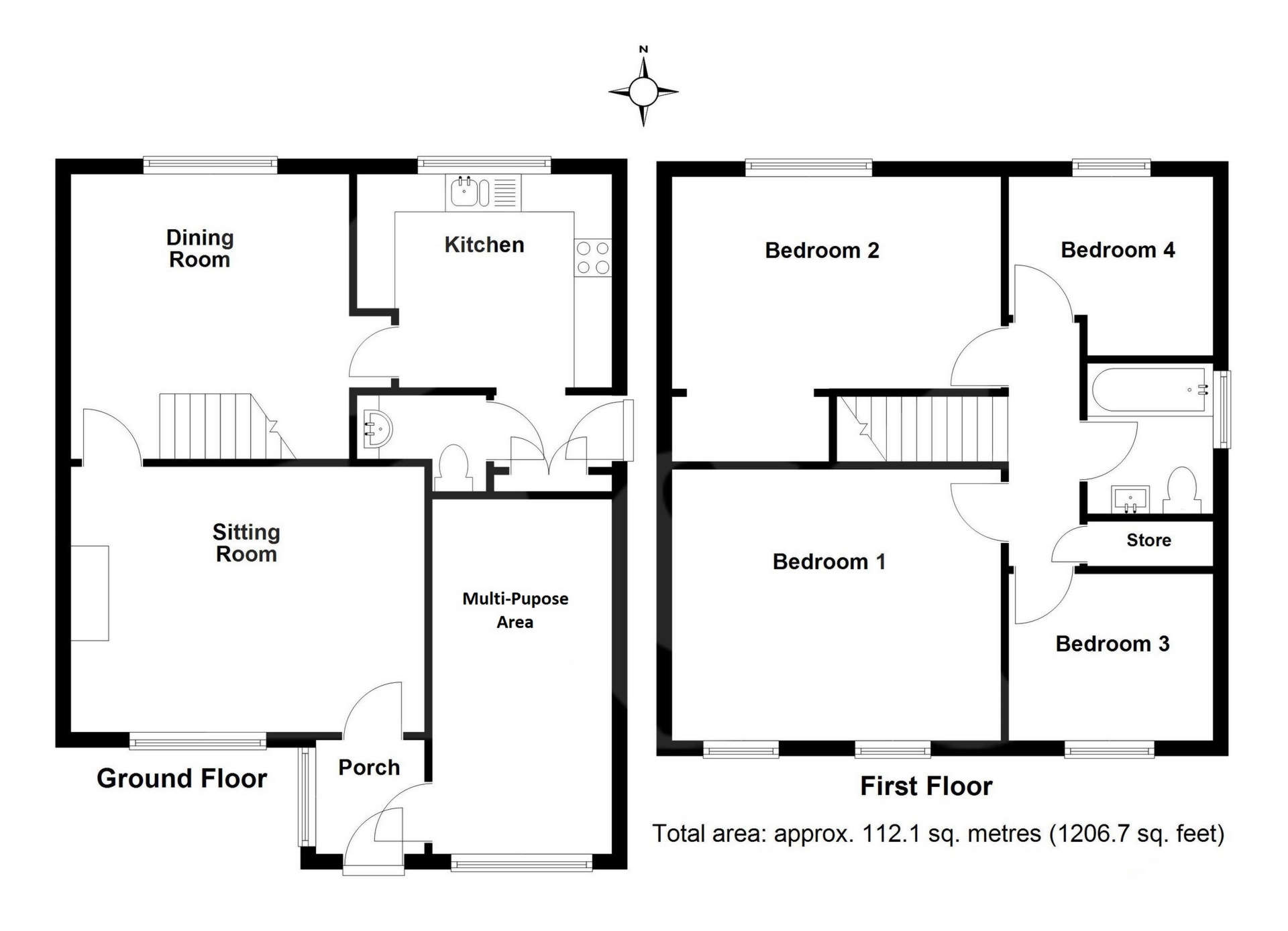
FRONT DOOR TO..

ENTRANCE HALL: Door to the lounge.

LOUNGE: 4.7m x 3.6m (15'5" x 11'10"), Double glazed window to the front, radiator, door to..

DINING ROOM: 3.8m x 3.7m (12'6" x 12'2"), Stairs to first floor landing, radiator, double glazed window to the rear.

KITCHEN: 3.4m x 2.8m (11'2" x 9'2"), Base cupboards and drawers with worktop over, sink and drainer, built in oven and hob with hood over, space for fridge freezer, wall mounted cupboards, radiator, double glazed window to the rear.

INNER VESTIBULE: Door to the side, storage cupboard, door to..

WC: Close coupled WC, wash hand basin, radiator.

MULTI -PURPOSE AREA: 4.7m x 2.4m (15'5" x 7'10"), Double glazed window to the front.

FIRST FLOOR LANDING: Storage cupboard, doors to..

BEDROOM 1: 4.3m x 3.6m (14'1" x 11'10") Including furniture, Double glazed windows to the front, radiator, fitted furniture including wardrobe and cupboards.

BEDROOM 2: 4.3m x 2.8m (14'1" x 9'2") Plus recess, Double glazed window to the rear, radiator.

BEDROOM 3: 2.7m x 2.4m (8'10" x 7'10"), Double glazed window to the rear, radiator.

BEDROOM 4: 2.7m x 2.2m (8'10" x 7'3"), Double glazed window to the front, radiator.

BATHROOM: Wash hand basin, WC concealed cistern, panelled bath with shower over, radiator, double glazed window to the side.

OUTSIDE: To the front of the property is a driveway providing off road parking and leads to the garage and front door. There is also a section of grass lawn and mature shrubs and plants with access to the rear. The rear garden is particular feature of this property with a sweeping lawn bordered by mature hedgerwo and trees with steps leading down to a feature paved patio with summer house.

GARAGE: 7.6m x 2.5m (24'11" x 8'2"), Up and over door, light and power, double glazed window to the rear.

AGENTS NOTE: We have been made aware by the sellers they believe the roof of the garage contains asbestos and all interested parties are advised to carry out their own investigations.

Important Information

  • This is a Freehold property.

Property Ref: FRASE004016

Share:

Similar Properties

Woodbury View, St Thomas, EX2

4 Bedroom Semi-Detached House | £360,000

A beautifully presented four bedroom semi detached house in a popular residential area within close proximity to local s...

Berkshire Drive, St Thomas, EX4

3 Bedroom Detached House | £350,000

A well presented three bedroom link detached property situated in a popular residential area with good size living accom...

Cowick Hill, St Thomas, EX2

3 Bedroom Semi-Detached House | £342,500

A beautifully presented three bedroom semi detached property situated in a popular residential area with good size livin...

Plot 417, Holden, EX1

4 Bedroom House | £395,000

WAS ?405,000, NOW 395,000!! This stylish four bedroom home has a modern kitchen with integrated dining and family areas...

Dorset Avenue, St.Thomas, EX4

4 Bedroom End of Terrace House | Offers in excess of £400,000

A beautifully presented and spacious family home ideally located in a popular residential area. This thoughtfully design...

Westwood Farm, Westwood Lane, EX6

3 Bedroom Semi-Detached House | Offers in excess of £425,000

A converted semi detached barn on the edge of Exeter with three bedrooms marries rural tranquillity with a touch of mode...

Fraser & Wheeler (Exeter) (St Thomas)

St Thomas, Exeter, EX4 1AW

01392 420410

How much is your home worth?

Use our short form to request a valuation of your property.

Request a Valuation

Mortgage Calculator

Amount Borrowed: £
Total Amount Repayable: £
Total Monthly Payment: £
©2026 The Guild of Property Professionals. All rights reserved. Terms and Conditions | Privacy Policy | Cookie Policy | Complaints Policy | Members Login
The Guild of Property Professionals Trading Address: 121 Park Lane, London W1K 7AG. GPEA Limited. Registered in England & Wales.  Company No: 02819824.  Registered Office Address: 2 St. Stephen's Court, St. Stephen's Road, Bournemouth, Dorset, England, BH2 6LA.  VAT Registration No: 576 8795 61
Book a Property Valuation Update Cookies Preferences