Exmouth, Devon

Guide Price
£550,000
SSTC
This property listing is now SSTC

5 Bedroom Semi-Detached House for sale in Exmouth

2 5 3

Directions

From Exeter, take the A376 Exmouth Road. Once in Exmouth, proceed to the first roundabout and take the 1st exit. At the next roundabout take the 2nd exit onto The Strand. Bear round to the left and proceed onto Rolle Street. Continue for 500 meters and turn left onto Hartley Road, proceed along Hartley Road and then turn right where the property can be found on the left hand side.
What3Words:///rust.retire.erase

Situation

Exmouth is a bustling town with a vibrant shopping centre that also hosts a wide range of leisure and entertainment facilities, including a cinema, theatre, sports amenities and a range of excellent restaurants.

It is only 12 miles by road or rail from the Cathedral City of Exeter, with its Intercity railway station, international airport, connection to the M5 motorway and all major shops and facilities. Boasting one of the warmest climates in the UK, with over three miles of glorious golden sands, Exmouth is known nationally as a regional centre for water sports activities - especially kitesurfing, sailing & windsurfing.

It is popular with Ramblers as there are many beautiful walks. Also it has SSSI status (Site of Specific Scientific Interest). Bird Watchers often travel a long way to see the rare birds at Exmouth.

Description

This ideal family home, in need of refurbishment, offers an enviable location just moments from Exmouth town centre and Seafront. Boasting delightful views, high ceilings, spacious accommodation, a lawned garden, parking and a garage. Set back across a private driveway, a path with an adjoining lawned front garden leads to a beautiful stained-glass door.

Inside, the bright and spacious hall welcomes you into a home filled with character. To the left, the large sitting room features a bay window and a charming fireplace with an exposed brick surround and a gas fire. Towards the rear, the formal dining room also features a fireplace and French doors that open directly onto the rear garden, perfect for entertaining. The well-equipped kitchen includes a range of wall and base units, integral appliances, ample space for a breakfast table, a useful adjoining pantry, wash cloakroom, plus a separate utility room.

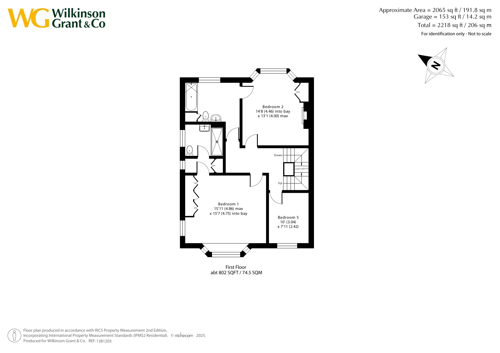
Upstairs, the first floor has three bedrooms - two spacious doubles, each with large bay windows and built-in wardrobes. The principal bedroom benefits from a walk-through closet leading to an ensuite with a double walk-in shower. Additionally, a large bathroom serves bedrooms two and three.

The second floor offers incredible views over Exmouth town, Exe Estuary towards Berry Head, and out to sea. It features two further double bedrooms and a shower room, making it ideal for family or guest accommodation.

Outside, the rear garden extends approximately 70 feet, mainly laid to lawn, offering a good degree of privacy and great outdoor space. A large patio area connected to the French doors provides a perfect spot for alfresco dining and relaxing. The property also benefits from a garage and driveway with parking for multiple vehicles.

SERVICES:    The vendor has advised the following: Gas central heating serving the central heating boiler and hot water, mains electricity, mains water and drainage. Two gas fires. Telephone landline currently connected and under Contract with Sky. Broadband: (ADSL) Currently under Contract with Sky. Download speed 70 Mbps and Upload speed 18 Mbps. Mobile signal: Several networks currently showing as available at the property including EE, 02, Three and Vodafone. The vendor advises that there is a Blink System ring doorbell device fitted at the property.

50.617305 -3.407089

Important Information

  • This is a Freehold property.

Property Ref: TOP250320

Share:

Similar Properties

Ebford, Devon

3 Bedroom Cottage | From £550,000

A BEAUTIFULLY PRESENTED DETACHED character property, offering a superb style of living, with PRIVATE SOUTH FACING GARDEN...

Budleigh Salterton, Devon

3 Bedroom Semi-Detached House | From £525,000

A BEAUTIFULLY PRESENTED and SIZEABLE character property offering 1500 sq ft of ACCOMMODATION, with STUNNING and PRIVATE...

Budleigh Salterton, Devon

3 Bedroom Flat | Guide Price £500,000

This COASTLINE apartment located on BUDLEIGH SALTERTON SEAFRONT enjoying spectacular SEA VIEWS and a large courtyard GAR...

Topsham, Devon

3 Bedroom Terraced House | Guide Price £595,000

AN IMMACULATE PERIOD HOME IN PRIME TOPSHAMA beautifully presented period residence set in one of Topsham’s most coveted...

Topsham Road, Exeter

4 Bedroom Detached House | Guide Price £595,000

Detached home beside Exeter Golf & Country Club!Superb location between Topsham and Exeter, with a 70ft garden, no onwar...

Topsham, Devon

2 Bedroom Semi-Detached House | From £600,000

A beautifully presented semi-detached property just 200 meters from the town centre and close to river walks. Offered fo...

Wilkinson Grant & Co (Topsham)

Fore Street, Topsham, Devon, EX3 0HQ

01392 875000

How much is your home worth?

Use our short form to request a valuation of your property.

Request a Valuation

Mortgage Calculator

Amount Borrowed: £
Total Amount Repayable: £
Total Monthly Payment: £
©2026 The Guild of Property Professionals. All rights reserved. Terms and Conditions | Privacy Policy | Cookie Policy | Complaints Policy | Members Login
The Guild of Property Professionals Trading Address: 121 Park Lane, London W1K 7AG. GPEA Limited. Registered in England & Wales.  Company No: 02819824.  Registered Office Address: 2 St. Stephen's Court, St. Stephen's Road, Bournemouth, Dorset, England, BH2 6LA.  VAT Registration No: 576 8795 61
Book a Property Valuation Update Cookies Preferences