Castle Street, Eye, IP23

£325,000
SSTC
This property listing is now SSTC

2 Bedroom Terraced House for sale in Eye

2

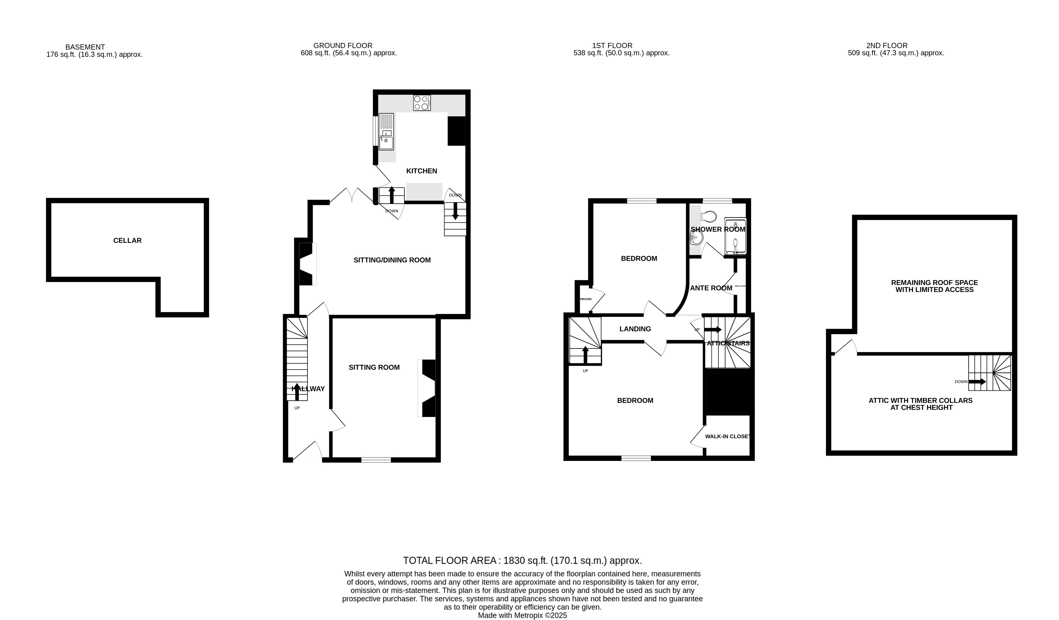
A much loved home of forty years plus standing, this Grade II Listed period townhouse has many qualities including garaging. Arranged over four levels from Cellar to Attic, the interior has much to offer having 2 reception rooms, good hall and kitchen capable of taking a table an                                                                                                                                                                                                                                                                           d chairs.

36 Castle Street is the central section of three properties evolved from the early 17th Century timber frame evident within each. This central section is unique however having an impressive hallway laid with pamment tiles and Georgian design influences to the staircase rising to the first floor. Furthermore, the layout comprises not only two distinct reception rooms but also a kitchen beyond, a cellar below and a useable attic space at the very top, accessed via an early flight of stairs. The property is also fortunate in having the central section of three parts to a period outbuilding which provides this house with a garage space and room for workshop activities. The current owners have enjoyed their time in this lovely house since 1984. Improvements, repairs and renovations have been carried out along the way including the installation of gas fired radiator heating.

Important Information

  • This is a Freehold property.

Property Ref: EYE250034

Share:

Similar Properties

Gaye Crescent, Eye, IP23

4 Bedroom Detached House | £325,000

A 4 bedroom detached family house within a Cul de sac corner plot, with garage and parking. The extended house offers do...

Wheelwright Close, Yaxley, Eye, Suffolk, IP23

3 Bedroom Semi-Detached House | £295,000

On the market having found somewhere else to buy! An above average, owned since new (2015) semi-detached house very nice...

3 Old Brew House Court, Eye, IP23

3 Bedroom Terraced House | £290,000

3 Old Brew House Court provides stylish 3 bedroomed living space and a south facing low maintenance garden along with ga...

Gaye Crescent, Eye, Suffolk, IP23

3 Bedroom Detached House | £350,000

A fabulous, cleverly extended detached 3 bedroom home set on a corner plot. The excellent interior is probably unique an...

Orchard Close, EYE, Suffolk, IP23

3 Bedroom Detached House | £350,000

One of two quietly situated detached houses abutting the Town Moors over which the first floor enjoys views. Well finish...

Hoxne Road, Denham, Eye, IP21

3 Bedroom Detached Bungalow | £435,000

An individual detached bungalow within a lovely position and plot with open fields to both the front and rear. 3 Bedroom...

Harrison Edge Estate Agents (Eye)

Eye, Suffolk, IP23 7AN

01379871563

How much is your home worth?

Use our short form to request a valuation of your property.

Request a Valuation

Mortgage Calculator

Amount Borrowed: £
Total Amount Repayable: £
Total Monthly Payment: £
©2026 The Guild of Property Professionals. All rights reserved. Terms and Conditions | Privacy Policy | Cookie Policy | Complaints Policy | Members Login
The Guild of Property Professionals Trading Address: 121 Park Lane, London W1K 7AG. GPEA Limited. Registered in England & Wales.  Company No: 02819824.  Registered Office Address: 2 St. Stephen's Court, St. Stephen's Road, Bournemouth, Dorset, England, BH2 6LA.  VAT Registration No: 576 8795 61
Book a Property Valuation Update Cookies Preferences