Tremorvah Park, Swanpool, TR11

Guide Price
£100,000

1 Bedroom Park Home for sale in Falmouth

1 1 1
  • 30' x 14' Park Home For Over 50's
  • Spacious 1-bedroom accommodation
  • Stunning views over Falmouth Bay & towards St Anthony Lighthouse
  • UPVC double glazing & LPG gas fired central heating
  • Requiring modernisation throughout
  • Manageable low maintenance gardens with outbuilding
  • Private driveway parking for one vehicle
  • Desirable location near to Swanpool beach & Nature Reserve
  • No onward chain & EPC exempt
  • Please watch our property video tour

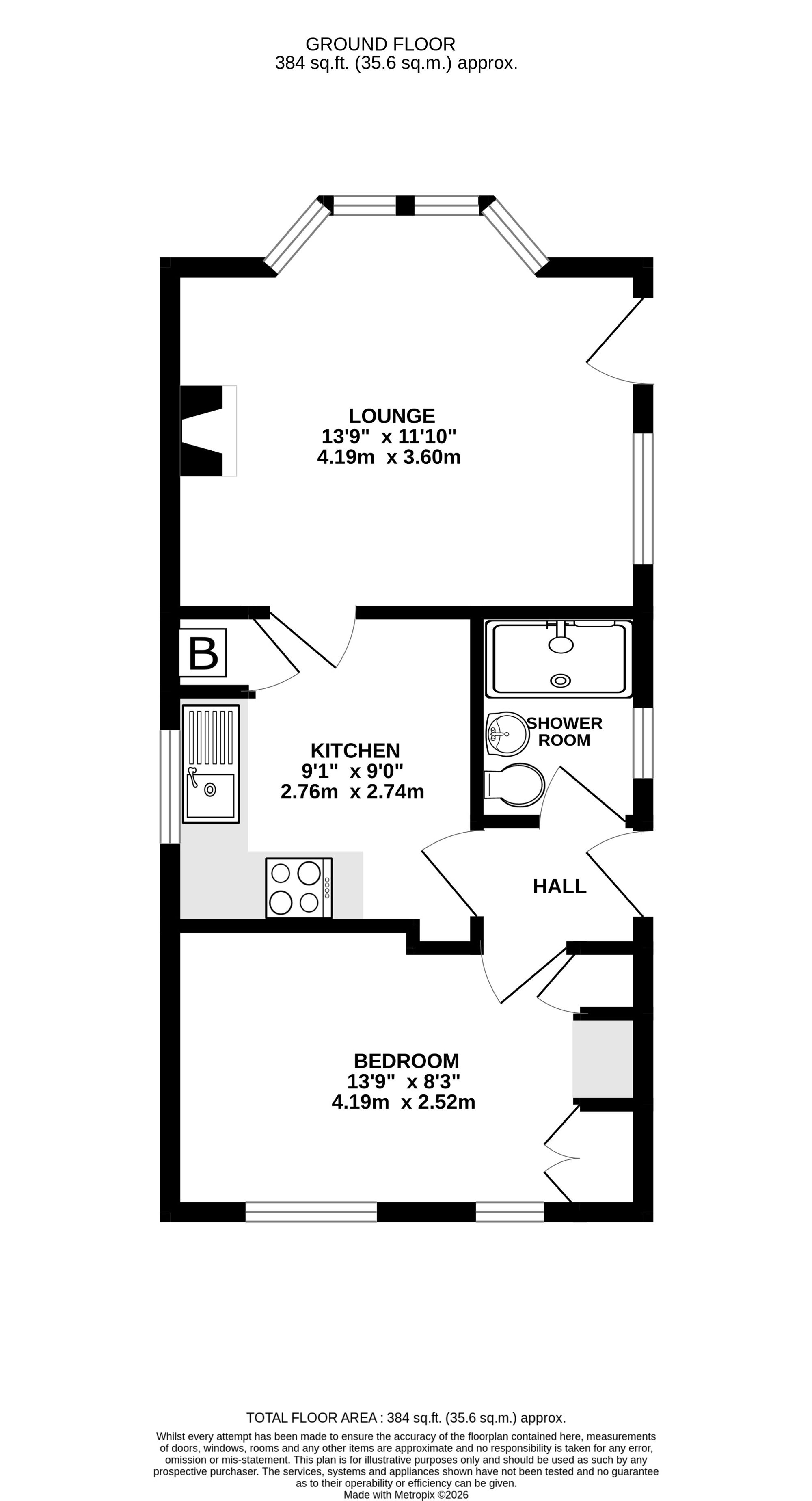
THE PARK HOME

Occupying a favoured lower-tier position within this well-regarded residential park, this attractive park home enjoys sea glimpses towards Falmouth Bay and St Anthony Lighthouse and is ideally located within easy reach of the Nature Reserve and beach. The home offers well-proportioned accommodation including a bright dual-aspect lounge/dining room with bay window, a fitted kitchen, a generous double bedroom with built-in wardrobes and a modern shower room. Outside, wrap-around low-maintenance gardens, a useful block-built outbuilding and private driveway parking complete the offering. Available to purchasers aged 50 and over, this property presents an excellent opportunity for coastal park home living. To be sold with no onward chain and available with immediate vacant possession. 

TREMORVAH PARK - THE LOCATION

The residential park homes located at Tremorvah Park in Swanpool are in an enviable location being so close to Swanpool beach & nature reserve. The beach itself is a delightful swimming cove with the popular cafe and clifftop restaurant. With glorious footpath walks and the South West coastal path on your doorstep what more could you ask for. Its location is superb, situated on the town’s southern side about a mile from Falmouth town and harbourside where there is an excellent and diverse selection of restaurants and bars and an eclectic mixture of individual shops as well as national chains, together with quality galleries showcasing local talent. Train stations at (Falmouth Town and Penmere Halt) provide a convenient link to the mainline at Truro, for Exeter and London, Paddington. Falmouth Docks and Pendennis Shipyard are major contributors to the town's economy and along with Falmouth University (with campuses in Falmouth and Penryn) and Falmouth Marine School, specialising in traditional and modern boat building, marine engineering and environmental science, ensure an all-year-round vibrant community. Falmouth boasts the third deepest natural harbour in the world and is renowned for its maritime facilities which offer some of the best boating and sailing opportunities in the country.

Important Information

  • This is a Leasehold property.
  • This Council Tax band for this property is: A

Property Ref: 088569af-4248-4ec7-9133-f87ce7fb0498

Share:

Similar Properties

Helston Road, Penryn, TR10

1 Bedroom Flat | Guide Price £125,000

A charming and bright top floor apartment with views looking across Penryn, river and countryside. Nearby to Penryn Town...

Cosawes Park Homes, Perranarworthal, TR3

2 Bedroom Park Home | Guide Price £155,000

Well-presented Tingdene double park home set in a delightful streamside garden, offering spacious two-bedroom accommodat...

Pendennis Road, Falmouth, TR11

1 Bedroom Flat | Guide Price £160,000

Ground floor 1-bed apartment near falmouth seafront. Allocated parking. No restrictions, the property can be a home, lon...

Heather & Lay (Falmouth)

Falmouth, Cornwall, TR11 3DN

01326 319767

How much is your home worth?

Use our short form to request a valuation of your property.

Request a Valuation

Mortgage Calculator

Amount Borrowed: £
Total Amount Repayable: £
Total Monthly Payment: £
©2026 The Guild of Property Professionals. All rights reserved. Terms and Conditions | Privacy Policy | Cookie Policy | Complaints Policy | Members Login
The Guild of Property Professionals Trading Address: 121 Park Lane, London W1K 7AG. GPEA Limited. Registered in England & Wales.  Company No: 02819824.  Registered Office Address: 2 St. Stephen's Court, St. Stephen's Road, Bournemouth, Dorset, England, BH2 6LA.  VAT Registration No: 576 8795 61
Book a Property Valuation Update Cookies Preferences