Rose Cottage, 57 Trefusis Road, Flushing, Falmouth TR11 5TZ

Guide Price
£465,000
SSTC
This property listing is now SSTC

2 Bedroom Terraced House for sale in Falmouth

3 2 2
  • Stone Cottage
  • Situated in the popular waterside village of Flushing
  • Beautifully presented
  • Two/Three bedrooms
  • Master en-suite and balcony
  • Three reception rooms
  • Private courtyard garden
  • Nearby convenience store, public houses & yacht club
  • Regular taxi boat available to Falmouth
  • PLEASE WATCH OUR PROPERTY VIDEO TOUR

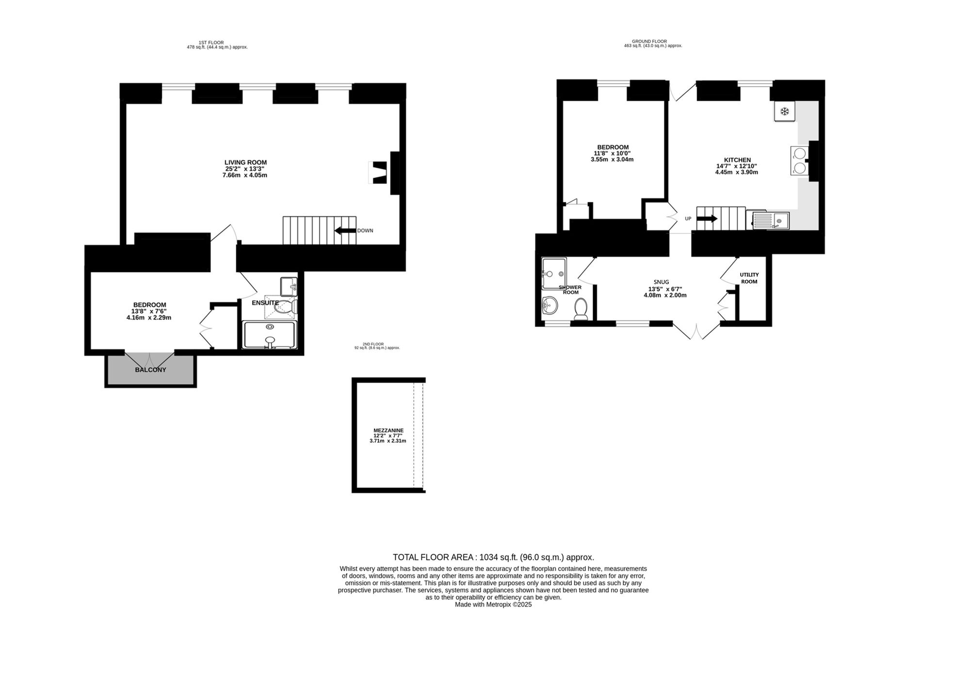
THE PROPERTY

Made of stone with thick walls, this historic cottage has been modernised over the years and our vendor has it presented beautifully. There are two bedrooms currently, with the option of a third. A good sized kitchen/diner, a large sitting room and a separate lounge that leads out to the rear garden. A downstairs bedroom and shower room means those of a certain age who visit can enjoy the stay without the need to go upstairs where another bedroom and shower room await. This property must be viewed to be fully appreciated, although we have produced a detailed walk-through, talk-through video tour which we highly recommend you watch.   

THE LOCATION

Flushing owes its name to 17th century Dutch builders who came to construct piers and seawalls and settled there. The village subsequently became a place of style and refinement where the captains of the Packet Ships and their families lived. Today, the village still retains that touch of class with its tastefully renovated 17th and 18th century houses and narrow winding waterside streets. It also enjoys a sunny south westerly aspect and is reputed to have one of the mildest climates in Britain. Flushing is a popular and highly desirable waterside village, with a short, year round, foot ferry ride across the harbour from Falmouth and a local bus service linking from Falmouth to the University and Truro. The village has an active local community and good everyday facilities such as a primary school, church, two pubs, a general store as well as a quayside restaurant. Flushing, with its public slipway, is ideally placed for access to Falmouth harbour, the Carrick Roads and all tributaries of the River Fal, providing arguably some of the finest sailing waters available. There are a number of local sailing clubs and a gig rowing club with a boathouse. Mylor harbour is about a mile and a half away and provides excellent facilities including a marina with pontoon and swinging moorings, chandlers and a full range of marine services. The village is a sociable and inclusive place, popular with those residing permanently and also loved by those requiring a home for holidays. Flushing Arts group has a varied calendar of events and workshops, the international classical music Concerts hosted by Carrick Concerts are based in the village and the annual village pantomime provides opportunities for amateur dramatics and fun! The cathedral City of Truro is approximately 11 miles away and provides an excellent range of shopping and schooling facilities together with a mainline rail link to London Paddington.

Energy Efficiency Current: 56.0
Energy Efficiency Potential: 76.0

Important Information

  • This is a Freehold property.
  • This Council Tax band for this property is: C

Property Ref: 9883456f-df13-466c-81a5-b0c8845f3b48

Share:

Similar Properties

Trelawney Road, Falmouth, TR11

6 Bedroom Terraced House | Guide Price £450,000

Ideal investment property in the heart of Victorian Falmouth offering 6 letting rooms, 2 shower rooms, and rear courtyar...

Shute Hill, Mawnan Smith, TR11

3 Bedroom Link Detached House | Guide Price £450,000

Generously spacious 3-bed home in Mawnan village with potential for modernisation. Large garden. Village amenities nearb...

New Street, Falmouth, TR11

5 Bedroom Terraced House | Guide Price £445,000

Grade II listed Hidden House in Falmouth - 5 bed, 3 floors, historic charm from 1800s. Sunroom, terrace & garden. Centra...

Hillhead Rise, Falmouth, TR11

5 Bedroom Detached House | Guide Price £475,000

This modern, move-in ready property features versatile living, 4/5 bedrooms, a garage with driveway and overhead storage...

Polsethow, Penryn, TR10

4 Bedroom Detached House | Guide Price £495,000

This versatile and impressive family home with a self-contained studio annexe enjoys spectacular elevated views towards...

5 Stracey Road, Falmouth, TR11

2 Bedroom Penthouse | Guide Price £495,000

The Captain's Apartments are a collection of seven contemporary apartments, each built to an impressive specification th...

Heather & Lay (Falmouth)

Falmouth, Cornwall, TR11 3DN

01326 319767

How much is your home worth?

Use our short form to request a valuation of your property.

Request a Valuation

Mortgage Calculator

Amount Borrowed: £
Total Amount Repayable: £
Total Monthly Payment: £
©2026 The Guild of Property Professionals. All rights reserved. Terms and Conditions | Privacy Policy | Cookie Policy | Complaints Policy | Members Login
The Guild of Property Professionals Trading Address: 121 Park Lane, London W1K 7AG. GPEA Limited. Registered in England & Wales.  Company No: 02819824.  Registered Office Address: 2 St. Stephen's Court, St. Stephen's Road, Bournemouth, Dorset, England, BH2 6LA.  VAT Registration No: 576 8795 61
Book a Property Valuation Update Cookies Preferences