Treverbyn Road, Falmouth, TR11

Guide Price
£315,000
SSTC
This property listing is now SSTC

3 Bedroom Semi-Detached House for sale in Falmouth

1 3 1
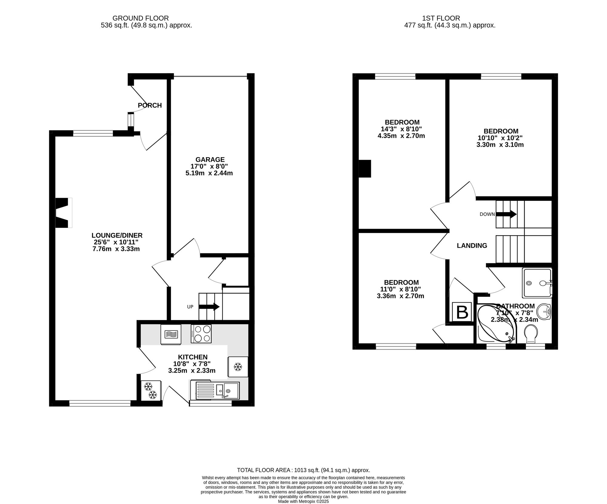
  • Semi-detached Goldenbank house
  • 3 Double bedrooms
  • 25' Sitting/dining room
  • Fitted kitchen with appliances
  • Sought after location
  • Spacious bath/shower room
  • UPVC double glazed windows & doors; gas radiator central heating
  • Enclosed rear garden
  • Generous single garage with internal access to the house

THE PROPERTY

We like these popular block built and brick fronted houses, having acted for the original, respected developer SNW Homes, in the early 1990s. This is one of the original ‘Tregrehan’ examples that was most sought after at the time for its three double bedroom design. 106 is set within a cul de sac, where a driveway leads to a generous single size garage, and the rear garden is enclosed and relatively private. Accommodation is well proportioned with, as mentioned, three double bedrooms and a spacious floor and wall tiled bath and shower room, upstairs. The sitting/dining room measures a healthy 25’ long and the fitted kitchen is complete with appliances. A gas boiler fuels radiator central heating and hot water supply and windows and doors are UPVC double glazed. This is one of the few designs to have internal access into the house from the garage. Thoroughly liveable and comfortable ‘as is’ the house could do with a spruce up, which has more than been acknowledged in its competitive asking price.

THE LOCATION

Treverbyn Road is a popular cul de sac on the outer fringes of falmouth, set within aptly named Goldenbank where a pathway leads to Swanpool and beach, a leisurely 15 minute walk away. The development is on a regular bus route to and from the town and seafront; primary and secondary schools together with local shops at Boslowick and 'early 'til late' Co-op are all within about a mile. Falmouth boasts a vibrant and thriving atmosphere, with a blend of both independent and national retail outlets, numerous art galleries exhibiting local talent, and a diverse range of great places to eat and drink. Additionally, Events Square and the National Maritime Museum host a multitude of engaging activities throughout the year, such as Falmouth Classics, Falmouth Week, and the Oyster and Sea Shanty festivals. With its south-facing position, Falmouth's seafront offers sandy beaches and direct access to the Southwest coastal path. It comes as no surprise that Falmouth consistently ranks amongst the top five favoured places to live in the UK.

Energy Efficiency Current: 63.0
Energy Efficiency Potential: 80.0

Important Information

  • This is a Freehold property.
  • This Council Tax band for this property is: C

Property Ref: b5d37754-900f-4c92-ac30-e8375a859c2d

Share:

Similar Properties

7 Lemon Hill Gardens, Mylor Bridge, TR11

2 Bedroom Terraced House | Guide Price £315,000

A delightful 2 double bedroom modern cottage built to a traditional design by a highly regarded and award-winning develo...

5 Stracey Road, Falmouth, TR11

2 Bedroom Apartment | Guide Price £315,000

The Captain's Apartments are a collection of seven contemporary apartments, each built to an impressive specification th...

Kingston Way, Mabe Burnthouse, TR10

3 Bedroom Terraced House | Guide Price £300,000

Spacious three double bedroom property with downstairs cloakroom and upstairs bathroom. Low maintenance garden and two a...

Gyllyng Street, Falmouth, TR11

3 Bedroom Apartment | Guide Price £325,000

Duplex penthouse apartment over 1000 sq. ft. in size with 18' x 10' (5.49m x 3.05m) South facing terrace and two lovely...

Cliff Road, Bay Court Cliff Road, TR11

2 Bedroom Flat | Guide Price £325,000

Superbly positioned, sea facing ground floor apartment, set within a McCarthy and Stone much sought after sea front reti...

Carlidnack Close, Mawnan Smith, TR11

2 Bedroom Semi-Detached House | Guide Price £335,000

Charming 1960s bungalow in popular village with 2 beds, garage & landscaped garden. Balcony with stunning views. Close t...

Heather & Lay (Falmouth)

Falmouth, Cornwall, TR11 3DN

01326 319767

How much is your home worth?

Use our short form to request a valuation of your property.

Request a Valuation

Mortgage Calculator

Amount Borrowed: £
Total Amount Repayable: £
Total Monthly Payment: £
©2025 The Guild of Property Professionals. All rights reserved. Terms and Conditions | Privacy Policy | Cookie Policy | Complaints Policy | Members Login
The Guild of Property Professionals Trading Address: 121 Park Lane, London W1K 7AG. GPEA Limited. Registered in England & Wales.  Company No: 02819824.  Registered Office Address: 2 St. Stephen's Court, St. Stephen's Road, Bournemouth, Dorset, England, BH2 6LA.  VAT Registration No: 576 8795 61
Book a Property Valuation Update Cookies Preferences