Trelil Lane, Budock Water, TR11

Guide Price
£180,000
SSTC
This property listing is now SSTC

Barn for sale in Falmouth

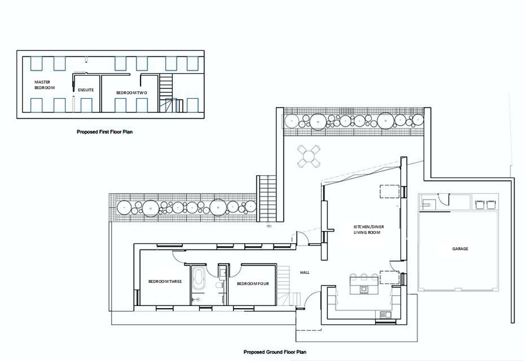
  • Detached barn for conversion & development
  • PA23/04890 for conversion of barn to dwelling (approved)
  • PA24/08604 for loft extension & creation of detached garage (approved)
  • Delightful rural setting
  • 4 Bedroom accommodation
  • Master bedroom en suite
  • Double Garage
  • Adjoining countryside
  • C.I.L. payment £20,177.08

THE OPPORTUNITY

Building plots, or development opportunities like this, are very rare and increasingly difficult to find; certainly, we have not sold anything like it for many years. This barn with detailed planning permission to convert to a detached four bedroom dwelling lies in an uplifting, unspoilt country setting just a five minute walk to Budock village pub and shop and less than 3 miles to Falmouth town, harbourside and beaches.

THE LOCATION

Trelil Lane lies on the outskirts of Budock Water village, on the country road that leads to Mawnan Smith village and the Helford River beyond. Trelil Barn is situated at the bottom of the Lane, bearing right, where the barn and development site are tucked into the corner of the adjacent field. It is a delightful and unspoilt rural setting next to fields and countryside, yet just a few minutes walk to the village centre. Budock Water has a population of about 1200 with an active community and good everyday facilities which include an excellent shop and popular Trelowarren Arms pub, CJ's Sanctuary restaurant, Anglican church, numerous clubs, societies and a bus service. There is a lovely walk leading on from Trelil Lane, which is a bridleway, through the countryside to Maenporth beach and the southwest coastal path. Falmouth town and harbourside is about 2.7 miles away and has an eclectic mixture of national shops and independents, together with galleries showcasing local arts and crafts, as well as great places to eat and drink.

Important Information

  • This is a Freehold property.

Property Ref: deb4b263-d2e5-455a-a639-292afee4b527

Share:

Similar Properties

Gyllyngvase Road, Anchorage Apartments Gyllyngvase Road, TR11

1 Bedroom Flat | Guide Price £180,000

So very close to Gyllyngvase beach, this one bedroom apartment offers a wonderful place to live or a lucrative investmen...

Kernick Road, Penryn, TR10

2 Bedroom Flat | Guide Price £175,000

Two double bedroom first floor flat with an allocated residents parking space and garage. An ideal investment opportunit...

Trevethan Hill, Falmouth, TR11

2 Bedroom Flat | Offers in excess of £155,000

Rare gem in coveted near town location. 2-bed flat with panoramic water views, seeking renovation and modernisation. Ide...

Calver Close, Penryn, TR10

2 Bedroom Flat | Guide Price £195,000

Top floor apartment with countryside and river views. Quiet with only 3 units in the block. 2 bedrooms, open plan living...

Penwerris Lane, Falmouth, TR11

3 Bedroom Terraced House | Guide Price £195,000

Three-bedroom terraced home with potential for modernisation, boasting river and sea views from box-bay window, south-we...

Hillside Road, Falmouth, TR11

2 Bedroom Flat | Guide Price £199,500

Top-floor 2-bed apartment in modern development with lift access. Open-plan living, spacious bedrooms, greenery views. C...

Heather & Lay (Falmouth)

Falmouth, Cornwall, TR11 3DN

01326 319767

How much is your home worth?

Use our short form to request a valuation of your property.

Request a Valuation

Mortgage Calculator

Amount Borrowed: £
Total Amount Repayable: £
Total Monthly Payment: £
©2025 The Guild of Property Professionals. All rights reserved. Terms and Conditions | Privacy Policy | Cookie Policy | Complaints Policy | Members Login
The Guild of Property Professionals Trading Address: 121 Park Lane, London W1K 7AG. GPEA Limited. Registered in England & Wales.  Company No: 02819824.  Registered Office Address: 2 St. Stephen's Court, St. Stephen's Road, Bournemouth, Dorset, England, BH2 6LA.  VAT Registration No: 576 8795 61
Book a Property Valuation Update Cookies Preferences