POUND GATE DRIVE, TITCHFIELD COMMON

£350,000
SSTC
This property listing is now SSTC

3 Bedroom Detached Bungalow for sale in Fareham

1 3 1
  • DETACHED BUNGALOW
  • LOCATED WITHIN A POPULAR AREA
  • THREE BEDROOMS
  • NO FORWARD CHAIN
  • LOUNGE
  • KITCHEN
  • WET ROOM
  • FRONT & REAR GARDENS
  • GARAGE & DRIVEWAY PARKING
  • EPC RATING D

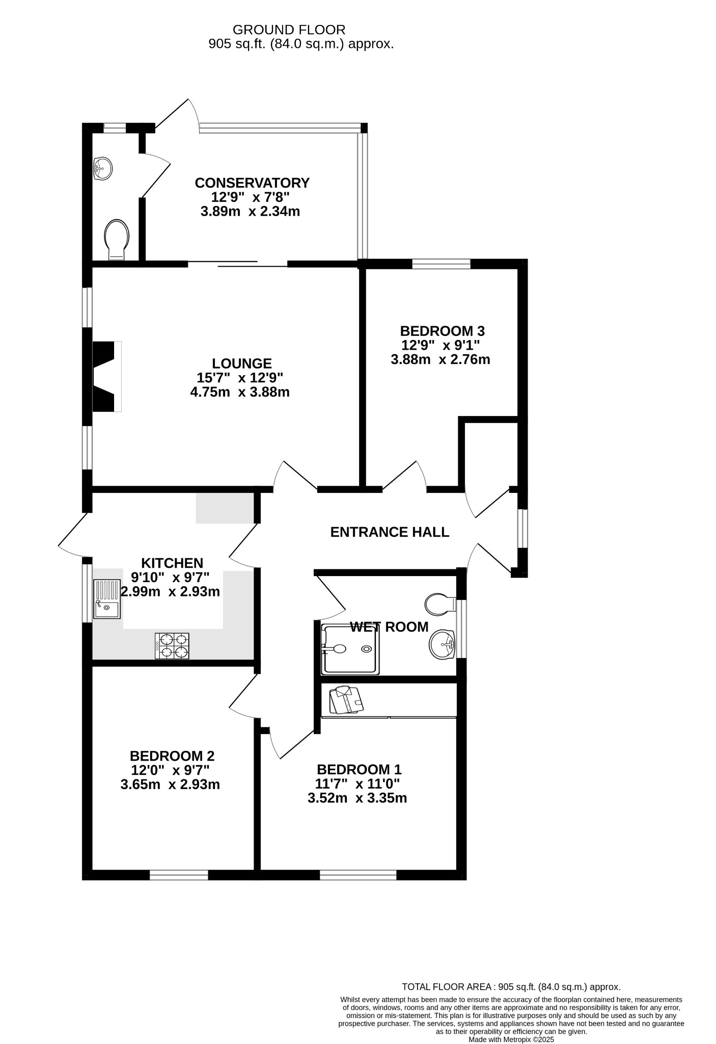
DESCRIPTION
NO FORWARD CHAIN. A three bedroom detached bungalow located within an established residential area within the popular area of Titchfield Common. The bungalow briefly comprises; an 'L' shaped entrance hall, a lounge, double glazed conservatory and WC. There are three bedrooms, a kitchen and a wet room. The bungalow benefits from double glazing and is warmed by gas central heating. There are both front and rear gardens and a driveway to the rear which leads to the GARAGE. As sole agents we would highly recommend an early inspection.

DOUBLE GLAZED DOOR TO:

ENTRANCE HALL
'L' shaped entrance hall with double glazed window to side elevation. Access to loft space. Airing cupboard housing hot water cylinder with shelving. Doors to:

LOUNGE
Double glazed patio doors to conservatory and two double glazed windows to side elevation. Wall mounted gas fire (not connected to gas mains). Radiator.

CONSERVATORY
Lean-to style conservatory with double glazed door to garden and double glazed windows to rear elevation. Door to:

WC
Double glazed window to rear elevation. Low level WC. Wash hand basin.

KITCHEN
Double glazed window to side elevation and double glazed door to outside. Stainless steel double drainer sink unit with cupboard under. Further range of wall and base level units with roll edge worksurfaces over and splashback tiling. Built-in four ring ceramic hob with cooker hood over. Built-in double oven with cupboards under and over. Fridge/freezer, washing machine and microwave to remain. Radiator. Wall mounted gas boiler.

BEDROOM ONE
Double glazed bow window to front elevation. Built-in wardrobes. Radiator.

BEDROOM TWO
Double glazed window to front elevation. Radiator.

BEDROOM THREE
Double glazed window to rear elevation. Radiator.

WET ROOM
Double glazed window to side elevation. Low level close coupled WC. Wall mounted shower unit. Wash hand basin. Radiator. Tiled walls.

OUTSIDE
Both front and rear gardens can be found mainly laid to lawn. The rear garden has a patio area to one side. The gardens are fence and hedge enclosed.

There is a driveway at the end of the garden, which leads to a:

DETACHED GARAGE: Accessible via up and over door.

COUNCIL TAX
Fareham Borough Council. Tax Band C. Payable 2025/2026. £1,924.04.

Important Information

  • This is a Freehold property.
  • This Council Tax band for this property is: C

Property Ref: PFHCC_695845

Share:

Similar Properties

OAKDOWN ROAD, STUBBINGTON

2 Bedroom Semi-Detached Bungalow | £350,000

NO FORWARD CHAIN. An extended two bedroom semi-detached bungalow located in a cul-de-sac position which is within a leve...

GLENBROOK WALK, FAREHAM

4 Bedroom Semi-Detached House | £350,000

NO FORWARD CHAIN. An extended four bedroom semi-detached house located in a popular cul-de-sac position to the west of F...

ABBEYFIELD DRIVE, FAREHAM

3 Bedroom Detached Bungalow | Offers Over £350,000

NO FORWARD CHAIN. An excellent and rare opportunity to purchase this three bedroom detached bungalow located within a hi...

WICKHAM ROAD, FAREHAM

4 Bedroom House | £357,500

This superbly presented four bedroom house is ideally located in the Harrison School catchment area which is curricular...

DRIFT ROAD, WALLINGTON

3 Bedroom Semi-Detached House | £357,700

A modern three bedroom semi-detached house located within the popular village of Wallington and within easy access of Fa...

WOODVALE, FAREHAM

3 Bedroom Detached Bungalow | £359,950

NO FORWARD CHAIN. An excellent opportunity to purchase this three bedroom detached bungalow located in a highly regarded...

Pearsons Estate Agents (Fareham)

21 West Street, Fareham, Hampshire, PO16 0BG

01329 288241

How much is your home worth?

Use our short form to request a valuation of your property.

Request a Valuation

Mortgage Calculator

Amount Borrowed: £
Total Amount Repayable: £
Total Monthly Payment: £
©2026 The Guild of Property Professionals. All rights reserved. Terms and Conditions | Privacy Policy | Cookie Policy | Complaints Policy | Members Login
The Guild of Property Professionals Trading Address: 121 Park Lane, London W1K 7AG. GPEA Limited. Registered in England & Wales.  Company No: 02819824.  Registered Office Address: 2 St. Stephen's Court, St. Stephen's Road, Bournemouth, Dorset, England, BH2 6LA.  VAT Registration No: 576 8795 61
Book a Property Valuation Update Cookies Preferences