NICHOLAS CRESCENT, FAREHAM

£322,500

2 Bedroom Semi-Detached Bungalow for sale in Fareham

1 2 1
  • WELL-PRESENTED SEMI-DETACHED BUNGALOW
  • POPULAR RESIDENTIAL POSITION
  • TWO BEDROOMS
  • LIVING ROOM
  • FITTED KITCHEN
  • DOUBLE GLAZED CONSERVATORY
  • REFITTED SHOWER ROOM
  • OFF ROAD PARKING TO OWN DRIVEWAY
  • WESTERLY ASPECT REAR GARDEN
  • EPC RATING C

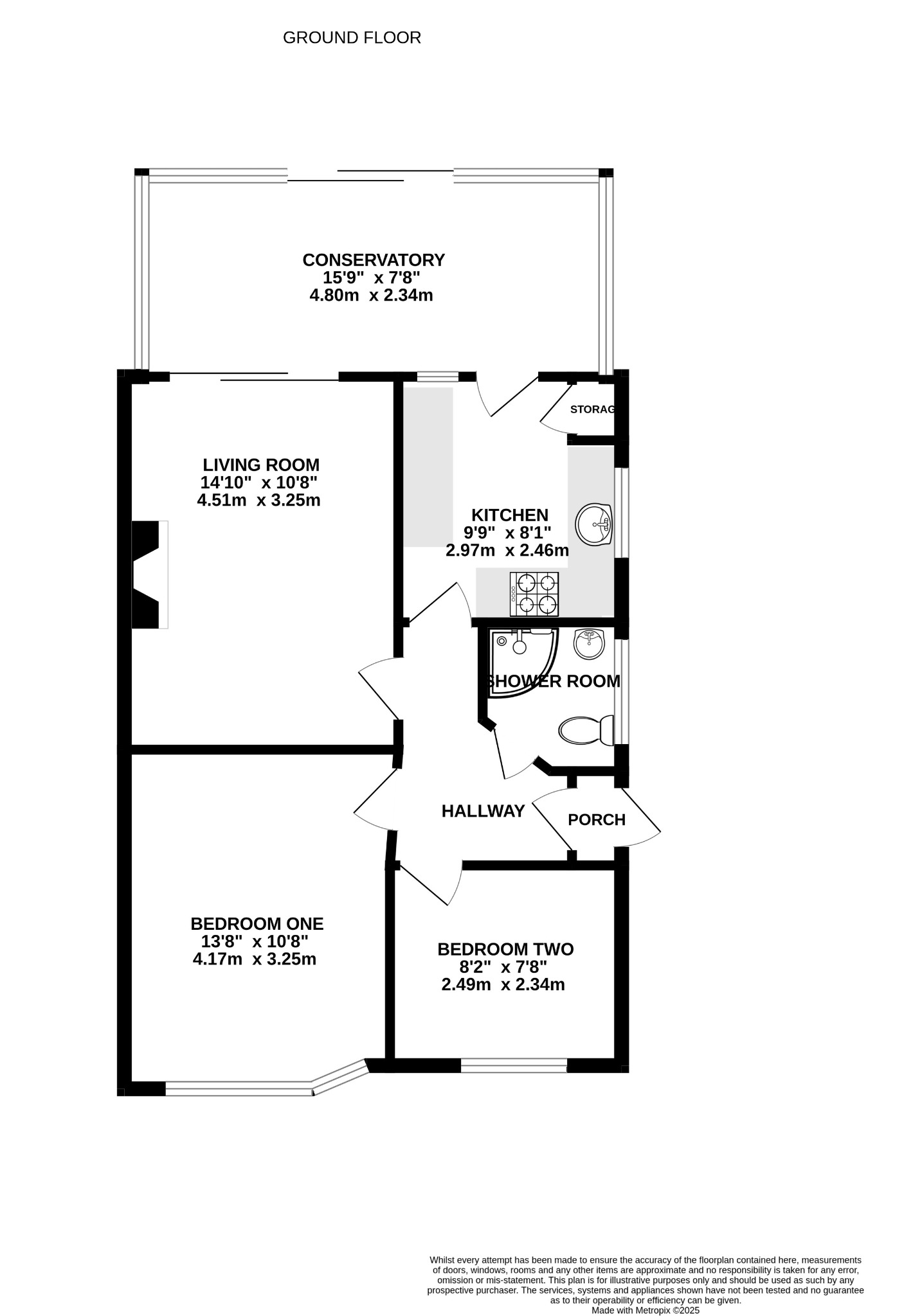
DESCRIPTION
A well-presented two bedroom semi-detached bungalow located in a popular residential position within close proximity of Fareham train station and town centre. The property's accommodation briefly comprises; entrance porch, hallway, two bedrooms located at the front of the bungalow and a living room leading onto the double glazed conservatory which leads to the westerly aspect rear garden. There is a fitted kitchen with built-in appliances and refitted shower room. The bungalow benefits from double glazing and is warmed by gas central heating. There is off road parking available to its OWN DRIVEWAY which runs alongside the bungalow and a low-maintenance westerly aspect rear garden. As sole agents, we would highly recommend an early inspection.

DOUBLE GLAZED DOOR
Leading to:

ENTRANCE PORCH
With part glazed door leading to entrance hall. Access to loft space. Doors to:

BEDROOM ONE
Double glazed bay window to front elevation. Radiator. Inset ceiling spotlights.

BEDROOM TWO
Double glazed window to front elevation. Radiator. Cupboard housing electric fuse box and meters.

LIVING ROOM
Double glazed patio doors to conservatory. Radiator. Laminate flooring. Chimney breast with electric stove. Picture rail.

CONSERVATORY
Double glazed conservatory with double glazed patio doors leading to rear garden and double glazed windows to rear and side. Laminate flooring. Double glazed door to sideway.

KITCHEN
Double glazed window to side elevation and window to rear. Kitchen comprising circular stainless steel sink unit set into work surface. A range of wall and base level units. Built-in four ring gas hob with cooker hood over and electric oven beneath. Cupboard housing wall mounted gas boiler. Built-in fridge, freezer and dishwasher. Storage cupboard where plumbing for washing machine can be found. Double glazed door to conservatory.

SHOWER ROOM
Double glazed window to side elevation. Quadrant shower cubicle. Pedestal wash hand basin. Low level close coupled WC. Heated chrome towel rail. Tiled walls and floor. Extractor fan. Inset ceiling spotlights.

OUTSIDE
Off road parking is available to its OWN DRIVEWAY to the front of the property which continues alongside the bungalow.

The rear garden has been designed with low maintenance in mind and has a timber decked area adjacent to the house and to one side of the garden. The remainder of the garden is laid to artificial turf. There is a large timber shed with power and light and a further metal store. The garden is fence enclosed, has an outside water tap and gated side pedestrian access.

COUNCIL TAX
Fareham Borough Council. Tax Band C. Payable 2025/2026. £1,924.04.

Important Information

  • This is a Freehold property.
  • This Council Tax band for this property is: C

Property Ref: PFHCC_695609

Share:

Similar Properties

CRAVEN COURT, FAREHAM

3 Bedroom Semi-Detached House | £320,000

A modern three bedroom semi-detached house conveniently located within a small cul de sac to the north of Fareham town c...

WYKEHAM PLACE, FAREHAM

2 Bedroom Apartment | £320,000

A beautifully presented first floor two bedroom apartment which forms part of the former Wykeham House School, centrally...

GREYSHOTT AVENUE, FAREHAM

3 Bedroom Semi-Detached House | £320,000

A well-presented three bedroom semi-detached house located within a popular residential position close to local schools...

CASTLE STREET, PORTCHESTER

2 Bedroom Terraced House | £325,000

A wonderful opportunity to purchase a character two bedroom cottage located within the highly popular Castle Street in P...

FRIARY MEADOW, TITCHFIELD . GUIDE PRICE £325,000-£350,000

2 Bedroom Apartment | Guide Price £325,000

GUIDE PRICE £325,000-£350,000. REALISTICALLY PRICED TO SELL, this spacious ground floor two bedroom apartment is set wit...

BEAUFORT AVENUE, FAREHAM

3 Bedroom Semi-Detached Bungalow | £325,000

NO FORWARD CHAIN. This three bedroom semi-detached bungalow lies within the popular Uplands development and is within ea...

Pearsons Estate Agents (Fareham)

21 West Street, Fareham, Hampshire, PO16 0BG

01329 288241

How much is your home worth?

Use our short form to request a valuation of your property.

Request a Valuation

Mortgage Calculator

Amount Borrowed: £
Total Amount Repayable: £
Total Monthly Payment: £
©2026 The Guild of Property Professionals. All rights reserved. Terms and Conditions | Privacy Policy | Cookie Policy | Complaints Policy | Members Login
The Guild of Property Professionals Trading Address: 121 Park Lane, London W1K 7AG. GPEA Limited. Registered in England & Wales.  Company No: 02819824.  Registered Office Address: 2 St. Stephen's Court, St. Stephen's Road, Bournemouth, Dorset, England, BH2 6LA.  VAT Registration No: 576 8795 61
Book a Property Valuation Update Cookies Preferences