BEAUFORT AVENUE, FAREHAM

£450,000
SSTC
This property listing is now SSTC

3 Bedroom Detached Bungalow for sale in Fareham

1 3 1
  • EXTENDED DETACHED BUNGALOW
  • UPLANDS DEVELOPMENT
  • THREE BEDROOMS
  • NO FORWARD CHAIN
  • MODERN FITTED KITCHEN
  • LIVING ROOM
  • MODERN FITTED SHOWER ROOM
  • DRIVEWAY PARKING & GARAGE
  • PRIVATE REAR GARDEN
  • EPC RATING D

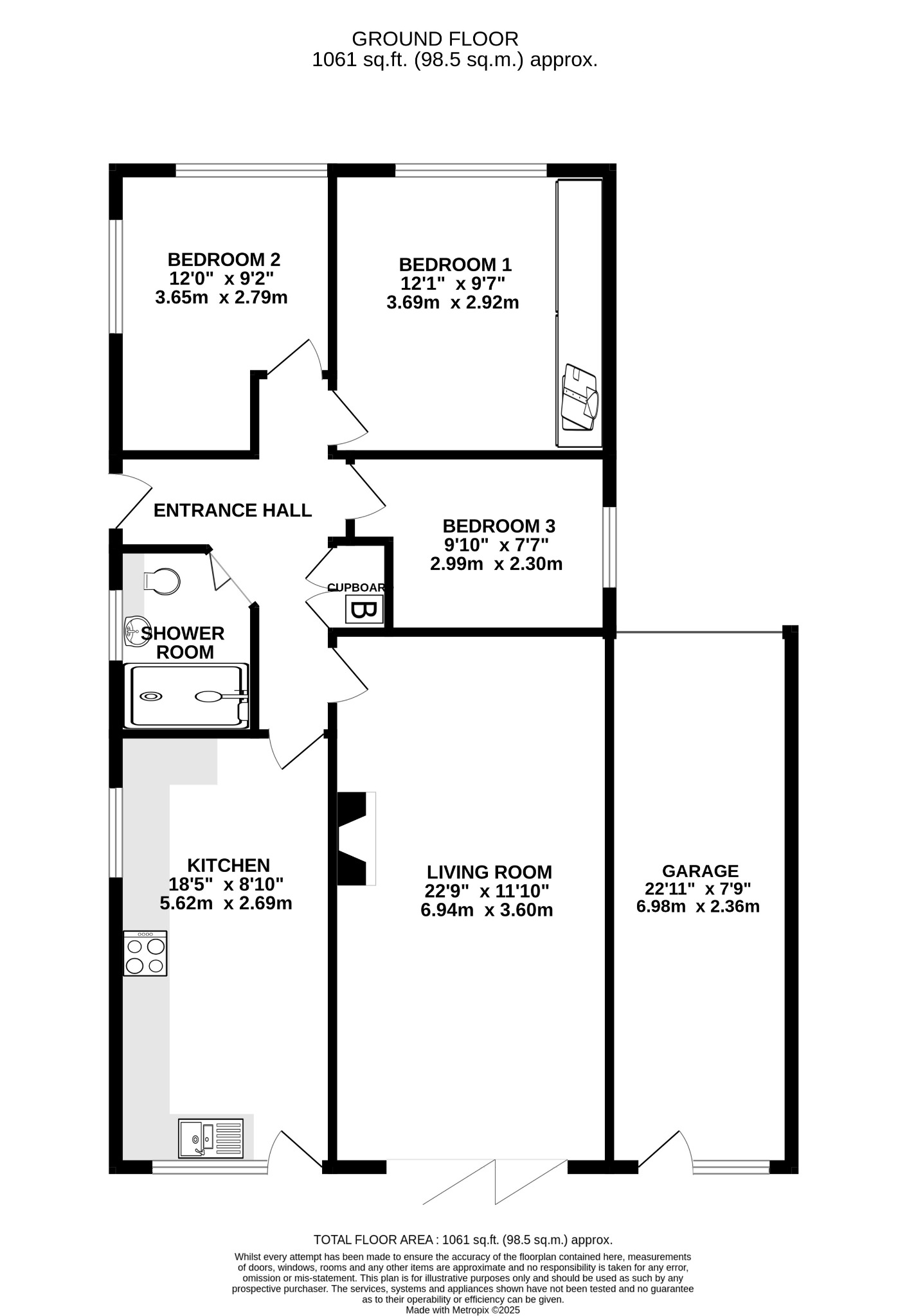
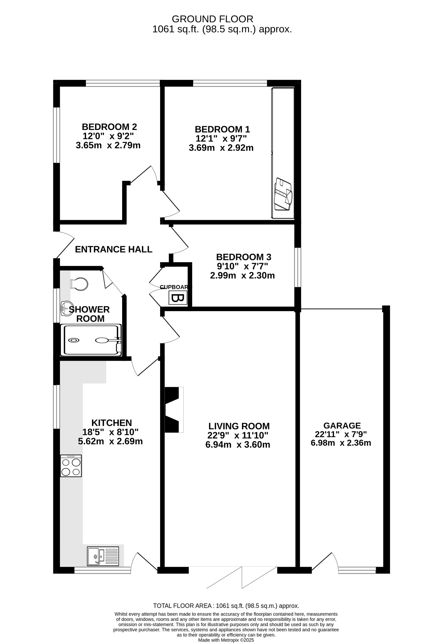
DESCRIPTION
NO FORWARD CHAIN. This extended three bedroom detached bungalow is located in the ever popular Uplands development and simply must be viewed to be appreciated. The internal accommodation, which has been modernised throughout by the current owner comprises; entrance hallway, three bedrooms, modern fitted shower room, 18' modern fitted kitchen and a 22' living room with bi-folding doors onto the rear garden. Externally, the grounds have been landscaped to the front and rear of the bungalow with several ramped accesses. There is block paved driveway parking to the front with double width access, 22' GARAGE and a most impressive private low maintenance landscaped rear garden. Viewing is highly recommended by the sole agents to appreciate the property and location on offer.

ENTRANCE HALL
Double glazed UPVC front door. Smooth ceiling. Loft access. Double storage cupboard with wall-mounted boiler. Radiator. Wood effect laminate flooring.

KITCHEN
Double glazed door leading to the rear garden. Dual aspect with double glazed windows to the rear and side aspect. Smooth ceiling. Matching wall and base units with contrasting worktops. Tiled splashback. Inset stainless steel sink and half drainer. Four ring induction hob with extractor above. Fitted oven and combination oven. Freestanding American style fridge/freezer, washing machine and slimline dishwasher are available via negotiations. Radiator. Tile effect vinyl flooring.

LIVING ROOM
Double glazed bi-folding doors leading to the rear garden. Smooth ceiling. Two wall lights. Modern electric fireplace. Two radiators. Continuation of the flooring from the entrance hall.

BEDROOM ONE
Double glazed window to the front aspect with fitted plantation shutters. Fitted wardrobes. Radiator.

BEDROOM TWO
Currently used as a dining room. Dual aspect with a double glazed window to the front aspect with fitted plantation shutters and a double glazed window to the side aspect. Radiator. Continuation of the flooring from the entrance hall.

BEDROOM THREE
Double glazed window to the side aspect. Smooth ceiling. Radiator.

SHOWER ROOM
Double glazed obscure window to the side aspect. Smooth ceiling with extractor fan. Modern suite comprising; walk-in shower with grip handles, screen and aquaboarding splashback. Concealed low level WC. Wash hand basin. Heated towel rail. Vinyl flooring.

OUTSIDE
To the front of the property, there is a double-width entrance, leading to block paved driveway parking which in turn gives access to the garage. Block paved path leading to the front door and side gated pedestrian access leading to the rear garden. Outside light.

GARAGE: Electric up and over garage door. Power and light. Double glazed window and door to the rear aspect. Personal door from the garden leading to the garage with a pedestrian ramp with a grip rail.

The private landscaped rear garden is a particular feature of this home with low maintenance in mind. An initial patio area with outside lighting and remote control electric awning. Outside tap. Steps and a pedestrian resin ramp with a rail leading to a further seating area with Indian sandstone paving. Curved block paved path and resin bonded areas centred around a feature pergola. Borders with established and maintained shrubs and trees. Garden shed.

COUNCIL TAX
Fareham Borough Council. Tax Band D. Payable 2025/2026. £2,164.55.

Important Information

  • This is a Freehold property.
  • This Council Tax band for this property is: D

Property Ref: PFHCC_646934

Share:

Similar Properties

RIVERSIDE AVENUE, WALLINGTON

3 Bedroom Semi-Detached House | £450,000

An excellent opportunity to purchase this well-designed three double bedroom semi-detached house located in the ever-pop...

HIGH STREET, FAREHAM

3 Bedroom Terraced House | £450,000

This well-proportioned Grade II listed three storey house is located in a prominent position within this highly sought a...

THE COPSE, FAREHAM

4 Bedroom Detached House | £450,000

NO FORWARD CHAIN. This four bedroom detached house occupies a generous plot in a secluded position in a cul-de-sac to th...

FUNTLEY HILL, FUNTLEY. GUIDE PRICE £475,000-£500,000

5 Bedroom Detached House | Guide Price £475,000

GUIDE PRICE £475,000-£500,000. A much improved and extended five bedroom detached family home located north of Fareham t...

THE TIMBERS, CATISFIELD

4 Bedroom Detached House | £475,000

NO FORWARD CHAIN. This four bedroom link-detached house is positioned in a cul-de-sac within the highly regarded area of...

BRUCE CLOSE, FAREHAM

4 Bedroom Semi-Detached House | £475,000

An excellent and rare opportunity has arisen to purchase this four bedroom semi-detached house located in a cul de sac w...

Pearsons Estate Agents (Fareham)

21 West Street, Fareham, Hampshire, PO16 0BG

01329 288241

How much is your home worth?

Use our short form to request a valuation of your property.

Request a Valuation

Mortgage Calculator

Amount Borrowed: £
Total Amount Repayable: £
Total Monthly Payment: £
©2026 The Guild of Property Professionals. All rights reserved. Terms and Conditions | Privacy Policy | Cookie Policy | Complaints Policy | Members Login
The Guild of Property Professionals Trading Address: 121 Park Lane, London W1K 7AG. GPEA Limited. Registered in England & Wales.  Company No: 02819824.  Registered Office Address: 2 St. Stephen's Court, St. Stephen's Road, Bournemouth, Dorset, England, BH2 6LA.  VAT Registration No: 576 8795 61
Book a Property Valuation Update Cookies Preferences