NEW ROAD, FAREHAM

£280,000
SSTC
This property listing is now SSTC

3 Bedroom End of Terrace House for sale in Fareham

2 3 1
  • END OF TERRACED HOUSE
  • IDEALLY LOCATED
  • THREE BEDROOMS
  • NO FORWARD CHAIN
  • DINING ROOM & SITTING ROOM
  • KITCHEN
  • GR/FL BATHROOM & FIRST/FL WC
  • FORECOURT TO THE FRONT & REAR GARDEN
  • EPC RATING D

DRAFT DETAILS AWAITING VENDOR APPROVAL

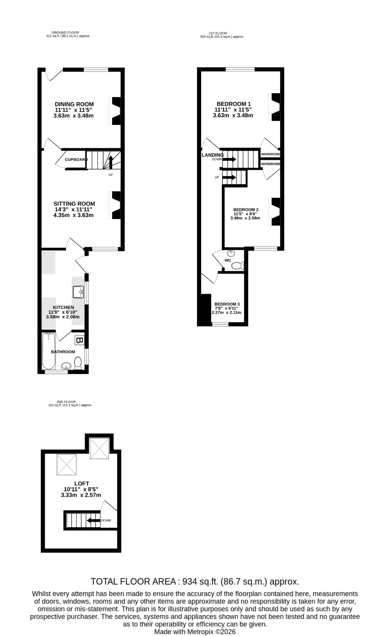
DESCRIPTION
NO FORWARD CHAIN. This three bedroom end of terraced house is ideally located in the heart of Fareham town centre and within easy reach of Fareham's mainline railway station. The internal accommodation comprises; dining room, sitting room, kitchen and a ground floor bathroom. To the first floor, there are three bedrooms and a cloakroom and to the second floor, there is a loft room with access via a paddle staircase from the landing. Externally, there is a forecourt to the front and a rear garden, which has the benefit of backing onto Park Lane Recreation Ground. Viewing is highly recommended by the sole agents.

COMPOSITE FRONT DOOR

DINING ROOM
Double glazed window to the front aspect. Smooth ceiling picture rail. Ornate cast iron fireplace. Wood effect flooring.

SITTING ROOM
Double glazed window to the rear aspect. Smooth ceiling. Picture rail. Chimney breast with a brick recess wooden surround and tiled hearth. Picture rail. Staircase rising to the first floor. Radiator. Wood effect flooring.

KITCHEN
Double glazed door leading to the rear garden. Double glazed window to the side aspect. Smooth ceiling. Matching wall and base units with wooden worktops. Tiled splashback. Space for cooker with extractor above. Integral fridge/freezer. Space for washing machine and slimline dishwasher.

BATHROOM
Dual aspect with double glazed windows to the front and side aspect. Suite comprising; bath with shower over and rail. Wash hand basin. Low level WC. Part tiled walls. Tiled flooring. Wall mounted 'Glow-worm' boiler.

FIRST FLOOR

LANDING
Smooth ceiling. Panelled staircase leading to the second floor. Radiator.

BEDROOM ONE
Double glazed window to the front aspect. Smooth ceiling. Built-in wardrobe. Ornate cast iron fireplace. Radiator.

BEDROOM TWO
Double glazed window to the rear aspect overlooking Park Lane Recreation Ground. Smooth ceiling. Built-in wardrobe. Ornate cast iron fireplace. Radiator.

BEDROOM THREE
Double glazed window to the rear aspect with views over Park Lane Recreation Ground. Smooth ceiling. Radiator.

WC
Smooth ceiling. Low level WC and wash hand basin. Heated towel rail. Tiled flooring.

SECOND FLOOR

LOFT
Smooth ceiling. Two skylights to the front aspect. Radiator. Large walk-in wardrobe/storage.

OUTSIDE
To the front of the property, there is forecourt.

The private aspect rear garden has the benefit of backing onto Park Lane Recreation Ground. It has an initial paved area with the remainder of the garden predominantly being laid to lawn with shrubs and borders and seating area at the bottom of the garden.

AGENTS NOTE
No. 37 New Road has pedestrian right of way through the rear garden.

COUNCIL TAX
Fareham Borough Council. Tax Band B. Payable 2025/2026. £1,683.54.

Important Information

  • This is a Freehold property.
  • This Council Tax band for this property is: B

Property Ref: PFHCC_703447

Share:

Similar Properties

LONSDALE AVENUE, PORTCHESTER

2 Bedroom Semi-Detached Bungalow | £280,000

NO FORWARD CHAIN. A two bedroom semi-detached bungalow located close to Portchester foreshore which requires general upd...

TENNYSON GARDENS, FAREHAM

3 Bedroom Semi-Detached Bungalow | £280,000

NO FORWARD CHAIN. An excellent opportunity to purchase this extended three bedroom semi-detached bungalow located in a c...

CATISFIELD LANE, CATISFIELD

2 Bedroom Apartment | £279,950

SHARE OF THE FREEHOLD. This charming Grade II listed top floor (second floor) apartment is positioned within a most impr...

ELMS ROAD, FAREHAM

2 Bedroom Semi-Detached House | £285,000

A two bedroom semi-detached house located within a popular residential position just to the south of Fareham town centre...

WESTERN ROAD, FAREHAM

2 Bedroom End of Terrace House | £285,000

This well-presented two bedroom older style end terrace house is ideally located within the heart of Fareham town centre...

HENLEY GARDENS, FAREHAM

3 Bedroom Semi-Detached House | £285,000

NO FORWARD CHAIN. This extended three bedroom semi-detached house is located in a popular area to the north-west of Fare...

Pearsons Estate Agents (Fareham)

21 West Street, Fareham, Hampshire, PO16 0BG

01329 288241

How much is your home worth?

Use our short form to request a valuation of your property.

Request a Valuation

Mortgage Calculator

Amount Borrowed: £
Total Amount Repayable: £
Total Monthly Payment: £
©2026 The Guild of Property Professionals. All rights reserved. Terms and Conditions | Privacy Policy | Cookie Policy | Complaints Policy | Members Login
The Guild of Property Professionals Trading Address: 121 Park Lane, London W1K 7AG. GPEA Limited. Registered in England & Wales.  Company No: 02819824.  Registered Office Address: 2 St. Stephen's Court, St. Stephen's Road, Bournemouth, Dorset, England, BH2 6LA.  VAT Registration No: 576 8795 61
Book a Property Valuation Update Cookies Preferences