UNION STREET, FAREHAM

£265,000
SSTC
This property listing is now SSTC

2 Bedroom House for sale in Fareham

2 2 1
  • GRADE II LISTED HOUSE
  • TOWN CENTRE LOCATION
  • TWO BEDROOMS
  • NO FORWARD CHAIN
  • SITTING ROOM & DINING ROOM
  • MODERN FITTED KITCHEN
  • BATHROOM
  • ENCLOSED COURTYARD GARDEN
  • EPC RATING D

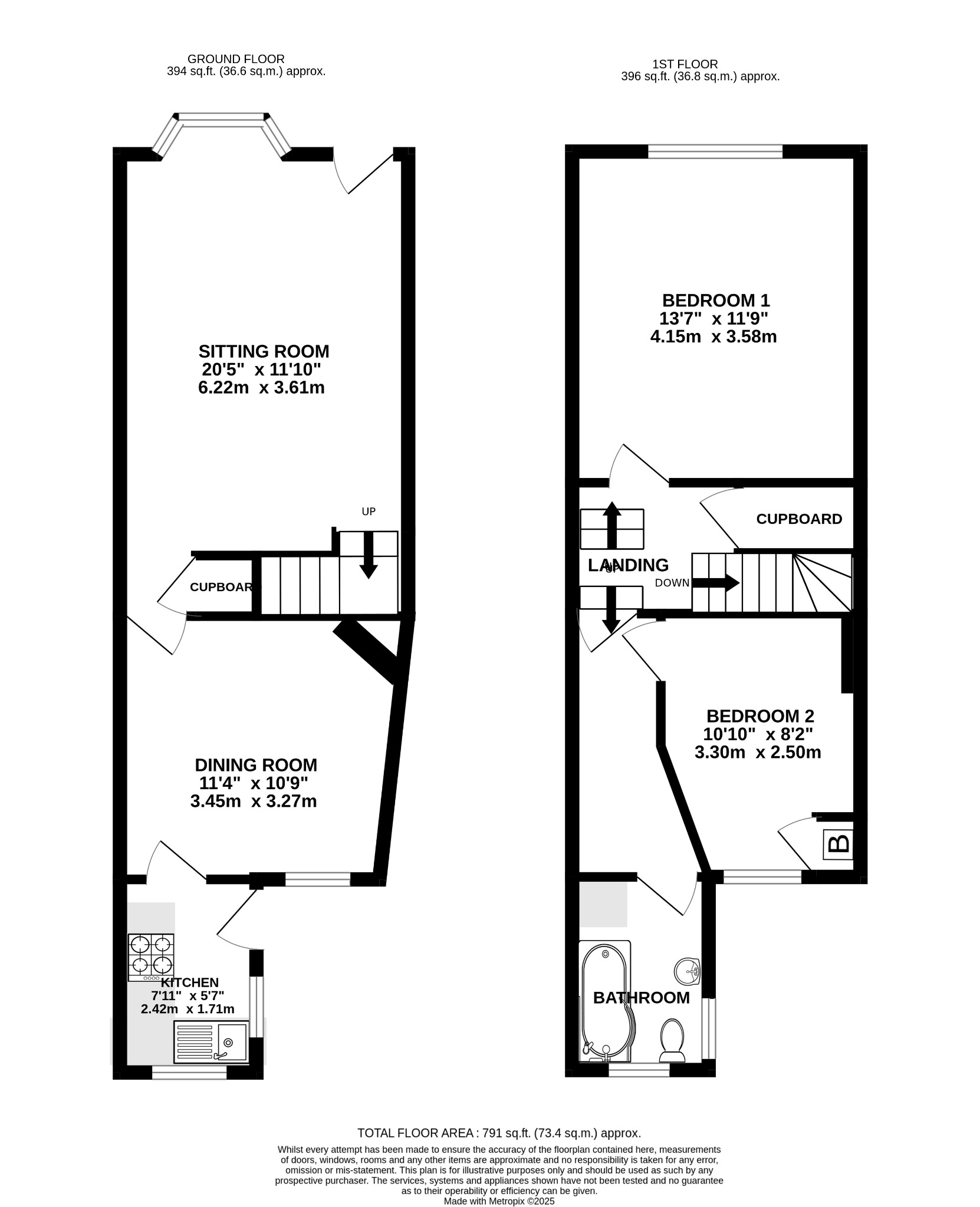
DESCRIPTION
NO FORWARD CHAIN. A rare and superb opportunity to purchase this grade II listed two bedroom characterful house located within the High Street conservation area of Fareham with all it amenities on your door step. The well-presented internal accommodation comprises; 16' sitting room, dining room and a modern fitted kitchen. To the first floor, there are two bedrooms and a bathroom. Outside, there is an enclosed courtyard garden. Viewing is highly recommended by the sole agents to appreciate the property and location on offer.

WOODEN GLAZED FRONT DOOR
Leading to:

SITTING ROOM
Sash window to the front aspect. Feature exposed beams on ceiling and walls. Staircase rising to the first floor with understairs cupboard. Part wood panelled walls. Two radiators.

DINING ROOM
Window to the rear aspect. Smooth ceiling with inset spotlight and feature exposed beams. Two wall lights. Radiator. Wood effect laminate flooring.

KITCHEN
Door to the rear courtyard. Dual aspect with window to side and rear. Smooth ceiling. Matching wall and base units with inset stainless steel sink and drainer with contrasting worktops and tiled splashback. Integral oven/grill. Four ring electric hob with extractor hood over. Space for low level fridge. Wooden flooring.

FIRST FLOOR

LANDING
Smooth ceiling with inset spotlights. Storage cupboard. Feature exposed beams. Doors to:

BEDROOM ONE
Sash window to the front aspect. Smooth ceiling with inset spotlights. Two radiators.

BEDROOM TWO
Window to the rear aspect. Smooth ceiling with inset spotlights. Cupboard with wall mounted 'Baxi' boiler. Radiator.

BATHROOM
Dual aspect room with obscure windows to the rear and side aspect. Smooth ceiling. Extractor fan. Suite comprising; ‘P’ shaped bath with hand shower and screen, low level WC and wash hand basin. Heated towel rail. Part tiled walls. Space for washing machine. Wood effect laminate flooring.

OUTSIDE
The property benefits from a courtyard style low maintenance garden with shrubs and borders.

COUNCIL TAX
Fareham Borough Council. Tax Band B. Payable 2025/2026. £1,683.54.

Important Information

  • This is a Freehold property.
  • This Council Tax band for this property is: B

Property Ref: PFHCC_696628

Share:

Similar Properties

HOYLECROFT CLOSE, FAREHAM

3 Bedroom Terraced House | £265,000

This well-presented three bedroom house is ideally located to the north west of Fareham town centre close to local shops...

GORDON ROAD, FAREHAM

2 Bedroom House | £264,950

NO FORWARD CHAIN. This superbly presented two double bedroom older style house is located within the heart of Fareham to...

RAVENSWOOD, TITCHFIELD COMMON

2 Bedroom Terraced House | £262,000

A well-presented two bedroom terraced house located in a cul de sac position within the popular area of Titchfield Commo...

CRESCENT ROAD, FAREHAM

3 Bedroom Terraced House | £269,000

This extended three bedroom terraced house is ideally located within the heart of Fareham town centre and within a short...

NORTH WALLINGTON, WALLINGTON

2 Bedroom House | £269,950

NO FORWARD CHAIN. This charming two bedroom house is located in the highly regarded and ever-popular village of Wallingt...

MARKS ROAD, STUBBINGTON

2 Bedroom Semi-Detached House | £270,000

NO FORWARD CHAIN. An excellent opportunity to purchase this two bedroom semi-detached house, which offers excellent pote...

Pearsons Estate Agents (Fareham)

21 West Street, Fareham, Hampshire, PO16 0BG

01329 288241

How much is your home worth?

Use our short form to request a valuation of your property.

Request a Valuation

Mortgage Calculator

Amount Borrowed: £
Total Amount Repayable: £
Total Monthly Payment: £
©2026 The Guild of Property Professionals. All rights reserved. Terms and Conditions | Privacy Policy | Cookie Policy | Complaints Policy | Members Login
The Guild of Property Professionals Trading Address: 121 Park Lane, London W1K 7AG. GPEA Limited. Registered in England & Wales.  Company No: 02819824.  Registered Office Address: 2 St. Stephen's Court, St. Stephen's Road, Bournemouth, Dorset, England, BH2 6LA.  VAT Registration No: 576 8795 61
Book a Property Valuation Update Cookies Preferences