TRAMPERS LANE, FAREHAM

£425,000
SSTC
This property listing is now SSTC

3 Bedroom Semi-Detached House for sale in Fareham

2 3 1
  • OLDER STYLE SEMI-DETACHED HOUSE
  • SEMI-RURAL LOCATION
  • THREE BEDROOMS
  • TWO RECEPTION ROOMS
  • REFITTED KITCHEN/BREAKFAST ROOM
  • UTILITY
  • GROUND FLOOR BATHROOM
  • OFF ROAD PARKING
  • REAR GARDEN IN EXCESS OF 100FT
  • EPC RATING F

DESCRIPTION
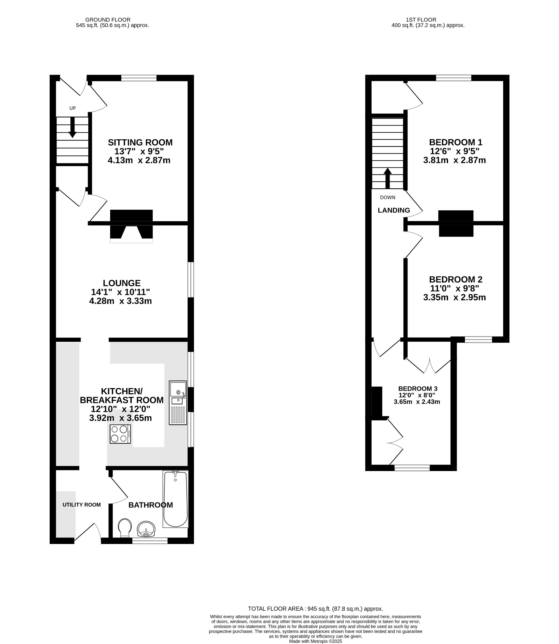
A wonderful opportunity to purchase a three bedroom older style semi-detached house located within the semi-rural location of North Boarhunt. The property's accommodation briefly comprises; entrance hall, sitting room, lounge which leads through to the refitted kitchen/breakfast room, a utility room and ground floor bathroom. On the first floor, three bedrooms can be found. The property benefits from double glazing and is warmed by gas central heating. Externally, the property benefits from off road parking for two to the front of the property and a rear garden in excess of 100ft. As sole agents, we would highly recommend an early inspection.

DOUBLE GLAZED DOOR
Leading to:

ENTRANCE HALL
Stairs to first floor. Door to:

SITTING ROOM
Double glazed window to front elevation. Radiator. Storage cupboard built into fireplace. Door to:

LOUNGE
Double glazed window to side elevation. Chimney breast with woodburning stove. Radiator. Feature panelled wall. Doorway to:

KITCHEN/BREAKFAST ROOM
Two double glazed windows to side elevation. White enamel one and a half bowl single drainer sink unit with cupboard under. Further range of wall and base level units with work surfaces over and splash back tiling. Built-in four ring ceramic hob with drawers below. Built-in double oven with cupboards under and over. Built-in and concealed dishwasher and fridge/freezer. Base level boiler. Inset ceiling spotlights. Doorway to:

UTILITY ROOM
Plumbing for washing machine and space for tumble dryer with work surface over. Stable door to garden. Door to:

BATHROOM
Double glazed window to rear elevation. Shower bath with shower unit over with monsoon shower head. Vanity unit with wash hand basin and storage beneath. Low level close coupled WC. Heated towel rail. Part tiled walls. Extractor fan.

FIRST FLOOR
LANDING

Doors to:

BEDROOM ONE
Double glazed window to front elevation. Two fitted wardrobes and further storage cupboard. Chimney breast with feature cast iron fireplace.

BEDROOM TWO
Double glazed window to rear elevation. Radiator. Chimney breast with cast iron fireplace.

BEDROOM THREE
Double glazed window to rear elevation. Two sets of fitted wardrobes. Chimney breast with cast iron fireplace. Radiator.

OUTSIDE
The property benefits from off road parking to the front of the property.

The generous rear garden measures in excess of 100ft and has a large patio area adjacent to the property. The majority of the garden can be found mainly laid to lawn and has a central gravel path running the length of the garden. There are numerous garden stores including a large timber store which is located at the end of the garden. The garden is fence enclosed and has an outside water tap and gated side pedestrian access.

COUNCIL TAX
Winchester City Council. Tax Band D. Payable 2025/2026. £2,708.19.

Important Information

  • This is a Freehold property.
  • This Council Tax band for this property is: D

Property Ref: PFHCC_695763

Share:

Similar Properties

BENTLEY CRESCENT, FAREHAM

3 Bedroom Detached Bungalow | £425,000

NO FORWARD CHAIN. A well-proportioned two/three bedroom detached bungalow located on a corner plot within the popular ar...

KILN ROAD, FAREHAM. GUIDE PRICE £425,000 - £450,000.

3 Bedroom Detached House | Guide Price £425,000

GUIDE PRICE £425,000 - £450,000. A three double bedroom detached family home located within a sought after location to t...

GREENBANKS GARDENS, WALLINGTON. GUIDE PRICE £425,000 - £435,000.

4 Bedroom Link Detached House | Guide Price £425,000

GUIDE PRICE £425,000 - £435,000. A well-presented four bedroom link detached house located in a cul de sac position with...

RIVERSIDE AVENUE, WALLINGTON

3 Bedroom Detached House | £429,950

This versatile and well-proportioned three bedroom detached chalet style house is located in an elevated position within...

ABBEYFIELD DRIVE, FAREHAM

3 Bedroom Detached Bungalow | £430,000

NO FORWARD CHAIN. A beautifully presented three bedroom detached bungalow located in a highly regarded residential area...

LYNDEN CLOSE, FAREHAM

4 Bedroom Detached House | £435,000

NO FORWARD CHAIN. A well-presented four bedroom family home located within a small cul-de-sac to the west of Fareham tow...

Pearsons Estate Agents (Fareham)

21 West Street, Fareham, Hampshire, PO16 0BG

01329 288241

How much is your home worth?

Use our short form to request a valuation of your property.

Request a Valuation

Mortgage Calculator

Amount Borrowed: £
Total Amount Repayable: £
Total Monthly Payment: £
©2026 The Guild of Property Professionals. All rights reserved. Terms and Conditions | Privacy Policy | Cookie Policy | Complaints Policy | Members Login
The Guild of Property Professionals Trading Address: 121 Park Lane, London W1K 7AG. GPEA Limited. Registered in England & Wales.  Company No: 02819824.  Registered Office Address: 2 St. Stephen's Court, St. Stephen's Road, Bournemouth, Dorset, England, BH2 6LA.  VAT Registration No: 576 8795 61
Book a Property Valuation Update Cookies Preferences