Pinehurst Avenue, Farnborough

£335,000
SSTC
This property listing is now SSTC

Terraced House for sale in Farnborough

  • Walking distance of farnborough main station
  • Off street parking
  • Recently refurbished

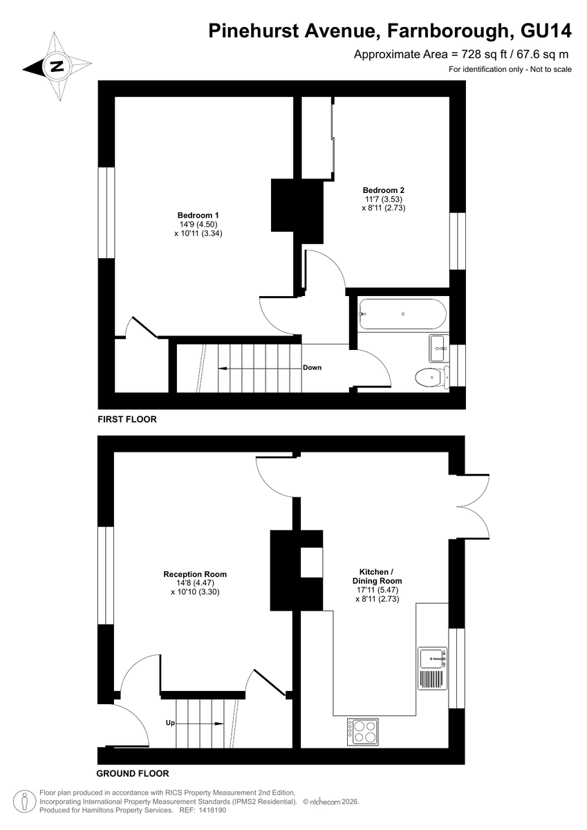
FULL DESCRIPTION Hamiltons are delighted to present this beautifully renovated two-bedroom mid-terrace home, ideally located just a stone's throw from local schools, shops, restaurants, and Farnborough Main Train Station.

This charming property offers two generous double bedrooms, both benefiting from built-in storage. The newly fitted bathroom features a contemporary suite with a shower over the bath and a stylish vanity unit providing additional storage.

To the front of the property, the cosy living room creates a warm and inviting atmosphere, complete with a log burner - perfect for relaxing during the colder months. To the rear, the recently refitted kitchen offers ample space, with room for a dining table and plumbing in place for a washing machine.
Newly installed French doors open onto a sociable patio area, ideal for entertaining.

The remainder of the garden is laid to lawn, with a pathway leading to the rear where a garden shed is conveniently situated.

Further benefits include off-street parking and rear access to the garden.
 

Property Ref: 102401002474

Share:

Similar Properties

Laurel Avenue, Englefield Green, Egham

2 Bedroom Maisonette | Guide Price £325,000

**No Onward Chain & Share of Freehold**Hamiltons are delighted to bring to the market this light and spacious two double...

Conway Close, Frimley

2 Bedroom Terraced House | Offers in excess of £325,000

Hamiltons are pleased to bring to the market, this two double bedroom property that would make a great first time or inv...

Jubilee Drive, Church Crookham

3 Bedroom Maisonette | £325,000

Hamiltons are proud to offer to the market this recently constructed, spacious three-bedroom property, situated on a sou...

Haining Gardens, Mytchett

3 Bedroom Semi-Detached House | £350,000

A beautifully presented and recently renovated three bedroom property, situated in a quiet cul de sac within a short dis...

Connop Way, Frimley

3 Bedroom Semi-Detached House | Offers in excess of £350,000

A deceptively spacious three/four bedroom property, situated in a quiet cul de sac within walking distance of Frimley Pa...

Frimley Green Road, Frimley Green

3 Bedroom Town House | Offers in excess of £350,000

**No Onward Chain**A beautifully presented and recently redecorated three double bedroom, three storey town house with a...

Hamiltons Property Services (Frimley Green)

227 - 229 Frimley Green Road, Frimley Green, Surrey, GU16 6LD

01276 409448

How much is your home worth?

Use our short form to request a valuation of your property.

Request a Valuation

Mortgage Calculator

Amount Borrowed: £
Total Amount Repayable: £
Total Monthly Payment: £
©2026 The Guild of Property Professionals. All rights reserved. Terms and Conditions | Privacy Policy | Cookie Policy | Complaints Policy | Members Login
The Guild of Property Professionals Trading Address: 121 Park Lane, London W1K 7AG. GPEA Limited. Registered in England & Wales.  Company No: 02819824.  Registered Office Address: 2 St. Stephen's Court, St. Stephen's Road, Bournemouth, Dorset, England, BH2 6LA.  VAT Registration No: 576 8795 61
Book a Property Valuation Update Cookies Preferences