Kingsway Mews, Farnham Common

Guide Price
£895,000
Under Offer
This property listing is now Under Offer

4 Bedroom House for sale in Farnham Common

2 4 2
  • Modern Detached Four Bedroom Family House
  • Close to Local Shopping and Burnham Beeches
  • Large Kitchen / Dining Room
  • South Facing Garden
  • Garage and Off Street Parking
  • Utility Room
  • Two Bathrooms (One En Suite)
  • Study



Situated in an exclusive mews development within walking distance of Farnham Common Village, a spacious four bedroom detached family house offering well planned accommodation.



Ash House benefits from a mature south facing garden, garage and covered parking area. Available with no upper chain.



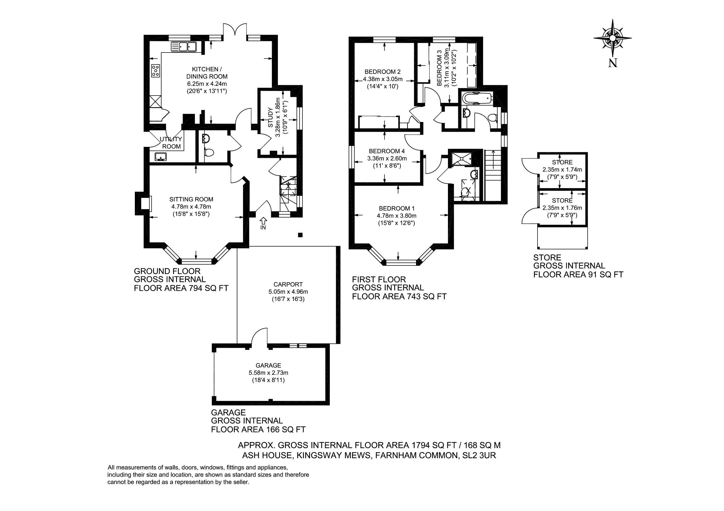
Front driveway with covered parking provision. 



Front door leading to spacious Entrance Hall with staircase to first floor and storage below. Downstairs Cloakroom with WC and wash hand basin.

 

Spacious Sitting Room with bay window and recessed fireplace. Separate Study with side aspect. 



Large Kitchen/Breakfast Room fitted with tiled flooring throughout and a comprehensive range of wall and base units providing ample worktop surfaces. Sink with mixer taps, five ring gas hob with overhead extractor, integrated oven and grill, wine chiller and integrated dishwasher. Area for breakfast table with glazed doors leading to Garden. Separate Utility Room with and range of wall and base units, worktop surfaces, sink, space and plumbing for washing machine and tiled flooring. Side door access.



Staircase to First Floor Landing with side window. 



Bedroom One is front facing with a bay window. En Suite Shower Room comprising a large shower cubicle, inset WC with storage below, wash hand basin, part tiled walls and tiled flooring. Bedroom Two is rear facing with fitted wardrobe cupboards, Bedroom Three is also rear facing with built-in in wardrobe cupboards. Bedroom Four is side facing. 



Family Bathroom comprising of a panelled bath, inset wash hand basin and WC.    



There is a mature South Facing Garden, mainly laid to lawn with a large patio area. Selection of established and well stocked flower beds. Two large timber storage sheds. Garage with power and light and side pedestrian access.   

Kingsway Mews is a popular residential development, ideally situated for easy access of the village of Farnham Common and Burnham Beeches.  M40 (J2) 2.5 miles, Gerrards Cross 3.6 miles, Beaconsfield 4.5 miles, Heathrow Airport 15.0 miles. All distances are approximate. The Village of Farnham Common offers a comprehensive selection of shopping, restaurants and other outlets such as a post office, pharmacy and a home improvements store. Burnham Beeches is close by with hundreds of acres of protected woodland, offering attractive walks and a café. Trains to London (Paddington) are available from Burnham, Taplow and Maidenhead. The Elizabeth Line at Burnham gives a fast service to Canary Wharf, the City and the West End. Alternatively, Gerrards Cross and Beaconsfield provide a regular service via the Chiltern Line to London Marylebone.  



The area is well regarded for its excellent grammar schooling along with a good number of state and independent schools including Caldicott (boys preparatory) in Farnham Common, Dair House (mixed preparatory) in Farnham Royal and Maltmans (girls preparatory) in Gerrards Cross. For a full list of catchment schools visit buckscc.gov.uk 



EPC RATING: C                               COUNCIL TAX BAND: G 

Important Information

  • This is a Freehold property.

Property Ref: EAXML15419_12695522

Share:

Similar Properties

Scott Close, Farnham Common

5 Bedroom House | Guide Price £895,000

* SOLD BY FOREMAN KING * A spacious and well proportioned five bedroom detached family house located in a popular cul...

Fairfield Lane, Farnham Royal, Buckinghamshire SL2

5 Bedroom House | Asking Price £895,000

* SOLD BY FOREMAN KING * A magnificent Four / Five Bedroom Detached family home set in sought after road in Farnham Roya...

Beaconsfield Road, Farnham Common, Buckinghamshire SL2

5 Bedroom Detached House | Asking Price £895,000

A substantial detached family home packed full of character features, situated within walking distance of Farnham Common...

Bracken Close, Farnham Common, Buckinghamshire SL2

4 Bedroom Detached House | Asking Price £899,950

* SOLD BY FOREMAN KING * A very well presented four bedroom detached home in a sought after cul de sac off Templewood La...

Rosewood Way, Farnham Common, Buckinghamshire

3 Bedroom House | Asking Price £925,000

* SOLD BY FOREMAN KING * A spacious, well presented and recently redecorated family house located in a popular and desi...

Hedgerley Hill, Hedgerley, Farnham Common, Buckinghamshire

4 Bedroom House | Guide Price £929,500

* SOLD BY FOREMAN KING * A beautifully presented four bedroom home set in a popular position on Hedgerley Hill. The prop...

Foreman King (Farnham Common)

The Broadway, Farnham Common, Buckinghamshire, SL2 3QL

01753 643222

How much is your home worth?

Use our short form to request a valuation of your property.

Request a Valuation

Mortgage Calculator

Amount Borrowed: £
Total Amount Repayable: £
Total Monthly Payment: £
©2026 The Guild of Property Professionals. All rights reserved. Terms and Conditions | Privacy Policy | Cookie Policy | Complaints Policy | Members Login
The Guild of Property Professionals Trading Address: 121 Park Lane, London W1K 7AG. GPEA Limited. Registered in England & Wales.  Company No: 02819824.  Registered Office Address: 2 St. Stephen's Court, St. Stephen's Road, Bournemouth, Dorset, England, BH2 6LA.  VAT Registration No: 576 8795 61
Book a Property Valuation Update Cookies Preferences