Longham, Ferndown, Dorset

£570,000

4 Bedroom Link Detached House for sale in Ferndown

1 4 2

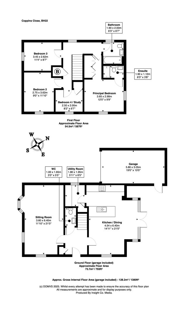
A welcoming ENTRANCE HALL creates an immediate sense of space, with access to a DOWNSTAIRS CLOAKROOM and a useful STORAGE CUPBOARD for coats and household items.

The KITCHEN / DINING ROOM forms the heart of the home and is ideal for modern family living. The kitchen is fitted with a comprehensive range of wall and base units, generous work surfaces, a grey sink and drainer, an eye-level Electrolux™ oven and an Electrolux™ six-burner hob. A ceiling fan adds comfort, while French doors open directly onto the rear garden, providing an excellent flow for indoor-outdoor living.
Adjoining the kitchen is a practical UTILITY ROOM, offering additional storage, worktop space, a pantry cupboard along with space & plumbing for a washing machine and tumble dryer.

The SITTING ROOM is light, spacious and versatile, featuring a bay window with two further windows, all fitted with white louvered shutters. Two ceiling fans enhance comfort, and a TV point is positioned for wall-mounted media. The room comfortably accommodates a range of seating arrangements, including two sofas or an L-shaped layout.

To the first floor, a CENTRAL LANDING provides access to all bedrooms and bathrooms. There are four bedrooms in total, three of which are generous doubles. The PRINCIPAL BEDROOM benefits from a modern ENSUITE SHOWER ROOM, while the remaining bedrooms are served by a well-appointed family bathroom with bath and overhead shower.

The FOURTH BEDROOM is a well-proportioned single, currently arranged as a home office, comfortably accommodating two desks and computer setups, making it ideal for remote working or study.

Throughout the property, all windows are double glazed and fitted with white louvered shutters, enhancing privacy and energy efficiency.

Outside
To the front, the property offers a DRIVEWAY providing plenty of off-road parking for residents as well as guests. A wall-mounted electric vehicle charging point adds further convenience. The single garage features an electric up-and-over door, offering secure parking or useful storage and useful door opening onto the patio area.

The LANDSCAPED REAR GARDEN is a particular highlight, offering a good level of privacy and a thoughtfully designed layout. Defined seating areas are ideal for entertaining or relaxing, while a striking olive tree with ambient lighting creates an inviting evening atmosphere. For keen gardeners, a tucked-away area to the side of the garden gate offers the perfect opportunity for a small lean-to greenhouse.

Location
Set within a well-established and highly regarded residential cul-de-sac, this attractive four-bedroom family home occupies a desirable corner plot in a sought-after area in Ferndown location.

Ferndown is well known for its strong community feel and excellent range of amenities. Local shops, supermarkets, cafés, leisure facilities and well-regarded schools are all within easy reach. Ferndown Championship Golf Course, woodland walks and convenient transport links to Bournemouth, Poole and Wimborne further enhance the appeal, making this an ideal location for families and commuters alike.

Directions
Use what3words.com to navigate to the exact spot. Search using: famous.called.pushy

Link-Detached Family Home
Four Bedrooms
Principal Bedroom with Ensuite Shower Room
Kitchen / Dining Room with French Doors
Downstairs Cloakroom & Storage Cupboard
Landscaped Rear Garden
Corner Plot
Garage
Driveway Parking with electric charging point
Immaculately Presented


ROOM MEASUREMENTS Please refer to floor plan.

SERVICES Mains drainage, electric & gas. Gas central heating. Solar panels.

LOCAL AUTHORITY Dorset Council. Tax band E.

BROADBAND Standard download 3 Mbps, upload 0.5 Mbps. Superfast download 66 Mbps, upload 15 Mbps. Ultrafast download 1000 Mbps, upload 1000 Mbps. Please note all available speeds quoted are 'up to'.

MOBILE PHONE COVERAGE For further information please go to Ofcom website.

TENURE Freehold.

LETTINGS Should you be interested in acquiring a Buy-to-Let investment, and would appreciate advice regarding the current rental market, possible yields, legislation for landlords and how to make a property safe and compliant for tenants, then find out about our Investor Club Our expert lettings team will be pleased to provide you with additional, personalised support; just call on the branch telephone number to take the next step.

IMPORTANT NOTICE DOMVS and its Clients give notice that: they have no authority to make or give any representations or warranties in relation to the property. These particulars do not form part of any offer or contract and must not be relied upon as statements or representations of fact. Any areas, measurements or distances are approximate. The text, photographs (including any AI photography) and plans are for guidance only and are not necessarily comprehensive. It should not be assumed that the property has all necessary Planning, Building Regulation or other consents, and DOMVS has not tested any services, equipment or facilities. Purchasers must satisfy themselves by inspection or otherwise. DOMVS is a member of The Property Ombudsman scheme and subscribes to The Property Ombudsman Code of Practice.

Important Information

  • This is a Freehold property.

Property Ref: 654487_WIM250035

Share:

Similar Properties

Wootton Fitzpaine, Bridport, Dorset

3 Bedroom Detached House | Guide Price £559,995

A much-loved family home in a generous plot with idyllic south-facing garden. Tucked away in this tranquil, unspoilt vil...

Milton Abbas, Dorset

3 Bedroom Detached House | Guide Price £550,000

Tucked away on ONE ACRE of land near Milton Abbas, this characterful home blends space, privacy and rural charm, ideal f...

West Stafford, Dorset

3 Bedroom Detached House | Guide Price £550,000

Owner says: 'Shepherds Walk offers modern comfort in a picturesque setting. We've loved the open-plan living, sunlit gar...

Bridport, Dorset

3 Bedroom Detached House | £575,000

A charming and adaptable home in generous, private gardens. With peaceful corners, a sizeable outbuilding, double garage...

Dorchester, Dorset

4 Bedroom Detached House | Guide Price £575,000

A comfortable and versatile detached family home in a favoured residential area. SUBJECT TO GRANT OF PROBATE.Freehold

Tolpuddle, Dorset

5 Bedroom Detached Bungalow | Guide Price £600,000

Owner says: "our lovely detached bungalow combines light, space, and versatility with gardens, conservatory, workshops,...

DOMVS Mid Dorset (Dorchester)

Dorchester, Dorset, DT1 1UW

01305 757300

How much is your home worth?

Use our short form to request a valuation of your property.

Request a Valuation

Mortgage Calculator

Amount Borrowed: £
Total Amount Repayable: £
Total Monthly Payment: £
©2026 The Guild of Property Professionals. All rights reserved. Terms and Conditions | Privacy Policy | Cookie Policy | Complaints Policy | Members Login
The Guild of Property Professionals Trading Address: 121 Park Lane, London W1K 7AG. GPEA Limited. Registered in England & Wales.  Company No: 02819824.  Registered Office Address: 2 St. Stephen's Court, St. Stephen's Road, Bournemouth, Dorset, England, BH2 6LA.  VAT Registration No: 576 8795 61
Book a Property Valuation Update Cookies Preferences