Victoria Road, Freshfield

Offers Over
£4,000,000

6 Bedroom Detached House for sale in Freshfield

5 6 7
  • Magnificent detached residence
  • Prime Freshfield location on 'Millionaires' Row'
  • Five/Six bedrooms
  • Separate entertaining building with spa & gym
  • Swimming pool complex with shower and sauna
  • Seven bathrooms / en suites
  • Four reception rooms
  • Stunning throughout
  • Parking for numerous vehicles and large rear garden with outdoor dining/kitchen
  • EPC Rating: C

Welcome to this truly unique and distinguished residence on the prestigious Victoria Road in Freshfield, Formby. Set on a private plot with impressive gardens and secure gated access, this home exudes opulence.

Inside, you'll find spacious and thoughtfully designed accommodation throughout. Upon entering, you're greeted by an impressive hall featuring a striking chandelier. The stunning open-plan kitchen, dining, and family area comes equipped with a range of integrated appliances and bi-folding doors that lead to an exceptional swimming pool complex, complete with changing facilities and a steam room-your ultimate relaxation oasis right at home.

The ground floor also includes a utility room, four additional reception rooms, and a WC.

On the first floor, the luxurious master suite boasts two dressing rooms, a beautiful en-suite bathroom, and a balcony offering lovely views of the garden. The landing provides access to two more bedrooms, one with its own en-suite, as well as a family bathroom.

The upper floor features three additional bedrooms, two en-suite bathrooms, and two more dressing rooms.

A standout feature of the property is the glass leisure building, which houses a gym, treatment room and bar area, showcasing striking glass elements that add a touch of sophistication.

With ample parking space for multiple cars, this distinguished address combines style with practicality.

Situated in the Freshfield area of Formby, one of the most desirable coastal locations, this property offers easy access to a variety of amenities. It's just a short distance from Freshfield railway station, local schools, Formby Golf Club, and Formby village, which boasts an array of shops, trendy bars, and restaurants. Plus, the beautiful Formby nature reserve and beach are close by.

Viewings are strictly by appointment only, and proof of funding will be requested prior to viewing.

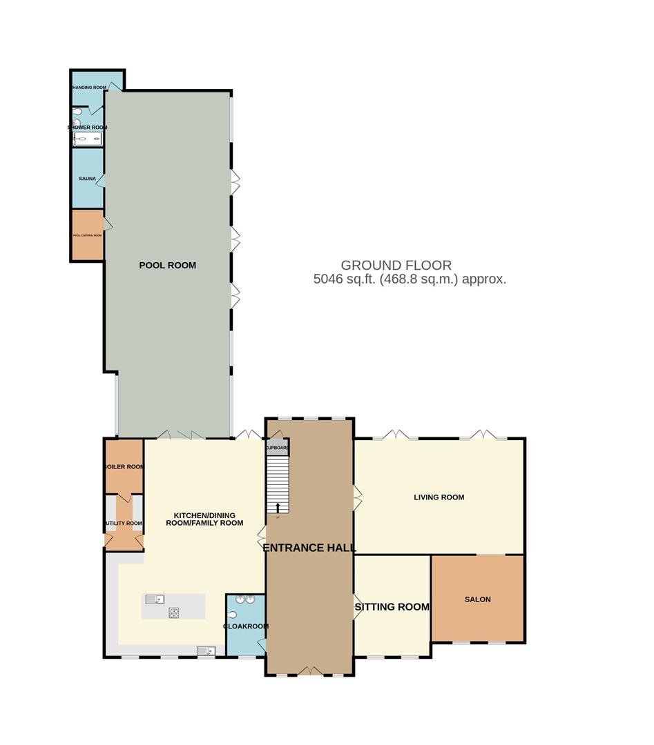
Entrance Hallway - 48' 2'' x 16' 4'' (14.69m x 4.99m) - impressive feature hallway almost 15m long with chandelier's and sweeping staircase to the first and second floors

Cloakroom - 7' 5'' x 10' 0'' (2.26m x 3.05m) - low level w.c, double wash hand basins

Sitting Room - 19' 7'' x 14' 2'' (5.98m x 4.33m) - double doors, wooden floor, display shelving

Living Room - 21' 9'' x 31' 11'' (6.64m x 9.73m) - double doors from hallway, two sets of french doors to rear garden, opening to:

Reception Room / Salon - 16' 6'' x 16' 7'' (5.03m x 5.06m) - currently arranged as a hair dressing and make-up salon, mirrors and display areas, windows overlooking the front gardens

Kitchen - 19' 10'' x 22' 9'' (6.05m x 6.93m) - a large range of fitted units with worktop surfaces including a breakfast bar, two sinks, high specification integrated appliances including Gaggenau electric hob, Gaggenau oven and warming drawer, wine cooler, fridges, freezer drawers, Quooker tap, windows overlooking the front gardens, opening to:

Family/Dining Room - display shelving and cabinets, television and entertainment area with storage spaces for digital equipment, double glazed french doors to rear garden, bi-folding doors to:

Pool Room - 65' 4'' x 23' 9'' (19.91m x 7.24m) - close to 20m long, the superb pool room has a heated swimming pool with electrically operated cover, spacious areas for loungers, windows and three sets of french doors opening to the rear garden, doorway to:

Changing Room - tiled changing area and seating, doorway to:

Shower Room - large walk-in tiled shower, wash hand basin, low level w.c,

Steam Room - doorway from the pool room to an enclosed and tiled sauna room with seating

Plant Room - controls for the swimming pool and the separate boilers to control the temperature of the pool and the air and humidity in the pool room

Utility Room - 10' 9'' x 7' 5'' (3.28m x 2.26m) - Miele washing machine and tumble dryer, cupboards, tiled floor, door to rear, door to:

Boiler Room - 10' 6'' x 7' 5'' (3.19m x 2.25m) - various boilers that control the property central heating, the instant hot water and security systems and monitors

First Floor Landing - gallery landings looking out to the front and rear

Main Bedroom - 24' 6'' x 16' 1'' (7.47m x 4.91m) - a pair of french doors opening to the balcony and overlooking the rear garden

En Suite Shower Room - 15' 5'' x 12' 7'' (4.69m x 3.83m) - high specification suite comprising Gessig shower, Villeroy and Boch bath, his and hers sink units with Hansgrohe taps, low level w.c, tiled walls and floor, two windows overlooking the front

His Dressing Room - 11' 9'' x 16' 8'' (3.59m x 5.08m) - a range of wardrobes, drawers and display areas, windows overlooking the front

Her Dressing Room - 20' 1'' x 13' 5'' (6.13m x 4.10m) - a range of wardrobes, drawers and display areas, dressing table with Hollywood style lighting

Cinema Room - 12' 5'' x 16' 6'' (3.78m x 5.02m) - separate room to the front (potentially a further bedroom) currently used as a cinema room with cinema projector and screen

Bedroom 2 - 17' 3'' x 16' 10'' (5.27m x 5.12m) - fitted wardrobes and drawers, a pair of french doors opening to the balcony overlooking the rear garden

En Suite Bathroom - 6' 2'' x 10' 5'' (1.88m x 3.18m) - luxury en suite bathroom suite comprising Duravit bath with mixer taps and shower attachment, a pair of wash hand basins, low level w.c.

Bedroom 3 - 20' 2'' x 14' 1'' (6.14m x 4.29m) - two windows overlooking the rear garden

Bathroom - 15' 5'' x 13' 1'' (4.70m x 4.00m) - luxury Duravit bathroom suite comprising bath and separate shower, two wash hand basins, low level w.c, tiled walls, tiled floor, two windows looking towards the front garden

2nd Floor Landing - feature landing looking down towards the front entrance/reception area

Front Bedroom 4 - 14' 4'' x 14' 1'' (4.36m x 4.30m) - window overlooking the front, opening to:

Dressing Room - wardrobes and drawers

En Suite Shower Room - 12' 10'' x 6' 8'' (3.91m x 2.03m) - shower cubicle with mixer shower, wash hand basin, low level w.c, tiled walls, tiled floor, heated towel rail

Rear Bedroom 5 - 14' 4'' x 14' 2'' (4.36m x 4.31m) - window overlooking the rear, opening to:

Dressing Room. - wardrobes and drawers

En Suite Shower Room - 12' 10'' x 6' 9'' (3.90m x 2.05m) - shower cubicle with mixer shower, wash hand basin, low level w.c, tiled walls, tiled floor, heated towel rail

Bedroom 6 - 28' 9'' x 14' 3'' (8.77m x 4.35m) - windows overlooking front and rear, feature etched glass double doors, opening to:

Trophy Room - fitted cupboards with sliding glass doors and glass display shelving

Glass Hallway - feature hallway with floor to ceiling windows and feature lighting leading to:

Rear Entertainment Room/Bar - 53' 3'' x 24' 3'' (16.23m x 7.38m) - large versatile entertainment space with dining area, mirrored dance floor, almost 360 panoramic views of the garden via floor to ceiling windows and sliding doors, rear storage and entertainment area, fitted bar and kitchen area, opening to:

Luxury Spa Room - 25' 1'' x 15' 2'' (7.64m x 4.63m) - sunken cold plunge pool with whirlpool jets, separate sunken hot jacuzzi pool with whirlpool jets, seating areas, tv and speaker systems, tiled walls and floor, spacious double shower, door to:

Inner Hallway - door to side, door to:

Ladies Wc - wc and wash hand basin, automatic lighting, storage cupboards

Solarium - 14' 3'' max x 12' 1'' max (4.34m max x 3.68m max) - feature curved wall, window to rear

Gym - above the entertainment room is a gym that offers more panoramic views back across the garden towards the main residence, with two feature gallery areas with view back down to the dance floor and bars, concealed power supplies for various gym equipment, air conditioning, storage room

Front - a large sweeping driveway with parking for a large collection of vehicles is behind the remotely controlled electric security gates with security cameras, there is also a pedestrian gate with security lock, an immaculately presented front lawn with borders and a wide variety of well established plants and trees.

Rear - there is a large manicured lawn, patio areas and paved paths lead from the house to the entertainment complex and gym and to the rear there is also an outside kitchen/dining area with built in bbq, fridge and sink and to the rear of the garden is a boules/petanque court

Property Ref: 7776452_33468679

Share:

Similar Properties

Massams Lane, Formby

5 Bedroom Detached House | £2,600,000

Tucked away on a private plot along an exclusive lane, this custom-built masterpiece-completed in 2020-offers over 6,800...

Mayfield Court, Victoria Road, Formby, Liverpool

5 Bedroom Detached House | Guide Price £1,195,000

Location, Location, Location . Victoria Road - known locally as the "Millionaires' Row" of Merseyside . Private road - q...

Warren Road, Blundellsands, Liverpool

6 Bedroom Detached House | Offers in region of £1,100,000

A Rare Opportunity on One of Blundellsands' Most Prestigious RoadsLocated on the exclusive Warren Road, L23, this archit...

Berkeley Shaw Real Estate (Liverpool)

Old Haymarket, Liverpool, Merseyside, L1 6ER

0151 924 6000

How much is your home worth?

Use our short form to request a valuation of your property.

Request a Valuation

Mortgage Calculator

Amount Borrowed: £
Total Amount Repayable: £
Total Monthly Payment: £
©2025 The Guild of Property Professionals. All rights reserved. Terms and Conditions | Privacy Policy | Cookie Policy | Complaints Policy | Members Login
The Guild of Property Professionals Trading Address: 121 Park Lane, London W1K 7AG. GPEA Limited. Registered in England & Wales.  Company No: 02819824.  Registered Office Address: 2 St. Stephen's Court, St. Stephen's Road, Bournemouth, Dorset, England, BH2 6LA.  VAT Registration No: 576 8795 61
Book a Property Valuation Update Cookies Preferences