Great Lane Frisby on the Wreake

Offers Over
£400,000

Plot for sale in Frisby on the Wreake

  • Rare Opportunity to Acquire this Single Building Plot with Detailed Planning Permission for the Erection of One, Four Bedroomed Detached Residence
  • Plot Extends to 0.616 Acres
  • Lying at the Fringe of this Highly Sought After Village
  • Open Countryside Views
  • Artist Impressions for 'Visual Impact'
  • Planning Permission Melton Borough Council
  • 22/01155/OUT - Original Outline Planning Consent (approved via appeal 19th April 2024. Reference: APP/Y2430/W/23/3314822)
  • 25/00309/REM - Approval of Reserved Matters
  • 25/00308/DIS - Discharge of Conditions

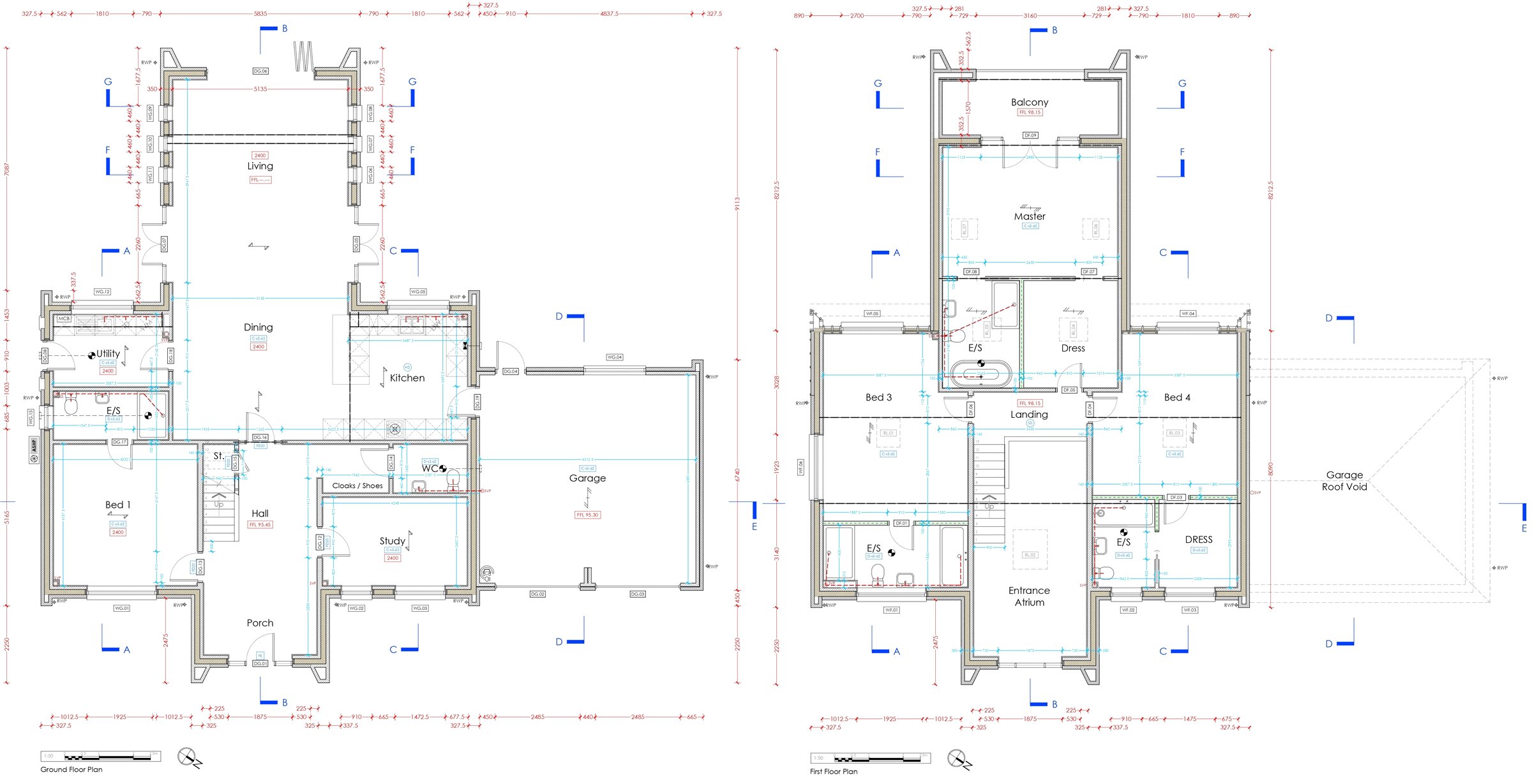
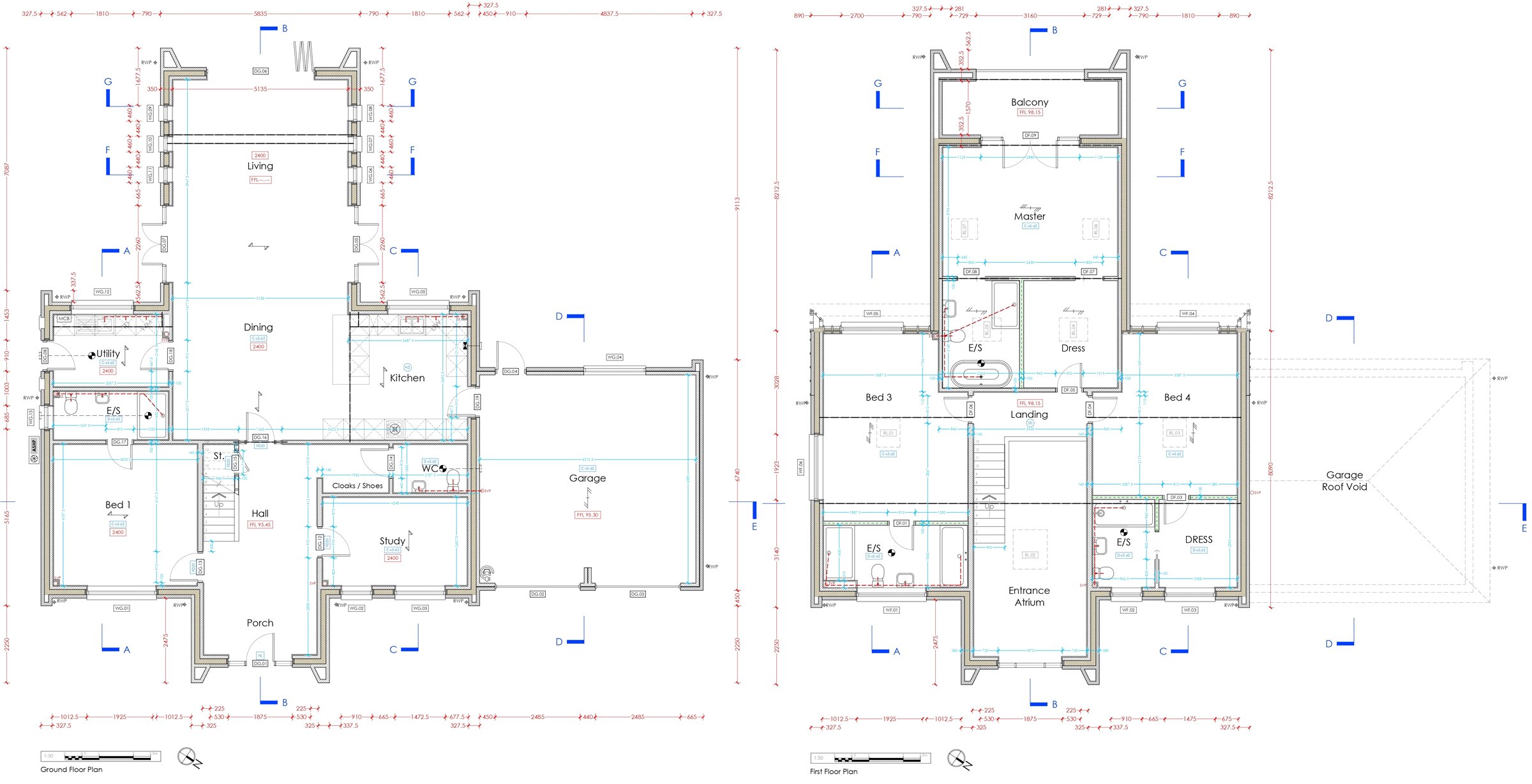
A rare and unique opportunity to acquire this individual, single building plot. Planning permission has been granted, by approval of reserved matters (25/00309/REM) and discharge of conditions (25/00308/DIS) for a four bedroom detached residence extending to 3310 sqft (307.6 sqm). The accommodation of the new property will comprise on the ground floor hallway, kitchen/dining/lounge, bedroom one with en-suite, utility room, study/snug, cloakroom and separate WC. On the first floor is bedroom two with dressing room and en-suite, bedroom three with en-suite and bedroom four with dressing room and en-suite. Outside there is a garage.
The plot itself consists of a parcel of land extending to 0.616 acres, bounded on all sides by mature hedge. The plot slopes gently to the rear and affords an elevated aspect over the village and the wider Soar Valley. Situated on the edge of the village, the plot only has one residential property on the north boundary and as such offers a private individual opportunity to construct a substantial family home. Enclosed are artist impressions of how the property will look, prepared on behalf of the vendor. All general enquires to Bentons or Nick Bonfield on 07794157718 nick@bentons.co.uk.

A rare and unique opportunity to acquire this individual, single building plot. Planning permission has been granted, by approval of reserved matters (25/00309/REM) and discharge of conditions (25/00308/DIS) for a four bedroom detached residence extending to 3310 sqft (307.6 sqm). The accommodation of the new property will comprise on the ground floor hallway, kitchen/dining/lounge, bedroom one with en-suite, utility room, study/snug, cloakroom and separate WC. On the first floor is bedroom two with dressing room and en-suite, bedroom three with en-suite and bedroom four with dressing room and en-suite. Outside there is a garage. The plot itself consists of a parcel of land extending to 0.616 acres, bounded on all sides by mature hedge. The plot slopes gently to the rear and affords an elevated aspect over the village and the wider Soar Valley. Situated on the edge of the village, the plot only has one residential property on the north boundary and as such offers a private individual opportunity to construct a substantial family home. Enclosed are artist impressions of how the property will look, prepared on behalf of the vendor. All general enquires to Bentons or Nick Bonfield on 07794157718 nick@bentons.co.uk.

Important Information

  • This is a Freehold property.

Property Ref: BNT_BNT260047

Share:

Similar Properties

Melton Road Burton Lazars

4 Bedroom Detached House | Guide Price £400,000

The property offers an individually styled, four bedroomed detached character cottage with gardens and grounds extending...

Main Street Stathern

4 Bedroom Detached House | £399,950

This charming four bedroom character property is filled with original features and offers a warm, welcoming atmosphere t...

New Street Scalford

2 Bedroom Detached Bungalow | Guide Price £385,000

Located in the charming village of Scalford, this well-presented two-bedroom detached bungalow sits on a generous and pr...

Casterton Road Melton Mowbray

4 Bedroom Detached House | Guide Price £420,000

A beautifully presented, four bedroomed detached residence having had many additional extras fitted. Having gas central...

Pasture Drive Birstall

4 Bedroom Detached House | Guide Price £420,000

Beautifully positioned at the end of a private driveway on the sought after Hallam Fields estate in Birstall, this attra...

Queniborough Road Queniborough

3 Bedroom Detached House | Offers in excess of £425,000

An imaginative superbly presented original 1950s chapel conversion located at the centre of the popular village of Queni...

Bentons (Melton Mowbray)

47 Nottingham Street, Melton Mowbray, Leicestershire, LE13 1NN

01664 563892

How much is your home worth?

Use our short form to request a valuation of your property.

Request a Valuation

Mortgage Calculator

Amount Borrowed: £
Total Amount Repayable: £
Total Monthly Payment: £
©2026 The Guild of Property Professionals. All rights reserved. Terms and Conditions | Privacy Policy | Cookie Policy | Complaints Policy | Members Login
The Guild of Property Professionals Trading Address: 121 Park Lane, London W1K 7AG. GPEA Limited. Registered in England & Wales.  Company No: 02819824.  Registered Office Address: 2 St. Stephen's Court, St. Stephen's Road, Bournemouth, Dorset, England, BH2 6LA.  VAT Registration No: 576 8795 61
Book a Property Valuation Update Cookies Preferences