Building Plot Adjacent To Glentworth Road, Kexby

£165,000

Land for sale in Gainsborough

We are pleased to offer for sale this residential building plot which has outlined consent for development of one residential dwelling, with all matters reserved. The building plot is situated in a pleasant village position within the village of Kexby, which is located approximately 5 miles South-East of Gainsborough and 12 miles North-West of the Cathedral City of Lincoln. Outlined planning consent was granted on 5th January 2024 by West Lindsey District Council under application no.147566.

SERVICES
There are no mains services connected. 

LOCATION Kexby is located approximately 6 miles South-East of Gainsborough and approximately 12 miles North-West of Lincoln.  

OUTLINE PLANNING PERMISSION Outline planning permission to erect one dwelling with all matters reserved was granted on 5th January 2024. 

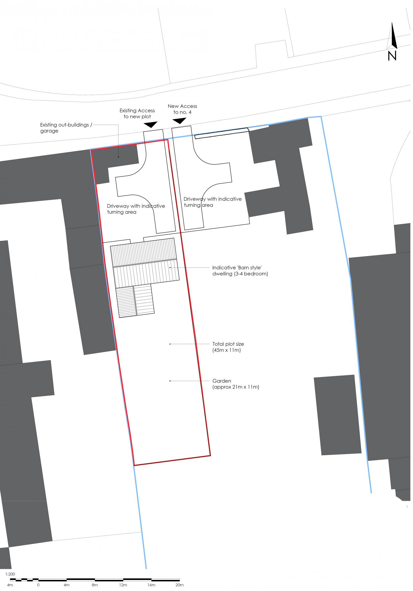
PLOT DESCRIPTION Access to the plot is through the existing access to 4 Glentworth Road. A new access will be granted to this property. The plot measures 45m deep x 11m width and is rectangular in shape.

Adjacent to Glentworth Road is a single storey brick building (7.04m x 4.10m) providing a garage and workshop space with an integral store which is included within the plot.  

AGENTS NOTE The photos used in these sales particulars provide an indication of the plot but do not indicate the exact boundaries and these should be confirmed with the vendor.

The purchaser will be responsible for the erection of a boundary structure to be agreed with the vendor.  

Property Ref: 102125028061

Share:

Similar Properties

Manton Road, Lincoln

3 Bedroom Apartment | £165,000

A well presented Ground Floor Flat situated just off Longdales Road, to the North of the historic Cathedral and Universi...

Newark Road, Lincoln

3 Bedroom Terraced House | £165,000

Investment Opportunity! An excellent investment opportunity located on Newark Road, just south of Lincoln city centre, w...

Nocton Drive, Lincoln

3 Bedroom Semi-Detached House | £165,000

Situated in this popular residential Uphill position on the outskirts of the Cathedral City of Lincoln, a well-presented...

Willow Lane, Torksey

2 Bedroom Mobile Home | £167,500

Situated in a fantastic tucked away position within the over 50's Award Winning Retirement Development of The Elms, a 2...

Dunkirk Road, Lincoln

2 Bedroom End of Terrace House | Offers Over £169,000

A modern Two Bedroom End Terraced House positioned in this popular Uphill location on Dunkirk Road, just off Burton Road...

Caroline Road, Metheringham

2 Bedroom Semi-Detached House | £169,950

This Two Bedroom Semi Detached Property is pleasantly positioned within the popular village of Metheringham. Offered for...

Mundys (Lincoln)

29 Silver Street, Lincoln, Lincolnshire, LN2 1AS

01522 510044

How much is your home worth?

Use our short form to request a valuation of your property.

Request a Valuation

Mortgage Calculator

Amount Borrowed: £
Total Amount Repayable: £
Total Monthly Payment: £
©2026 The Guild of Property Professionals. All rights reserved. Terms and Conditions | Privacy Policy | Cookie Policy | Complaints Policy | Members Login
The Guild of Property Professionals Trading Address: 121 Park Lane, London W1K 7AG. GPEA Limited. Registered in England & Wales.  Company No: 02819824.  Registered Office Address: 2 St. Stephen's Court, St. Stephen's Road, Bournemouth, Dorset, England, BH2 6LA.  VAT Registration No: 576 8795 61
Book a Property Valuation Update Cookies Preferences