Hambleton Green, Harlow Green, Gateshead, NE9

Offers in excess of
£135,000
Under Offer
This property listing is now Under Offer

3 Bedroom Terraced House for sale in Gateshead

1 3 1
  • Three Bedroom Mid Terraced
  • Beautifully Presented
  • Superb Kitchen
  • Modern Bathroom
  • Enclosed Rear Garden
  • Popular Location

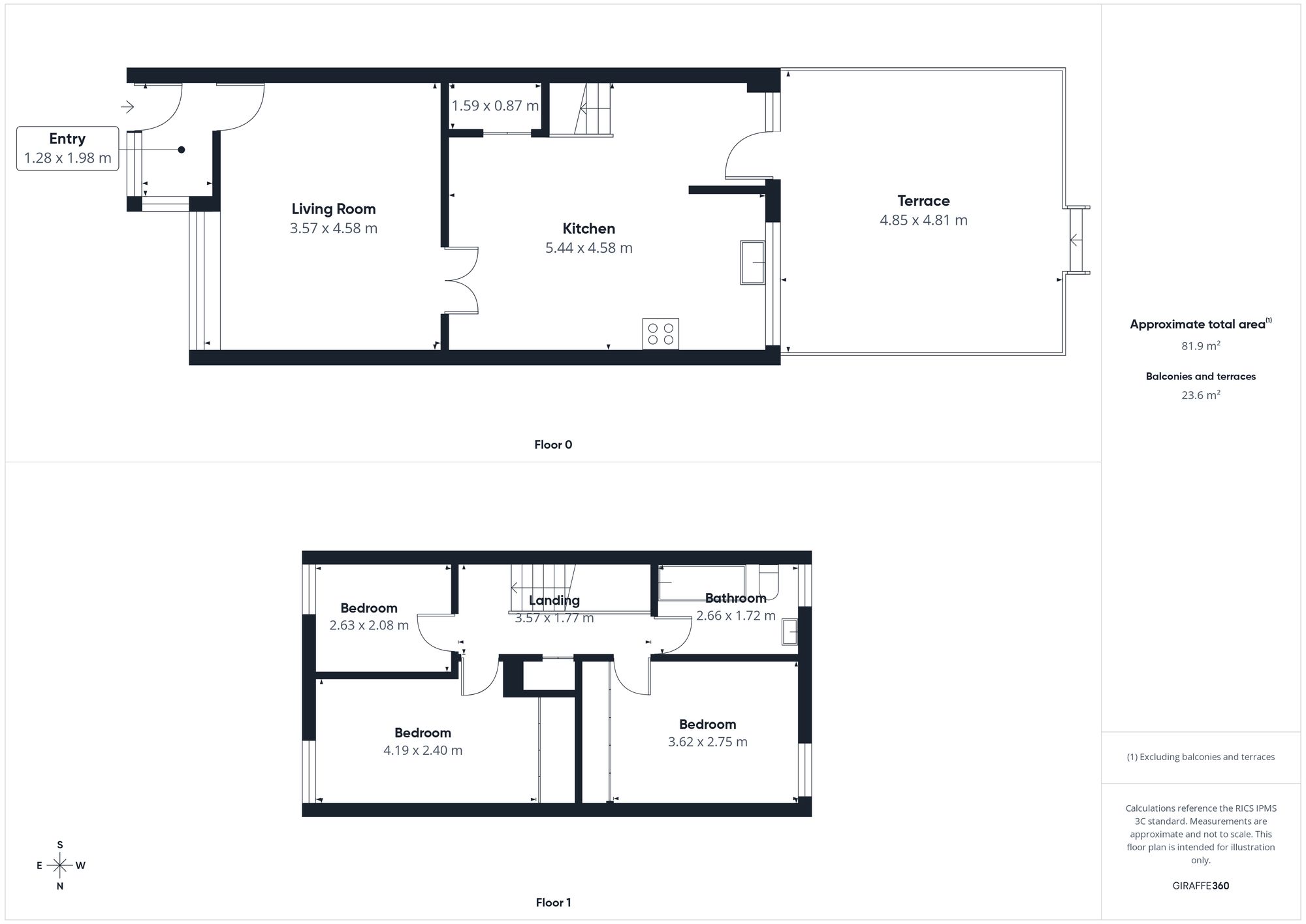
Appealing to a wide range of buyers, including first-time purchasers, professionals, and growing families, this impressive mid-terraced home is superbly positioned on a pleasant pedestrianised street within the ever-popular Harlow Green estate. Beautifully presented, the property offers generous and thoughtfully arranged accommodation that is ready to move straight into, making it an ideal choice for those seeking both comfort and convenience.

Upon entering, you are welcomed into a spacious and stylish lounge with an attractive bow window to the front elevation. This inviting living space provides the perfect setting for relaxing evenings or entertaining guests. To the rear of the property lies a stunning, fitted kitchen, featuring a wide range of modern units and built in appliances including an electric oven, microwave, and hob. There is ample space to accommodate an American-style fridge/freezer and washing machine, while the impressive central island with breakfast bar creates a sociable hub for casual dining and entertaining. The staircase to the first floor is neatly incorporated into the kitchen, enhancing the modern, open-plan feel of this superb space.

The first floor hosts three well-proportioned bedrooms, two of which benefit from built-in wardrobes, offering excellent storage solutions. A modern family bathroom, fitted with a crisp white suite, completes the internal accommodation.

Externally, the property is equally impressive. To the front, there is an open-aspect lawned garden. The rear garden is a true highlight, featuring a fabulous raised decked sun terrace, perfect for outdoor dining or relaxing, leading down to a paved patio area that provides additional seating and entertaining space. From the rear of the house, residents can enjoy far-reaching panoramic views across the valley.

Ideally located for access to local shops, schools, and the wide range of amenities available in Low Fell, the property is also well placed for transport links and commuter routes.

Offering style, space, and an enviable outlook, this exceptional home truly must be seen to be fully appreciated.

Important Information

  • This is a Freehold property.
  • This Council Tax band for this property is: A
  • EPC Rating is C

Property Ref: d0a2135d-4555-4bc8-8cfc-f27e8ad32724

Share:

Similar Properties

Mardale Gardens, Gateshead, NE9

2 Bedroom Semi-Detached House | Offers Over £135,000

Dunkeld Close, Wardley, Gateshead, NE10

2 Bedroom Terraced House | Offers Over £135,000

Industrial Street, Pelton, DH2

3 Bedroom End of Terrace House | Offers Over £135,000

Beverley Road, Low Fell, Gateshead, NE9

2 Bedroom Flat | £139,995

Worsdell Drive, Gateshead, NE8

2 Bedroom Apartment | Offers Over £140,000

Worley Avenue, Gateshead, NE9

2 Bedroom Ground Floor Flat | Offers Over £140,000

Sarah Mains Residential Sales & Lettings (Low Fell)

Low Fell, Tyne & Wear, NE9 5EU

0191 487 8855

How much is your home worth?

Use our short form to request a valuation of your property.

Request a Valuation

Mortgage Calculator

Amount Borrowed: £
Total Amount Repayable: £
Total Monthly Payment: £
©2026 The Guild of Property Professionals. All rights reserved. Terms and Conditions | Privacy Policy | Cookie Policy | Complaints Policy | Members Login
The Guild of Property Professionals Trading Address: 121 Park Lane, London W1K 7AG. GPEA Limited. Registered in England & Wales.  Company No: 02819824.  Registered Office Address: 2 St. Stephen's Court, St. Stephen's Road, Bournemouth, Dorset, England, BH2 6LA.  VAT Registration No: 576 8795 61
Book a Property Valuation Update Cookies Preferences