Chaffinch Chase, Gillingham

Asking Price
£260,000
SSTC
This property listing is now SSTC

3 Bedroom House for sale in Gillingham

2 3 2
  • Spacious Semi-Detached House
  • Three Bedrooms and Two Reception Rooms
  • En-Suite Shower to Main Bedroom
  • Driveway Parking & Garage
  • Conservatory into Rear Garden
  • Close to Local Schools & Riverside Walks
  • Popular Residential Area
  • EPC: C


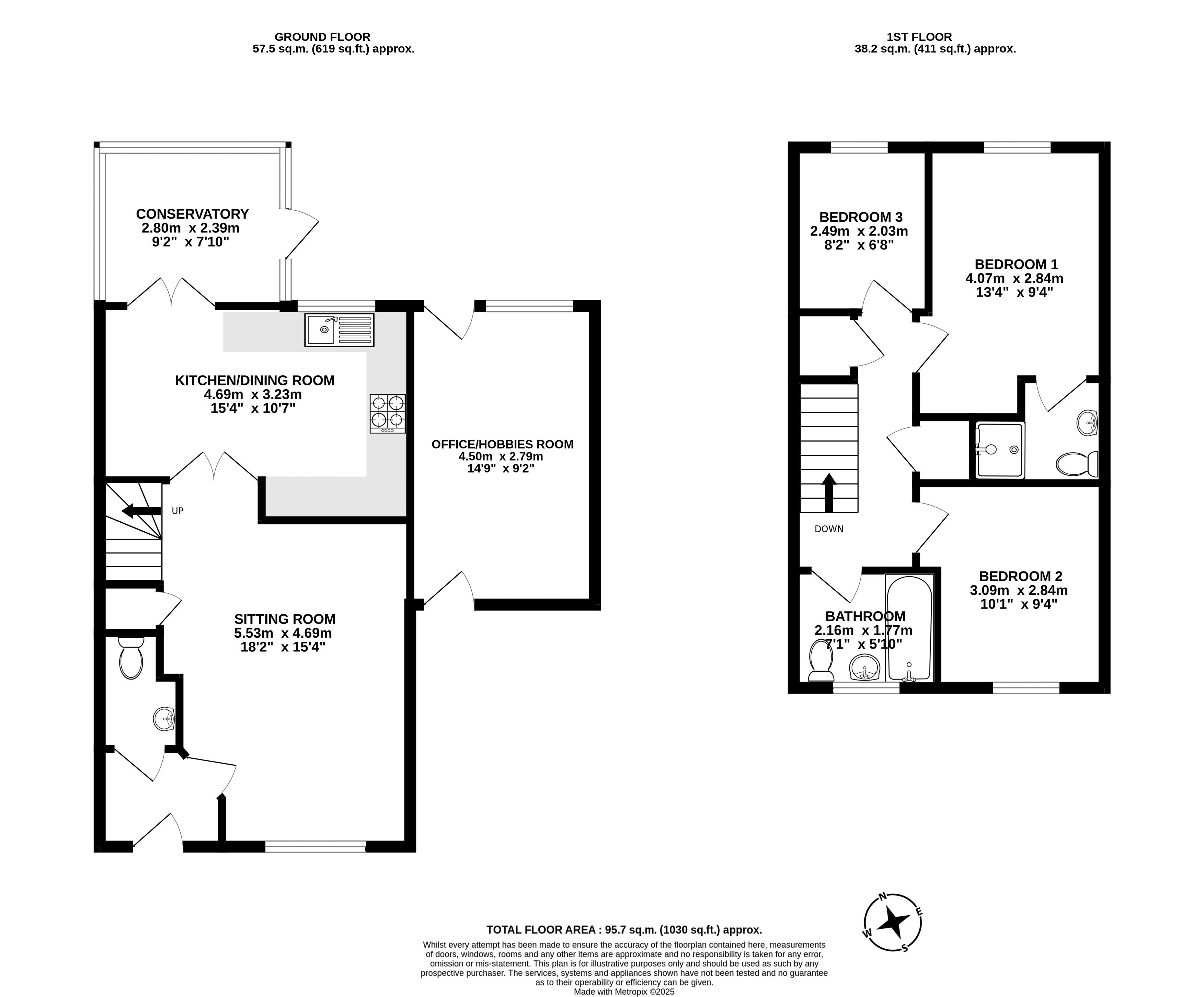
An extended three-bedroom home that features two reception rooms, ensuite to the principal bedroom, a driveway and garage, all set within a popular residential area in Gillingham close to riverside walks and local schools.

The Property

An extended three-bedroom home that features two reception rooms, ensuite to the principal bedroom, a driveway and garage, all set within a popular residential area in Gillingham close to riverside walks and local schools.

The property is entered into a hall with a cloakroom, and a door leading into the spacious sitting room. There are stairs leading to the first floor, and double doors opening into the large kitchen/dining room. The kitchen is well equipped with fitted units and space for appliances with further doors opening into the rear conservatory. There is a further reception room, accessed externally, on the side of the property which offers potential to be a home office/hobbies room.

Upstairs, there are three good sized bedrooms. The main bedroom benefits from an en-suite shower room, with a further double bedroom and a single bedroom. The family bathroom is fitted with a modern three-piece suite.

Outside

To the front of the property is a parking space for one vehicle, with a shared access to the side of the house leading to the garage which is in a block, with another parking space in front. The rear garden is mostly gravelled providing a low maintenance space, with a patio large enough for a table and chairs. There is also an access gate to the rear leading to the garage.

Location

The North Dorset town of Gillingham offers the amenities of a major town, while retaining all the charm of rural Dorset. The town has a wide range of facilities, including Waitrose & Asda superstores, a doctor’s surgery, dental practice, pharmacies, local shops, boutiques and a well-connected railway station.

Gillingham School is a highly sought after mixed comprehensive and there are several independent schools nearby including Port Regis, Sandroyd and Clayesmore. The communication links are excellent: the A303 runs north of the town and a mainline railway station provides services to London Waterloo (2 hours) and the south west.

Tenure

Freehold

Services

Mains services are connected.

Council Tax

Dorset Council Tax Band C.

Viewings

Strictly by appointment only via Boatwrights Estate Agents.
01747 213106
www.boatwrights.co.uk

Important Information

  • This is a Freehold property.

Property Ref: EAXML16942_12748214

Share:

Similar Properties

Savoy Court, Shaftesbury

2 Bedroom Flat | Asking Price £260,000

This charming spacious two-bedroom flat in the heart of Shaftesbury offering a light and airy interior with distant coun...

Snowdrop Wynde, Shaftesbury

3 Bedroom House | Asking Price £260,000

A well-appointed three-bedroom home with parking, located within a quiet position overlooking paddocks.

Salisbury Street, Shaftesbury

2 Bedroom House | Asking Price £259,500

Enjoying spectacular, far-reaching views from the garden, this two-bedroom cottage also presents an exciting opportunit...

Maple Road, Shaftesbury

3 Bedroom House | Asking Price £265,000

An extremely well-presented, three-bedroom home that includes several additional upgrades from new. The property sits wi...

Castle Hill Close, Enmore Green, Shaftesbury

3 Bedroom House | Guide Price £275,000

Situated within the popular Enmore Green area of Shaftesbury, this three-bedroom semi-detached home is presented to the...

Old Mill View, Ludwell

3 Bedroom House | Asking Price £299,950

A modern and recently updated three bedroom detached house situated in the sought after village of Ludwell, offered for...

Boatwrights Estate Agents (Shaftesbury)

Shaftesbury, Dorset, SP7 8JG

01747 213106

How much is your home worth?

Use our short form to request a valuation of your property.

Request a Valuation

Mortgage Calculator

Amount Borrowed: £
Total Amount Repayable: £
Total Monthly Payment: £
©2025 The Guild of Property Professionals. All rights reserved. Terms and Conditions | Privacy Policy | Cookie Policy | Complaints Policy | Members Login
The Guild of Property Professionals Trading Address: 121 Park Lane, London W1K 7AG. GPEA Limited. Registered in England & Wales.  Company No: 02819824.  Registered Office Address: 2 St. Stephen's Court, St. Stephen's Road, Bournemouth, Dorset, England, BH2 6LA.  VAT Registration No: 576 8795 61
Book a Property Valuation Update Cookies Preferences