The Boulevard, Cowglen, G43

Fixed Price
£149,995
SSTC
This property listing is now SSTC

2 Bedroom Flat for sale in Glasgow

1 2 1
  • Open plan kitchen/living room
  • Close to M77 motorway links
  • Minutes from Pollock Country Park

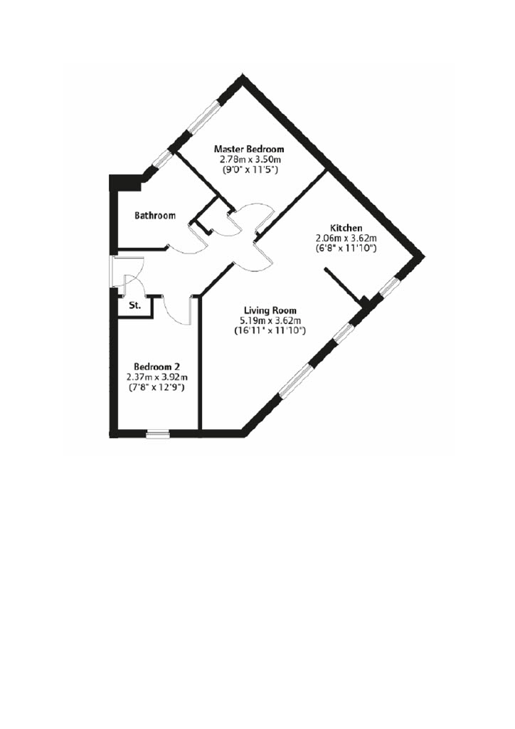
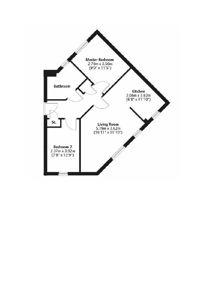
Property Matters Online are delighted to present to the market "The Fleming". This two-bedroom, ground-floor apartment is suited to first-time buyers and young professionals. The easy layout includes an open-plan living room and kitchen, two bedrooms, a separate bathroom and fitted storage in the hall.

You'll enjoy living within easy reach of such a vibrant and exciting city centre – you'll certainly never be short of things to do. The Barrhead Road, the B762, runs close by the development before connecting with the M77 straight into the city. There's a train station at Kennishead and regular bus services too if you prefer not to drive. You don't need to head to the city centre for shopping as there are excellent options close to The Boulevard, including the Silverburn Retail Centre.

Just across the Barrhead Road you can step into the Pollok Country Park. This is a fantastic local green space and with a play park, country house, gardens and parkland, there's something for all the family to enjoy.

Room Sizes

LOUNGE 5.19m x 3.62m

KITCHEN 3.62m x 2.06m

BEDROOM 3.50m x 2.78m

BEROOM 3.92m x 2.37m

Important Information

  • This is a Freehold property.

Property Ref: prmalt_1486769908

Share:

Similar Properties

Woodmill, Kilwinning, KA13

3 Bedroom Semi-Detached House | Offers Over £149,995

Property Matters Online are delighted to present to the market this rarely available three-bedroom SEMI-DETACHED VILLA i...

Meiklelaught Place, Saltcoats, KA21

3 Bedroom End of Terrace House | Offers Over £145,000

Property Matters Online is delighted to present to the market this modernthree-bedroom end of terrace villa, ideally pos...

Purclewan Crescent, Dalrymple, KA6

3 Bedroom Semi-Detached House | Offers Over £144,995

*** CLOSING DATE - TUESDAY 10th OCTOBER AT 12 NOON *** Property Matters Online are delighted to present to the market th...

Hillfoot Road, Ayr, KA7

3 Bedroom Semi-Detached House | Offers Over £150,000

119 Hillfoot Road is a superb example of a spacious semi-detached familyhome, set within a popular residential area of A...

Glen Moriston, East Kilbride, G74

4 Bedroom Terraced House | Fixed Price £150,000

Property Matters Online are delighted to present to the market this spacious 3/4-bedroom TERRACED VILLA situated within...

Davie Sneddon Way, Kilmarnock, KA1 1AD

2 Bedroom Flat | Offers Over £154,995

Property Matters Online are pleased to present to the market this rarely available and unique two-bedroom CONTEMPORARY D...

Property Matters Online (Kilmarnock)

Kilmarnock, Ayrshire, KA1 1BG

01563 558877

How much is your home worth?

Use our short form to request a valuation of your property.

Request a Valuation

Mortgage Calculator

Amount Borrowed: £
Total Amount Repayable: £
Total Monthly Payment: £
©2026 The Guild of Property Professionals. All rights reserved. Terms and Conditions | Privacy Policy | Cookie Policy | Complaints Policy | Members Login
The Guild of Property Professionals Trading Address: 121 Park Lane, London W1K 7AG. GPEA Limited. Registered in England & Wales.  Company No: 02819824.  Registered Office Address: 2 St. Stephen's Court, St. Stephen's Road, Bournemouth, Dorset, England, BH2 6LA.  VAT Registration No: 576 8795 61
Book a Property Valuation Update Cookies Preferences