Norbins Road, Glastonbury, Somerset

£325,000

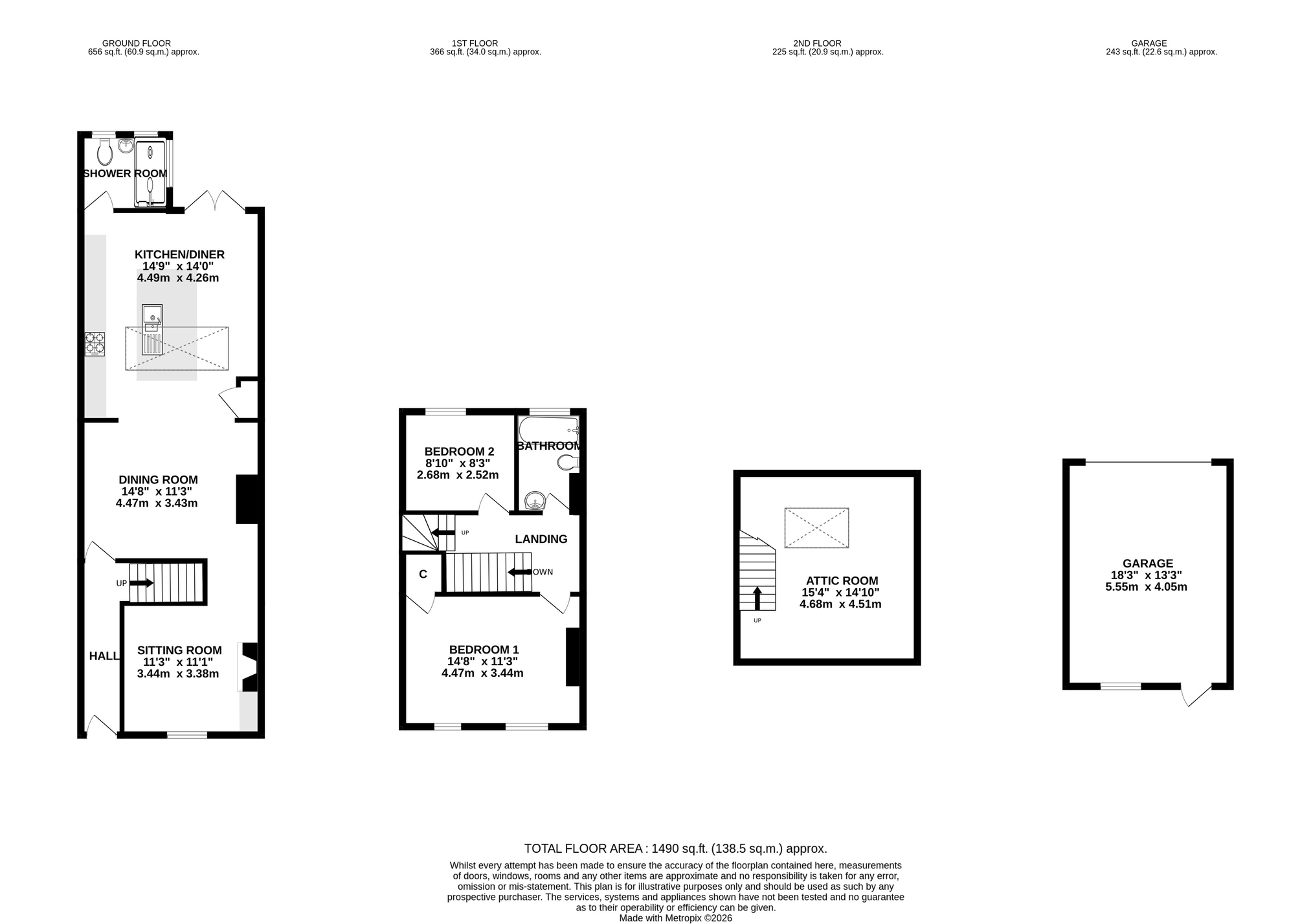
2 Bedroom Terraced House for sale in Glastonbury

2 2 2
  • Beautifully presented period townhouse within walking distance of Glastonbury’s schools and amenities.
  • Stylish single-storey rear extension creating a spacious open-plan kitchen, dining and family area.
  • Kitchen includes a large peninsula breakfast bar, modern units and a range cooker. Utility cupboard housing washing machine, dishwasher and gas-fired central heating boiler.
  • Downstairs shower room complete with a large walk in shower enclosure, WC and wash hand basin
  • Cosy sitting room with exposed brick fireplace and wood-burning stove set on a slate plinth.
  • Two first-floor bedrooms, family bathroom with deep-fill bath and converted attic room.
  • Enclosed rear garden with patio, lawn, deck area and large single garage with rear access.

This beautifully presented period townhouse, is conveniently situated within walking distance of local schools and amenities. The property features two double bedrooms, two bathrooms and a converted attic room, together with a superb open-plan kitchen, dining and family space created by a recent single-storey extension. Blending contemporary design with period charm, this is a stylish and versatile home ideal for modern family living.

Accommodation
From the entrance hall, stairs rise to the first-floor landing and a door at the end of the hall opens into the striking open-plan kitchen, dining and family room. The kitchen area features a large peninsula unit incorporating a breakfast bar, a range of modern fitted units, and a gas-fired range cooker. A utility cupboard houses the washing machine, dishwasher and gas-fired central heating boiler. Overhead, a glass roof lantern fills the space with natural light, while wide fully glazed doors open directly onto the rear garden. In the left corner, a door opens into the downstairs shower room, which includes a walk in shower, wash hand basin and a WC. From the dining area, with its exposed brick fireplace, an open archway leads through to the sitting room. Here, the sitting room has a lovely welcoming feel, featuring an exposed brick fireplace with a wood-burning stove mounted on a slate plinth.

On the first floor, matching doors open to two bedrooms and the family bathroom, with a further staircase rising to the attic room. Bedroom one is a bright, spacious double with twin front-facing windows and a useful under-stair cupboard. Bedroom two overlooks the rear garden, while the family bathroom includes a white suite with a deep-fill bath, freestanding taps with hand shower, WC and vanity unit with inset wash hand basin. The converted attic room, although lacking building regulation certification, is currently used as a third double bedroom and includes a Velux window to the rear.

Outside
Outside, the property is approached by a path from Norbins Road leading to the front entrance. At the rear, a large patio extends from the kitchen and family room, opening onto a lawned garden enclosed by timber fencing. A path continues to a raised deck area at the foot and to a pedestrian door giving access into the single garage, which has a metal up-and-over door to the rear lane beyond.

Location
The property is conveniently located within a short walk of the High Street with its good range of shops, banks, supermarkets, restaurants, cafes, health centres and public houses. The historic town of Glastonbury is famous for its Tor and Abbey Ruins and lies some 6 miles south of the Cathedral City of Wells. Street is 2 miles and offers a more comprehensive range of facilities including Strode Theatre, Strode College, both indoor and open air swimming pools and Clarks Village with its shopping outlets. Access to the M5 motorway can be gained at Junction 23 (Dunball) whilst Bristol, Bath, Taunton and Yeovil are all within an hours commuting distance.

Directions
On entering Glastonbury from Street/Bridgwater (A39) at the Wirral Park roundabout (B & Q on the left) take the second exit onto the bypass. Proceed straight ahead at the first roundabout and at the next roundabout take the third exit into Northload Street. Turn left into Manor House Road and then right into Norbins Road where the property will shortly be found on the right.

Material Information

Identity Verification
To ensure full compliance with current legal requirements, all buyers are required to verify their identity and risk status in line with anti-money laundering (AML) regulations before we can formally proceed with the sale. This process includes a series of checks covering identity verification, politically exposed person (PEP) screening, and AML risk assessment for each individual named as a purchaser. In addition, for best practice, we are required to obtain proof of funds and where necessary, to carry out checks on the source of funds being used for the purchase. These checks are mandatory and must be completed regardless of whether the purchase is mortgage-funded, cash, or part of a related transaction. A disbursement of £49 per individual (or £75 per director for limited company purchases) is payable to cover all aspects of this compliance process. This fee represents the full cost of conducting the required checks and verifications. You will receive a secure payment link and full instructions directly from our compliance partner, Guild365, who carry out these checks on our behalf.

Important Information

  • This is a Freehold property.
  • This Council Tax band for this property is: B

Property Ref: FMV431024

Share:

Similar Properties

The Levels, Meare, Glastonbury, Somerset

3 Bedroom Semi-Detached House | £325,000

Immaculately presented semi-detached home situated in the quiet, desirable village of Meare. The property offers a styli...

Fairfield Gardens, Glastonbury

3 Bedroom Terraced House | £325,000

This is a charming three-bedroom period home, quietly positioned in a desirable cul-de-sac just a short level walk from...

Northload Bridge Cottages, Glastonbury

3 Bedroom Terraced House | £325,000

Modernised by the current vendors, this charming home on the fringes of Glastonbury enjoys open views over Herbies Field...

Chilkwell Street, Glastonbury

4 Bedroom Terraced House | £345,000

Currently operating as a successful holiday let, this beautifully renovated mid-terrace home is ideally positioned withi...

Benedict Street, Glastonbury, Somerset

4 Bedroom Terraced House | £350,000

A deceptively spacious four-bedroom home just moments from Glastonbury High Street. Four reception rooms and four double...

Castle Street, Keinton Mandeville

4 Bedroom End of Terrace House | £350,000

No onward chain. A beautifully presented 4-bedroom end of terrace home, built in the 1800s from attractive Blue Lias sto...

Holland & Odam (Glastonbury)

Glastonbury, Somerset, BA6 9DX

01458 833123

How much is your home worth?

Use our short form to request a valuation of your property.

Request a Valuation

Mortgage Calculator

Amount Borrowed: £
Total Amount Repayable: £
Total Monthly Payment: £
©2026 The Guild of Property Professionals. All rights reserved. Terms and Conditions | Privacy Policy | Cookie Policy | Complaints Policy | Members Login
The Guild of Property Professionals Trading Address: 121 Park Lane, London W1K 7AG. GPEA Limited. Registered in England & Wales.  Company No: 02819824.  Registered Office Address: 2 St. Stephen's Court, St. Stephen's Road, Bournemouth, Dorset, England, BH2 6LA.  VAT Registration No: 576 8795 61
Book a Property Valuation Update Cookies Preferences