Godolphin Cross, Modernised detached bungalow

Guide Price
£385,000

3 Bedroom Detached Bungalow for sale in Godolphin Cross

1 3 1
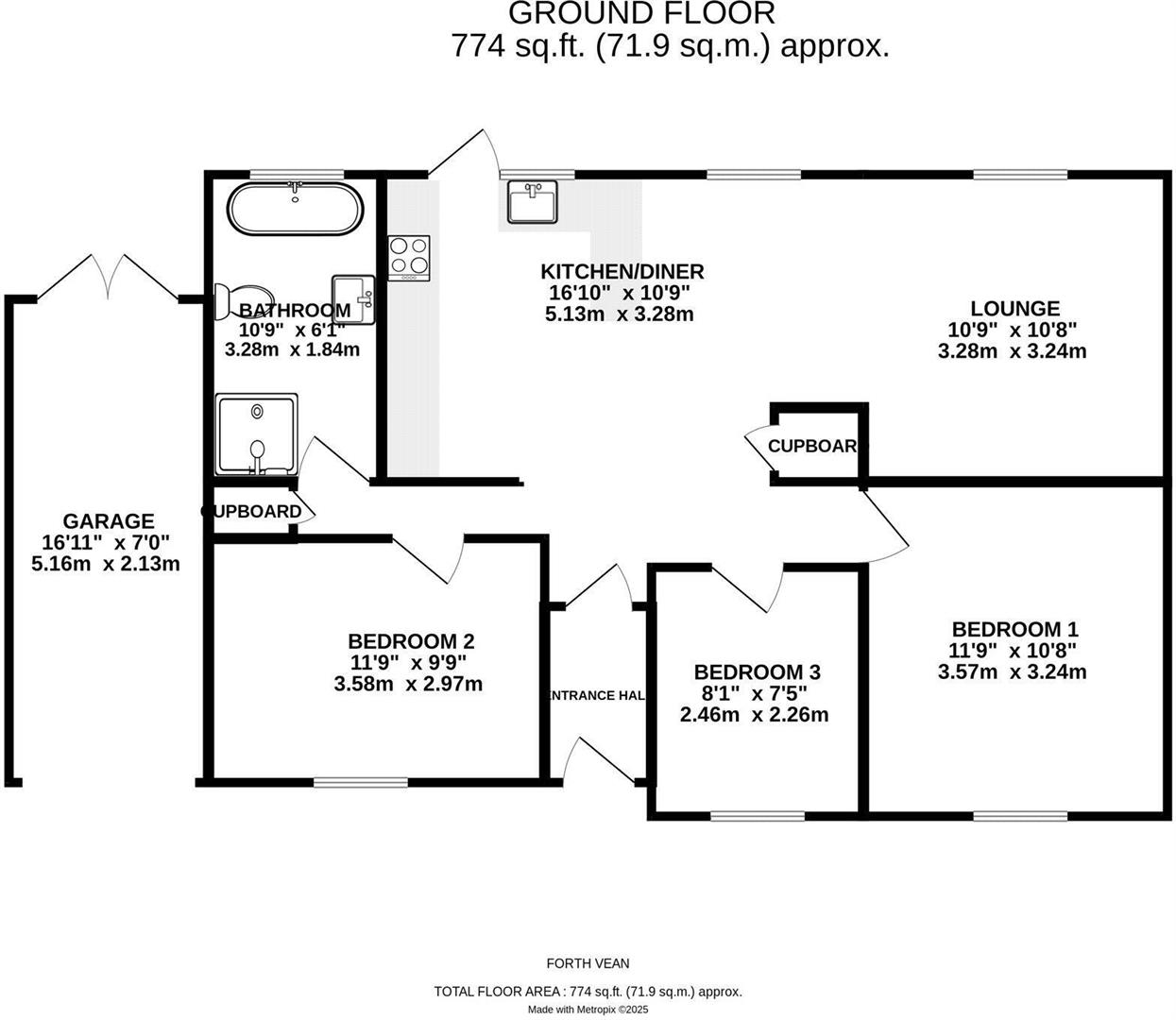
  • MODERNISED THREE-BEDROOM DETACHED BUNGALOW
  • OPEN-PLAN KITCHEN, DINING & LIVING AREA
  • THREE GENEROUSLY SIZED BEDROOMS
  • OFF-ROAD PARKING
  • GARAGE
  • VILLAGE LOCATION
  • EPC- 48- E
  • COUNCIL TAX BAND- D
  • FREEHOLD TENURE

Situated in the highly sought after village of Godolphin, this beautifully modernised three bedroom detached bungalow offers stylish and practical living in a peaceful setting.

Step into the light and airy heart of the home an impressive open plan kitchen, dining, and living area that creates a fantastic social environment. The contemporary kitchen is well appointed with ample unit and worktop space, ideal for both everyday living and entertaining. The living area is enhanced by a charming log burner, adding a cosy and welcoming touch. All three bedrooms are generously proportioned, offering comfort and flexibility, while the spacious bathroom features both a separate bath and shower for added convenience.

Outside, the garden has been cleverly landscaped to make the most of the space, providing a blend of patio and lawn areas ideal for relaxing or entertaining. Additional benefits include a garage and off-road parking, desirable features that add to the property's overall appeal.

Guide Price £385,000 -

Location - The property is situated within the village of Godolphin Cross which is surrounded by farmland, woods and a National Trust Estate home to Godolphin House is the picturesque semi rural village of Godolphin Cross. Offering easy access to both the North and South coasts as well as the popular fishing village of Porthleven with its fantastic array of restaurants. The larger village of Breage is just 2 miles away providing a Public House and Post Office with Shop. The location of this super property is sure to impress those seeking a taste of the countryside with many gorgeous walks on the doorstep including Godolphin Hill and Tregonning Hill both with stunning panoramic views over South West Cornwall. The towns of Helston, Hayle and Penzance are within a 15 to 20 minute drive of the property. The stunning beach at Praa sands is approximately 10 minutes away by car.

Accommodation - Entrance Hallway
Open Plan Kitchen/Diner/Lounge
Bedroom One
Bedroom Two
Bedroom Three
Bathroom

Garage - with an up and over door providing a good amount of storage.

Parking - Providing off road parking for two vehicles.

Outside - The enclosed rear garden has been thoughtfully landscaped to maximise both space and usability. It features two attractive patio areas, perfect for outdoor seating, dining, or entertaining, along with a neat lawn that adds a touch of greenery. To the front of the property, there is a low-maintenance gravelled area, offering a clean and tidy first impression with minimal upkeep required.

Services - Mains Electricity and Water & Septic Tank Drainage shared with one other property.

Solar Panels - Our client has informed us that the Solar Panels are leased.

Council Tax Band- D -

What3words - ///sprouting.motion.jigging

Anti Money Laundering Regulations - Purchasers - It is a legal requirement that we receive verified ID from all buyers before a sale can be instructed. We will inform you of the process once your offer has been accepted.

Proof Of Finances - Before agreeing a sale, we will require proof of your financial ability to purchase. We will inform you of what we require prior to agreeing a sale.

Broadband & Mobile Phone Coverage - To check the broadband coverage for this property please visit https://www.openreach.com/fibre-broadband. To check mobile phone coverage please visit https://checker.ofcom.org.uk/

Property Ref: 23459_34438466

Share:

Similar Properties

Versatile family home, Nancegollan

4 Bedroom Detached Bungalow | Guide Price £375,000

Nestled in avillage location, this four-bedroom dormer bungalow offers the perfect blend of rural charm and modern conve...

Connor Downs, Spacious family home

4 Bedroom Detached House | Guide Price £375,000

This spacious four bedroom home offers versatile living accommodation across two floors, with the ground floor comprisin...

HOME FOR MODERNISATION, LARGE PLOT, GWEEK

3 Bedroom Bungalow | Guide Price £372,400

Avalon is a charming and generously proportioned three bedroom bungalow, nestled on a good size plot with countryside vi...

Godolphin Cross, Bungalow with Plot

2 Bedroom Bungalow | Guide Price £395,000

This two bedroom bungalow, nestled at the end of a tranquil lane and surrounded by lush woodland. The setting offers a p...

Charming semi-detached cottage with land, Beacon

4 Bedroom Semi-Detached House | Guide Price £395,000

Nestled in the charming location of Wheal Harriet in Beacon, is this semi-detached character cottage offering privacy an...

Bungalow with potential, Coverack

2 Bedroom Detached Bungalow | Guide Price £410,000

Set on the outskirts of the picturesque fishing village of Coverack, this two-bedroom detached bungalow presents a fanta...

The Mather Partnership (Helston)

Helston, Cornwall, TR13 8AA

01326 565016

How much is your home worth?

Use our short form to request a valuation of your property.

Request a Valuation

Mortgage Calculator

Amount Borrowed: £
Total Amount Repayable: £
Total Monthly Payment: £
©2026 The Guild of Property Professionals. All rights reserved. Terms and Conditions | Privacy Policy | Cookie Policy | Complaints Policy | Members Login
The Guild of Property Professionals Trading Address: 121 Park Lane, London W1K 7AG. GPEA Limited. Registered in England & Wales.  Company No: 02819824.  Registered Office Address: 2 St. Stephen's Court, St. Stephen's Road, Bournemouth, Dorset, England, BH2 6LA.  VAT Registration No: 576 8795 61
Book a Property Valuation Update Cookies Preferences