Lulworth Avenue, Goffs Oak

Asking Price
£650,000
SSTC
This property listing is now SSTC

4 Bedroom House for sale in Goffs Oak

3 4 4
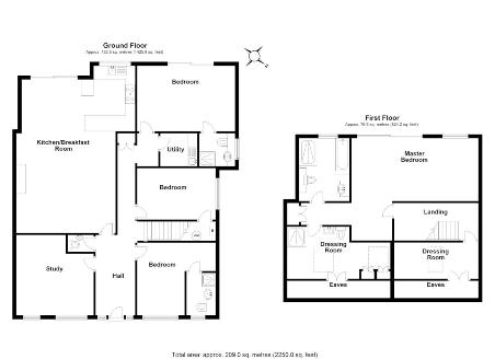
  • 4 double bedrooms
  • 4 bathrooms
  • Spacious Versatile Living
  • Master bedroom suite with Juliet Balcony
  • Off Street Parking via Walled Front Drive
  • Chain Free

A deceptively spacious 4 bedroom 4 bathroom 2 reception semi-detached chalet bungalow, which has been completely refurbished and extended by the current owner to provide spacious versatile accommodation. The property allows for flexible living and offers a whole bedroom suite on the first floor comprising of bedroom area, lounge area, 4 piece bathroom suite and two further rooms which would make ideal his and hers walk in wardrobes. The suite also offers sliding doors, Juliet balcony with views. A truly individual home situated in Goffs Oak and provides a short walk to amenities and good schooling.

The area of Cuffley and Goffs Oak is popular with commuters as it is surrounded by Hertfordshire countryside, yet very conveniently placed for transport links into London, just a few miles from the M25/A10 and just a few minutes drive from Cuffley station with regular trains to London Finsbury Park, Kings Cross and Moorgate. The area has a good selection of local shops for daily conveniences, including local eateries and there are further shops at the Brookfield Shopping Centre. Positioned ideally for families with local schooling in mind.

Important Information

  • This is a Freehold property.

Property Ref: EAXML14685_10567497

Share:

Similar Properties

Elizabeth Gardens , Goffs Oak

3 Bedroom House | Asking Price £650,000

A modern 3-bedroom detached home set on a corner plot, built by Bellway Homes just 3 years ago. This stylish property st...

The Meadway, Cuffley

2 Bedroom Bungalow | Asking Price £650,000

A wonderful Three Bedroom Double Fronted 1930's Fully Detached Bungalow situated in this popular and sought after road i...

Millcrest Road, Goffs Oak

4 Bedroom Semi-Detached House | Asking Price £650,000

Tucked away on a tranquil road just moments from the highly regarded Goffs Oak Primary School, this beautifully extended...

Cranfield Crescent, Cuffley

3 Bedroom Semi-Detached House | Asking Price £665,000

**CHAIN FREE** Nestled in a peaceful crescent, just a short walk from Cuffley village train station and local schools, t...

Cranfield Crescent, Cuffley

3 Bedroom Semi-Detached House | Asking Price £665,500

Set within a popular crescent and offering easy access to Cuffley village and train station, this recently renovated thr...

Cranfield Crescent, Cuffley

3 Bedroom House | Guide Price £670,000

Situated on a quiet tree lined crescent close to Cuffley village and train station you will find this 3 bedroom beautifu...

Banc Property Group (Cuffley)

1 Station Road, Cuffley, Hertfordshire, EN6 4HU

01707 877781

How much is your home worth?

Use our short form to request a valuation of your property.

Request a Valuation

Mortgage Calculator

Amount Borrowed: £
Total Amount Repayable: £
Total Monthly Payment: £
©2026 The Guild of Property Professionals. All rights reserved. Terms and Conditions | Privacy Policy | Cookie Policy | Complaints Policy | Members Login
The Guild of Property Professionals Trading Address: 121 Park Lane, London W1K 7AG. GPEA Limited. Registered in England & Wales.  Company No: 02819824.  Registered Office Address: 2 St. Stephen's Court, St. Stephen's Road, Bournemouth, Dorset, England, BH2 6LA.  VAT Registration No: 576 8795 61
Book a Property Valuation Update Cookies Preferences