Wessex Gardens, Golders Green, NW11

Asking Price
£1,250,000

4 Bedroom Semi-Detached House for sale in Golders Green

1 4 3
  • Off Street Parking
  • Patio
  • Private Garden

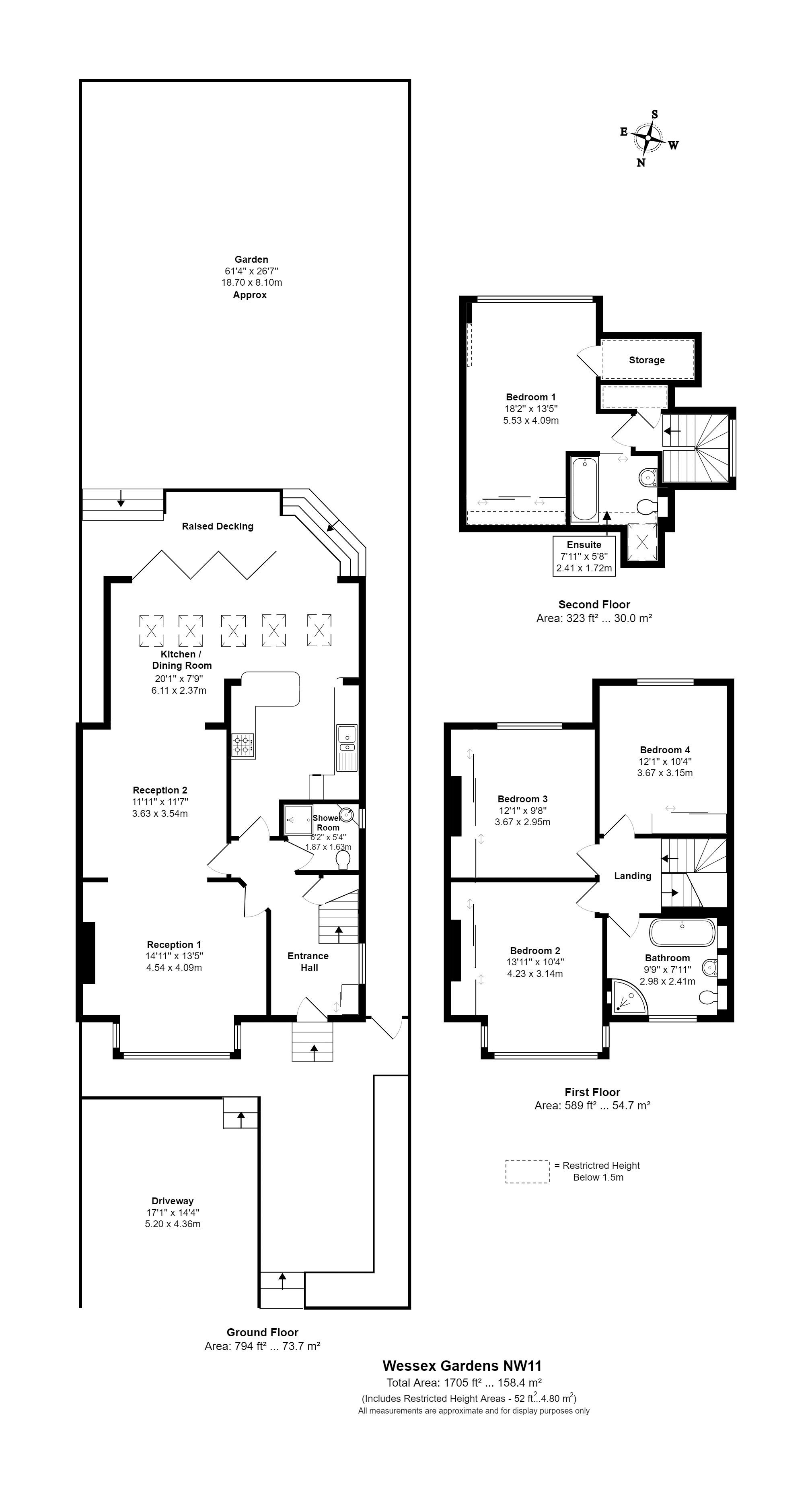
A stylishly refurbished and well-presented four-double bedroom three-bathroom, Freehold, semi-detached family home measuring internally approximately 1652.20 sq. ft (153.50 sq. m) arranged over three floors with private patio, stunning 60 ft south facing garden and off-street parking for one car. The house comprises as follows: frontage forecourt with parking leads via a few steps to a bright entrance hallway, fabulous front to back double reception, open plan L shape kitchen with stylish Velux spanning the rear elevation and bifolds opening onto decked terrace and rear garden. There is a shower room/ guest cloakroom off the hallway. Stairs to first floor comprises: three double bedrooms (bedroom 4 also a double currently demised as a study) and spacious family bathroom with separate shower cubicle and bath. Stairs lead to second floor comprising: principal bedroom with views over the garden, lounging area, ensuite bathroom with shower over the bath and large landing window with panoramic views over to Wembley stadium. Tenure: Freehold. EPC rating Band – D. Council tax Band – F, (approximately £2940.20 per annum-2025 demand). Ofcom details Broadband as Ultrafast via Virgin Media and Openreach, and 5G as most likely through O2. Accessibility: steps to frontage, stairs to all levels, steps down from the decked terrace to garden. Parking: off street and resident permit parking via Barnet Council (chargeable).

Important Information

  • This is a Freehold property.
  • This Council Tax band for this property is: F
  • EPC Rating is D

Property Ref: HAM_HAM240013

Share:

Similar Properties

Elgin Mews North Maida Vale

3 Bedroom Mews House | Asking Price £1,175,000

Charming and lovely, well-maintained, three-bedroom, two-bathroom mews house of brick and tiled roof construction with n...

Princess Court Bryanston Place

2 Bedroom Flat | Asking Price £1,050,000

Bright and airy, good sized, well appointed two-double bedroom apartment with high ceilings throughout, situated within...

Willow Road, Hampstead NW3

2 Bedroom Flat | Asking Price £1,025,000

Stunning, bright, and spacious, lower ground two-bedroom, two-bathroom apartment in this attractive red brick Victorian...

Rosslyn Hill Belsize Park

3 Bedroom Flat | Asking Price £1,650,000

An exquisite three bedroom, two bathroom, penthouse apartment with stunning double height reception and 25ft mezzanine l...

Fitzjohns Avenue, Belsize Park, NW3

5 Bedroom Flat | Asking Price £2,595,000

Spectacular 5 bedroom, 4.5 bathroom duplex apartment measuring approximately 2832 sq ft (inclusive of restricted head he...

Maresfield Gardens, Hampstead NW3

3 Bedroom Ground Floor Flat | Asking Price £2,995,000

Rarely available, a unique, elegant, three double bedroom, two-bathroom garden apartment measuring internally approximat...

Property Divas (Hampstead)

Rosslyn Hill, Hampstead, London, NW3 1NH

020 7431 8000

How much is your home worth?

Use our short form to request a valuation of your property.

Request a Valuation

Mortgage Calculator

Amount Borrowed: £
Total Amount Repayable: £
Total Monthly Payment: £
©2025 The Guild of Property Professionals. All rights reserved. Terms and Conditions | Privacy Policy | Cookie Policy | Complaints Policy | Members Login
The Guild of Property Professionals Trading Address: 121 Park Lane, London W1K 7AG. GPEA Limited. Registered in England & Wales.  Company No: 02819824.  Registered Office Address: 2 St. Stephen's Court, St. Stephen's Road, Bournemouth, Dorset, England, BH2 6LA.  VAT Registration No: 576 8795 61
Book a Property Valuation Update Cookies Preferences