La Porte Precinct, Grangemouth, Stirlingshire, FK3

Guide Price
£140,000
SSTC
This property listing is now SSTC

Retail Property (High Street) for sale in Grangemouth

  • Commercial Property
  • Substantial Corner Unit
  • Entire Ground & First Floor
  • First Floor Tenant Paying £9,500 PA
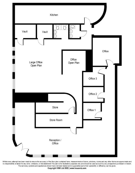
  • Ground Floor - 3441 sq ft
  • First Floor – 2215 sq ft
  • Class 2 Consent
  • EPC – E

Former RBS building in prominent town centre position, with frontage on both pedestrianised La Porte Precinct and Union Road. The ground floor is currently vacant with class 2 consents and a generous 3,441 sq ft area. The first floor 2,215 sq ft unit is self-contained and is occupied by a solicitors firm with an annual rent of £9,500 on full repairing and insuring terms until 2024, without review.

La Porte Precinct is a popular pedestrianised shopping area with neighbouring occupiers such as Dominoes, Bank of Scotland, Boots pharmacy, Greggs and Costa. Grangemouth, a town in the Falkirk council area lies in the Forth Valley. The area has a great range of amenities such as shops, restaurants, leisure and educational facilities. The area benefits from fantastic public transport services with direct access to the M9 linking the town to Stirling, Edinburgh and further.

Rateable Value - £37,750

For further information please contact The Wilsons Auctions Property Department.


Property Ref: 51222_WAD220127

Share:

Similar Properties

Ford Cottage, Failford, Mauchline, Ayrshire, KA5

4 Bedroom End of Terrace House | Guide Price £135,000

We are delighted to bring to auction this four bedroom end of terrace cottage located in Failford, Mauchline. This prope...

Walker Drive, Muchalls, Stonehaven, AB39

6 Bedroom Detached House | Guide Price £130,000

We are delighted to bring to auction this unique, six bedroom, detached house located within Muchalls, Aberdeenshire. Th...

Panmure Place, Montrose, DD10

5 Bedroom Maisonette | Guide Price £130,000

Five Bedroom House perfect for families, this property will be auctioned on the 21st of May. The property comprises of E...

Polmuir Road, Aberdeen, AB11

2 Bedroom Flat | Guide Price £145,000

Bright and Spacious Modern Apartment on second floor of desirable Riverside Development. Located on the second floor, th...

Battismore Road, Morecambe, Lancashire, LA4

3 Bedroom Semi-Detached House | Guide Price £150,000

Semi detached three bedroom house perfect for family accommodation in Morecambe.This semi detached house benefits from a...

Barrington Street, Toronto, Bishop Aukland, DL14

4 Bedroom Detached House | Guide Price £150,000

We are delighted to bring to auction this large, detached , new build property located within the small village of Toron...

Wilsons Auctions Dalry (Dalry)

Dalry, Ayrshire, KA24 4LG

01294 833444

How much is your home worth?

Use our short form to request a valuation of your property.

Request a Valuation

Mortgage Calculator

Amount Borrowed: £
Total Amount Repayable: £
Total Monthly Payment: £
©2025 The Guild of Property Professionals. All rights reserved. Terms and Conditions | Privacy Policy | Cookie Policy | Complaints Policy | Members Login
The Guild of Property Professionals Trading Address: 121 Park Lane, London W1K 7AG. GPEA Limited. Registered in England & Wales.  Company No: 02819824.  Registered Office Address: 2 St. Stephen's Court, St. Stephen's Road, Bournemouth, Dorset, England, BH2 6LA.  VAT Registration No: 576 8795 61
Book a Property Valuation Update Cookies Preferences