Farriers Way, Great Notley, Braintree

Offers Over
£600,000
SSTC
This property listing is now SSTC

5 Bedroom Detached House for sale in Great Notley, Braintree

3 5 3
  • Impressive 27' Kitchen/Diner Linked By Glass ATRIUM Across Rear
  • UNOVERLOOKED & Re-Landscaped Rear Garden
  • Modern & VERSATILE Five Bedroom Detached Property
  • 27' VAULTED Dressing Room & En-Suite Bathroom To Master Bedroom
  • 20' DUAL ASPECT Lounge Plus OFFICE / PLAYROOM
  • CORNER PLOT Setting In CUL-DE-SAC Location On Great Notley Garden Village
  • SOLAR PANELS Contributing To Significant Energy Savings
  • Integral GARAGE & Driveway Parking For 2-3 Vehicles
  • Sizeable Accommodation Set Over Three Floors
  • Short Walk To All Local Shops/Amenities & Popular Schools

Boasting a 27' kitchen/diner linked by GLASS ATRIUM across rear, a spacious 20' DUAL ASPECT lounge plus OFFICE/PLAYROOM and a substantial 27' VAULTED dressing room and en-suite bathroom to master bedroom is this VERSATILE five bedroom detached property. Benefiting from an UNOVERLOOKED & re-landscaped rear garden, an integral garage with driveway parking for 2-3 vehicles and SOLAR PANELS which contribute to SIGNIFICANT ENERGY SAVINGS! Ideally positioned on a CORNER PLOT in a cul-de-sac location within the sought after Great Notley Garden Village - Just a short walk to all local shops/amenities & popular schools with convenient access to Braintree Town Centre/Station, A120/M11 & Chelmsford.

***GUIDE PRICE £600,0000-£625,000***

*This property is also to include a 14-panel installed Solar energy system which contributes to significant utility bill savings.

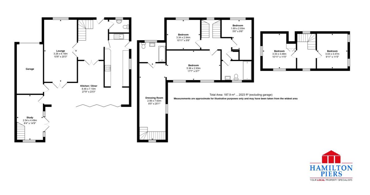
The accommodation, with approximate room sizes, is as follows:

Ground Floor Accommodation: -

Entrance Hall: - Composite secure main entry door, stairs to first floor, under stairs storage cupboard, radiator, tiled flooring and smooth coved ceiling.

Cloakroom: - Opaque double glazed window to front aspect, low level WC, vanity wash hand basin, radiator, tiled flooring and smooth coved ceiling.

Lounge: - 6.17m x 3.25m (20'3 x 10'8) - Double glazed window to front aspect, central fireplace, radiator, wooden flooring and smooth coved ceiling.

Kitchen / Dining / Family Room: - 8.46m x 7.09m (27'9 x 23'3) - Sizeable kitchen, dining and family room linked via atrium across the property rear. Kitchen comprises a double glazed window to side aspect with side door, a series of matching base and wall units, roll top work surfaces incorporating a single bowl sink with central mixer tap and drainer, single oven with gas hob and extractor hood over, space for American fridge/freezer, dishwasher, washing machine and tumble dryer with adjacent utility area, additional single bowl sink and wall-mounted boiler (in cupboard). Adjacent to dining are and both opening to UPVC constructed atrium across property rear with three sets of French doors to rear garden, sloping glass roof with custom fitted blinds, radiators and wooden flooring.

Office / Playroom: - 4.50m x 2.54m (14'9 x 8'4) - Double glazed window to rear aspect, stairs to first floor (mezzanine dressing room), radiator, wooden flooring and smooth coved ceiling. French doors to side aspect to rear garden.

First Floor Accommodation: -

Landing: - Stairs to second floor, airing cupboard, carpeted flooring and smooth coved ceiling.

Master Bedroom: - 5.36m x 2.92m (17'7 x 9'7) - Two double glazed windows to rear aspect, radiator, carpeted flooring and smooth coved ceiling. Opening to dressing room with access to en-suite bathroom.

Dressing Room: - 7.65m x 2.57m (25'1 x 8'5) - Feature arched double glazed window to rear aspect, radiator, carpeted flooring and smooth vaulted ceiling. Stairs leasing to ground floor office/playroom.

En-Suite: - Opaque double glazed window to front aspect, panelled bath with central mixer tap and shower attachment, inset WC, vanity wash hand basin with tiled splash back, shaver point, extractor fan, heated towel rail, tiled flooring and smooth coved ceiling with sunken spotlights.

Bedroom Four: - 3.33m x 2.95m (10'11 x 9'8) - Double glazed window to front aspect, radiator, laminate flooring and smooth coved ceiling.

Bedroom Five: - 2.95m max x 1.68m (9'8 max x 5'6) - Double glazed window to front aspect, radiator, carpeted flooring and smooth coved ceiling.

Shower Room: - Opaque double glazed window to rear aspect, walk-in double shower unit set behind glass enclosure, inset WC, vanity wash hand basin with tiled splash back, shaver point, extractor fan, heated towel rail, tiled flooring and smooth coved ceiling with sunken spotlights.

Second Floor Accommodation: -

Landing: - Double glazed window to front aspect and Velux window to rear aspect, loft access, radiator, carpeted flooring and smooth vaulted ceiling with sunken spotlights.

Bedroom Two: - 3.48m x 3.33m (11'5 x 10'11) - Double glazed window to side aspect and Velux window to rear aspect, built-in wardrobes, radiator, carpeted flooring and smooth vaulted ceiling with sunken spotlights.

Bedroom Three: - 3.48m x 3.02m (11'5 x 9'11) - Double glazed windows to side aspect and Velux window to rear aspect, built-in eaves storage cupboards, radiator, carpeted flooring and smooth vaulted ceiling with sunken spotlights.

Exterior: -

Rear Garden: - Unoverlooked re-landscaped rear garden comprising patio area across property rear with remainder mainly laid to artificial lawn, two storage sheds, pergola with central hot tub area, gated side access.

Garage, Driveway & Parking: - Integral single garage fitted with power, lighting and electric roller door. Driveway parking for 2-3 vehicles.

Agents Notes: - Council Tax Band: G

For further information regarding this property, please contact Hamilton Piers.

Property Ref: 56382_33920525

Share:

Similar Properties

Colville Close, Great Notley, Braintree

4 Bedroom Detached House | Guide Price £600,000

**GUIDE PRICE £600,000-£625,000**Presented in IMMACULATE decorative order throughout, boasting a stunning 25' DUAL ASPEC...

Alverton Close, Great Notley, Braintree

4 Bedroom Detached House | Offers in excess of £600,000

Boasting masses of POTENTIAL TO EXTEND (stpp), THREE reception rooms inc. 18' lounge & STUDY, with an EN-SUITE & DRESSIN...

Grantham Avenue, Great Notley, Braintree, CM77

5 Bedroom Detached House | Offers in excess of £600,000

Boasting VERSATILE living space throughout inc. 22' GLASS ATRIUM/dining area opening to a spacious 22' lounge, a modern...

Rotten End, Wethersfield, Braintree

4 Bedroom Detached House | Offers in excess of £625,000

Boasting an impressive 0.63 ACRE PLOT set in an idyllic rural location and offering a two DOUBLE bedroom DETACHED ANNEX...

Harnham Drive, Great Notley, Braintree

4 Bedroom Detached House | Guide Price £625,000

**GUIDE PRICE £625,000-£650,000**Offered with NO ONWARD CHAIN and boasting THREE reception rooms inc. 17' lounge & STUDY...

Hornells Corner, Little Leighs, Chelmsford, CM3

3 Bedroom Detached House | Guide Price £625,000

*** SOLD IN 48 HOURS ***Benefiting from NO CHAIN with a 90ft UNOVERLOOKED garden, 24? kitchen/breakfast room with UTILIT...

Hamilton Piers (Great Notley)

Avenue West, Skyline 120 Business Park, Great Notley, Essex, CM77 7AA

01376341141

How much is your home worth?

Use our short form to request a valuation of your property.

Request a Valuation

Mortgage Calculator

Amount Borrowed: £
Total Amount Repayable: £
Total Monthly Payment: £
©2026 The Guild of Property Professionals. All rights reserved. Terms and Conditions | Privacy Policy | Cookie Policy | Complaints Policy | Members Login
The Guild of Property Professionals Trading Address: 121 Park Lane, London W1K 7AG. GPEA Limited. Registered in England & Wales.  Company No: 02819824.  Registered Office Address: 2 St. Stephen's Court, St. Stephen's Road, Bournemouth, Dorset, England, BH2 6LA.  VAT Registration No: 576 8795 61
Book a Property Valuation Update Cookies Preferences