Dewhirst Road Rochdale

Asking Price
£550,000

8 Bedroom Semi-Detached House for sale in Greater Manchester

4 8 6

A Rare Historic Residence with Modern Flexibility – Dating Back to 1684



Steeped in history and full of character, this exceptional property offers a rare opportunity to acquire a magnificent home dating back to 1684, set on a large, private plot with generous off-street parking and its own private access road.



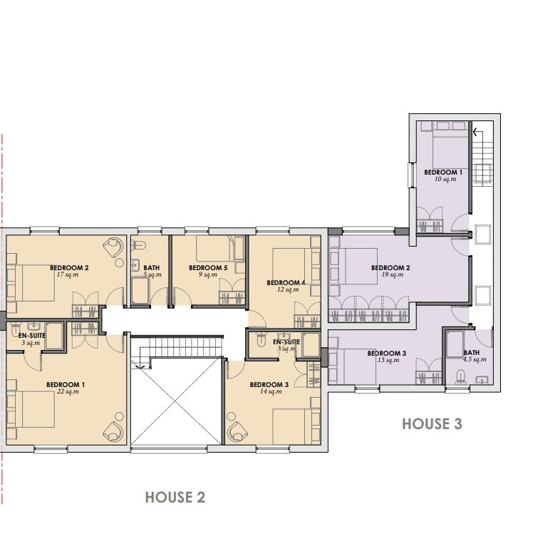
Currently arranged as two adjoining houses, the property provides outstanding versatility—ideal for extended family living, a multi-generational setup, or potential reconfiguration into one grand residence (subject to the necessary consents).



Between them, the homes offer a total of eight bedrooms and six bathrooms, along with an array of spacious reception rooms, period features, and charming architectural details that reflect the building’s long and fascinating history.



Externally, the property continues to impress. There are two double garages and a store room, providing excellent storage and workshop options, along with an EV charger already installed for modern convenience. The extensive grounds offer mature gardens, open spaces for entertaining, and a wonderful sense of privacy and seclusion.



Combining historic character, substantial accommodation, and contemporary practicality, this unique property is perfectly suited to those seeking a truly distinctive home with flexibility, charm, and heritage in abundance.

Important Information

  • This is a Freehold property.
  • This Council Tax band for this property is: G
  • EPC Rating is E

Property Ref: ROC_ROC250907

Share:

Similar Properties

IMMACULATELY PRESENTED EXECUTIVE FOUR BEDROOM DETACHED IN BAMFORD

4 Bedroom Detached House | Offers in excess of £550,000

Cowell Norford are delighted to introduce to the market a RARE OPPORTUNITY to purchase ''ABI LODGE'' an IMMACULATELY PRE...

BEAUTIFULLY PRESENTED FIVE BEDROOM DETACHED FAMILY HOME ON A SUBSTANTIAL PLOT IN NORDEN

5 Bedroom Detached House | Offers in region of £550,000

Cowell Norford are delighted to introduce to the market a RARE OPPORTUNITY to purchase a BEAUTIFULLY PRESENTED FIVE BEDR...

GEORGIAN CHARACTER FIVE BEDROOM SEMI DETACHED FAMILY HOME IN HEYWOOD

5 Bedroom Semi-Detached House | Offers Over £500,000

Cowell Norford are delighted to introduce to the market a RARE OPPORTUNITY to purchase ''INGLEWOOD'', a STUNNING FIVE BE...

IMMACULATELY PRESENTED & EXTENDED FIVE BEDROOM DETACHED IN BAMFORD

5 Bedroom Detached House | Offers in excess of £595,000

Cowell Norford are delighted to introduce to the market an IMMACULATELY PRESENTED & EXTENDED FIVE BEDROOM DETACHED famil...

IMMACULATELY PRESENTED EXECUTIVE FOUR/FIVE BEDOROM DETACHED IN SHAWCLOUGH

5 Bedroom Detached House | Offers in excess of £599,950

Cowell Norford are delighted to introduce to the market a RARE OPPORTUNITY to purchase an IMMACULATELY PRESENTED EXECUTI...

IMMACULATELY PRESENTED EXECUTIVE FIVE BEDROOM DETACHED FAMILY HOME IN NORDEN

5 Bedroom Detached House | Offers in excess of £650,000

Cowell Norford are delighted to introduce to the market an IMMACULATELY PRESENTED FIVE BEDROOM EXECUTIVE DETACHED family...

Cowell Norford (Rochdale) (Rochdale)

561 Bury Road, Bamford, Rochdale, Greater Manchester, OL11 4DQ

01706 860 444

How much is your home worth?

Use our short form to request a valuation of your property.

Request a Valuation

Mortgage Calculator

Amount Borrowed: £
Total Amount Repayable: £
Total Monthly Payment: £
©2025 The Guild of Property Professionals. All rights reserved. Terms and Conditions | Privacy Policy | Cookie Policy | Complaints Policy | Members Login
The Guild of Property Professionals Trading Address: 121 Park Lane, London W1K 7AG. GPEA Limited. Registered in England & Wales.  Company No: 02819824.  Registered Office Address: 2 St. Stephen's Court, St. Stephen's Road, Bournemouth, Dorset, England, BH2 6LA.  VAT Registration No: 576 8795 61
Book a Property Valuation Update Cookies Preferences