Green Lane, Holbeach, PE12 7BZ

Guide Price
£89,950

Land for sale in Green Lane / Back Street

LOCATION
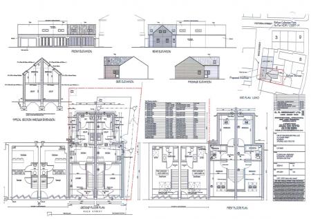
* Full Planning Consent granted but now expired, for a pair of 2 bedroom cottages * Demolition work has been started and some materials are being offered/included with the site sale * Planning permission will need to be re-applied for.

The site is situated off Victoria Street, a side street running between Albert Street and Barrington Gate, leading to High Street. It is within easy walking distance of all local amenities including Primary and Secondary Schools, Shops, Doctors, Pubs, and it lies close to the All Saints Church. Further facilities and secondary schools are located in the nearby towns of Spalding (7 miles). The population for Spalding is approximately 29,000 and the District of South Holland has a population of around 96,000 people (2020 figures from SHDC website).

Holbeach lies on the A151, and is just off the A17, giving good access to Kings Lynn (31 miles) and beyond to the North Norfolk coastal resorts.

DESCRIPTION
The whole site extends to approximately 130m², and the site offered for sale is shown edged red on the plan included in these Particulars (for identification purposes only). At the present time the building that existed on the site has been partly demolished, but we are advised that planning permission has now expired. The vendor renovated the adjacent properties in recent years, and is including some excess building materials from that development within this sale.

SERVICES
It is believed all mains services are available in the roadway. However, the Vendor nor the Agents make any guarantees as to the availability of services and interested parties must make their own enquiries direct with the service providers concerned as to the availability, practicality and cost of providing all necessary services to the site as required.

VAT
Not applicable.

PLANNING
Full Planning Consent has been granted by South Holland District Council - Reference No. H09-0061-20 dated 26 March 2020 for the demolition of the existing cottage and its replacement with a pair of 2 bedroom cottages. This consent has now expired, but is expected to be re-consented on further application. The properties will each have a rear yard, accessed via a shared gate to the right hand side of the proposed cottages.

Prospective purchasers’ attention is drawn to the various conditions attached to the now expired Planning Consent, and the purchaser will be responsible for all costs associated with submitting a future planning application and fulfilling any future Planning consent conditions.

A copy of the expired Planning Consent is available from the Council’s website: www.sholland.gov.uk or from the Agent’s Spalding Office. Included in these Particulars is a copy of the plan determined on the expired Planning consent which show the previously consented design of the dwellings. Any queries in respect of planning matters should be addressed direct to the Planning Department at South Holland District Council - CALL: 01775 761161.

VIEWING
By appointment only.

NB: The site is fenced off because it is uneven in part with differing ground levels and parties view the site at their own risk. Neither the Vendor nor the Agents accept any liability for any damage to persons or property by virtue of viewing the site.

Property Ref: 58325_101505013055

Share:

Similar Properties

Kellett Gate, Spalding

2 Bedroom Mobile Home | Offers in region of £85,000

** REDUCED ** Tingdeene Park Home with full UPVC double glazing. Accommodation comprising kitchen, lounge diner, utility...

Land Off Guanockgate Road, Sutton St Edmund

Land | Guide Price £85,000

An opportunity to acquire 8.43 Acres (3.41 Hectares) or thereabouts of Grade 2 arable land situated at the junction of G...

Coney Garth Lane, Surfleet Seas End

1 Bedroom Mobile Home | £85,000

One bedroom mobile home 3.6m x 13m (12ft x 44ft) with accommodation comprising entrance hallway, large double bedroom, b...

Residential Building Plot, Adj 72 & 80 Seas End Road, PE11 4DQ

Land | Guide Price £90,000

• Building Plot with additional ground to the rear forming part of the Planning Consent• Total Site Area 0.18 acres• Out...

Building Plot, PE11 4DQ

Land | Guide Price £90,000

• Building Plot with additional ground to the rear forming part of the Planning Consent• Total Site Area 0.18 acres• Out...

Holbeach Drove, Methodist Church, Chapel Drove, Holbeach Drove, PE12 0TP

Commercial Property | Guide Price £95,000

** Methodist Church built in 1833 set in a semi rural location, well positioned in the centre of the village - Gravelled...

Longstaff (Spalding)

5 New Road, Spalding, Lincolnshire, PE11 1BS

01775 766766

How much is your home worth?

Use our short form to request a valuation of your property.

Request a Valuation

Mortgage Calculator

Amount Borrowed: £
Total Amount Repayable: £
Total Monthly Payment: £
©2025 The Guild of Property Professionals. All rights reserved. Terms and Conditions | Privacy Policy | Cookie Policy | Complaints Policy | Members Login
The Guild of Property Professionals Trading Address: 121 Park Lane, London W1K 7AG. GPEA Limited. Registered in England & Wales.  Company No: 02819824.  Registered Office Address: 2 St. Stephen's Court, St. Stephen's Road, Bournemouth, Dorset, England, BH2 6LA.  VAT Registration No: 576 8795 61
Book a Property Valuation Update Cookies Preferences