Church Lane, Brigsley

Asking Price
£575,000

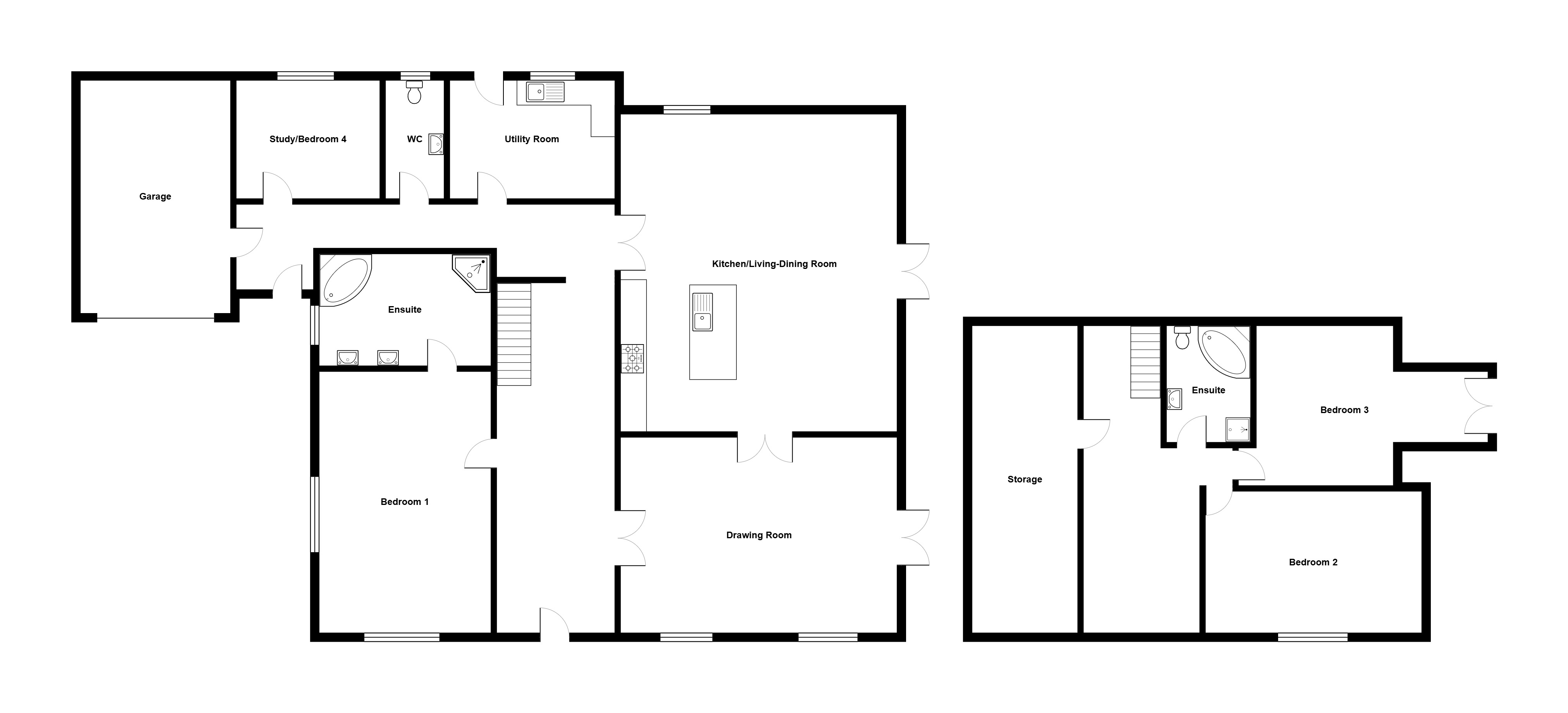
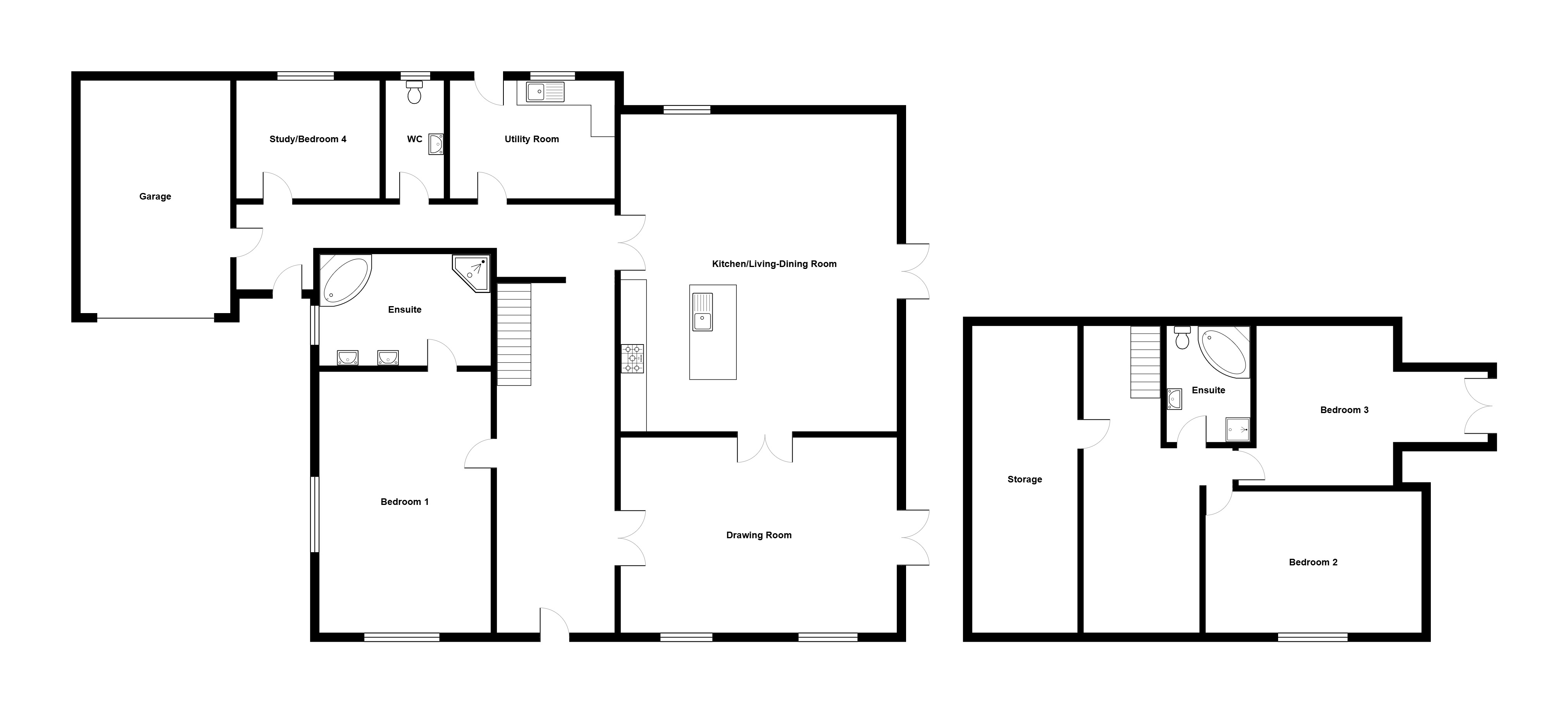
3 Bedroom Detached House for sale in Grimsby

2 3 2
  • Individual Architect Designed, Spacious Detached House
  • Sought-After Village Location
  • Quality Fitments Throughout Including "Richard Sutton" Kitchen & Bathrooms
  • Gas Central Heating System & uPVC Double Glazing
  • Beautiful Gardens & Garage
  • A Very Special Home, The Likes Of Which Rarely Come To Market

Nestled in the charming and most desirable village of Brigsley is this individually designed detached house offers the perfect blend of comfort, style and quality. Boasting Richard Sutton Kitchen, Utility and Bathrooms, this property is ideal for families or those seeking a peaceful retreat. The spacious garden, complete with a patio and Breeze House provides ample outdoor space for relaxing or entertaining guests. The open-plan living area is flooded with natural light, creating a warm and inviting atmosphere throughout. The kitchen is equipped with superb top-of-the-line appliances, making meal preparation and entertaining a breeze. Don't miss the opportunity to make this beautiful house your new home. Contact us today to arrange a viewing.

Important Information

  • This is a Freehold property.
  • This Council Tax band for this property is: G
  • EPC Rating is C

Property Ref: GRS250353

Share:

Similar Properties

Grimsby Road, Cleethorpes

19 Bedroom Not Specified | Guide Price £525,000

Blundell Park Hotel: established hotel with 19 bedrooms (15 en-suite), bar and function room. Includes business, fixture...

Normanby Road, Nettleton

4 Bedroom Detached House | Offers Over £525,000

Elevated detached home on a quiet Nettleton lane, enjoying panoramic Wolds views, exceptional gardens, standout Sun Room...

Grasby Road, Limber

3 Bedroom Detached House | Asking Price £500,000

No chain. Converted 1890 Methodist Chapel in Limber (1982 conversion). Original features, imperial staircase, stained gl...

Grimsby Road, Caistor

6 Bedroom Semi-Detached House | Asking Price £595,000

Tower House Caistor, Grade 2 listed building built circa 1780 boastings tremendous space and character. With a separate...

John Cornwell V C Drive, Humberston

4 Bedroom Detached House | Asking Price £599,950

Former show home located on the stunning Par 3 development, built by Cyden Homes in 2022. With stunning internal and ext...

Humberston Avenue, Humberston

4 Bedroom Detached Bungalow | Asking Price £600,000

VIDEO VIEWING AVAILABLE -A very special destinctive eyebrow style chalet house in one of Grimsby's premier Avenues. Doub...

Jackson Green & Preston (Grimsby)

19 West Saint Marys Gate, Grimsby, Lincolnshire, DN31 1LE

01472 311 113

How much is your home worth?

Use our short form to request a valuation of your property.

Request a Valuation

Mortgage Calculator

Amount Borrowed: £
Total Amount Repayable: £
Total Monthly Payment: £
©2026 The Guild of Property Professionals. All rights reserved. Terms and Conditions | Privacy Policy | Cookie Policy | Complaints Policy | Members Login
The Guild of Property Professionals Trading Address: 121 Park Lane, London W1K 7AG. GPEA Limited. Registered in England & Wales.  Company No: 02819824.  Registered Office Address: 2 St. Stephen's Court, St. Stephen's Road, Bournemouth, Dorset, England, BH2 6LA.  VAT Registration No: 576 8795 61
Book a Property Valuation Update Cookies Preferences