Merrow, Guildford, GU1

Guide Price
£1,500,000

5 Bedroom House for sale in Guildford

5
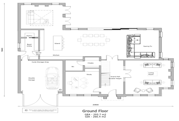
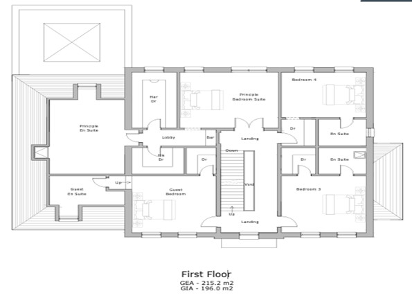
  • Full planning permission for a 5-bedroom, 2.5-storey detached house
  • Integral double garage and private gated entrance
  • Generous plot within a mature, residential setting
  • High-quality, sustainable design
  • Ideal for those seeking a self-build opportunity to create their dream family home

Planning consent has been secured for the demolition of the existing dwelling and the construction of a 2.5-storey detached family home with an integral double garage and timber entrance gates. The approved scheme (architectural drawings 2025–P713–001 to 007) showcases a beautifully balanced design that optimises the site's potential while complementing the established suburban character of Levylsdene.


Design & Setting

Located on the south side of Levylsdene, the plot sits among an attractive mix of detached properties all benefiting from generous frontages and mature gardens. The approved design responds sensitively to this context, delivering a contemporary-classical home that harmonises with its surroundings while offering a distinctive, high-quality architectural identity.

Key design features include:

• Elegant proportions and traditional detailing, with pitched roofs, quality brickwork and refined fenestration
• Spacious internal layout with a generous garden and ample off-street parking
• Boundary distances and garden depths exceeding local standards, ensuring privacy and light


Sustainability & Environmental Design

The approved scheme is founded on sustainable design principles, incorporating:

• High-performance insulation exceeding Part L standards
• Efficient heating systems and natural ventilation
• Sustainable Drainage Systems (SuDS)
• Low-maintenance, locally sourced materials, including FSC-certified timber.

These measures contribute to a low-carbon, energy-efficient home designed for modern family living and long-term value

Local Authority: Guildford Borough Council

Planning Link: https://publicaccess.guildford.gov.uk/online-applications/applicationDetails.do?keyVal=_GUILD_DCAPR_211648&activeTab=summary


Important Information

  • This is a Freehold property.

Property Ref: 549888_LNH240820

Share:

Similar Properties

Guildford, Surrey, GU1

4 Bedroom Detached House | Guide Price £1,500,000

Nestled within the peaceful and highly sought-after Greatford Drive, this impressive five-bedroom detached family home h...

Bramley, Guildford, Surrey, GU5

5 Bedroom Detached House | Guide Price £1,500,000

Brown Eaves is a rare country estate that combines timeless Edwardian elegance with a modern, lifestyle-focused design.

Guildford, Surrey, GU1

4 Bedroom Detached House | Guide Price £1,400,000

Situated at the quieter eastern end of Chantry View Road, the property benefits from its location on the favoured south...

Chilworth, Guildford, Surrey, GU4

4 Bedroom Detached House | Guide Price £1,600,000

Tucked away in the picturesque village of Chilworth, The Tile House is a handsome and characterful Victorian home, with...

Guildford, Surrey, GU1

5 Bedroom Detached House | Guide Price £1,600,000

Tucked away at the end of a quiet, secluded residential enclave, 16 Romans Close is an exceptional modern home that seam...

Guildford, Surrey, GU1

4 Bedroom Detached House | Guide Price £1,695,000

This impressive and substantial detached home enjoys a prime location on one of Guildford's most desirable private roads...

Seymours Prestige Homes (Guildford)

Guildford, Guildford, Surrey, GU1 3BJ

01483 576833

How much is your home worth?

Use our short form to request a valuation of your property.

Request a Valuation

Mortgage Calculator

Amount Borrowed: £
Total Amount Repayable: £
Total Monthly Payment: £
©2025 The Guild of Property Professionals. All rights reserved. Terms and Conditions | Privacy Policy | Cookie Policy | Complaints Policy | Members Login
The Guild of Property Professionals Trading Address: 121 Park Lane, London W1K 7AG. GPEA Limited. Registered in England & Wales.  Company No: 02819824.  Registered Office Address: 2 St. Stephen's Court, St. Stephen's Road, Bournemouth, Dorset, England, BH2 6LA.  VAT Registration No: 576 8795 61
Book a Property Valuation Update Cookies Preferences