Merrow, Guildford, Surrey, GU1

Guide Price
£565,000

3 Bedroom Semi-Detached House for sale in Guildford

2 3 1
  • Semi-detached house
  • Two storey rear extension
  • Well decorated throughout
  • Modern kitchen
  • Downstairs cloakroom
  • Enclosed rear garden
  • Driveway parking
  • Ultrafast bradband available

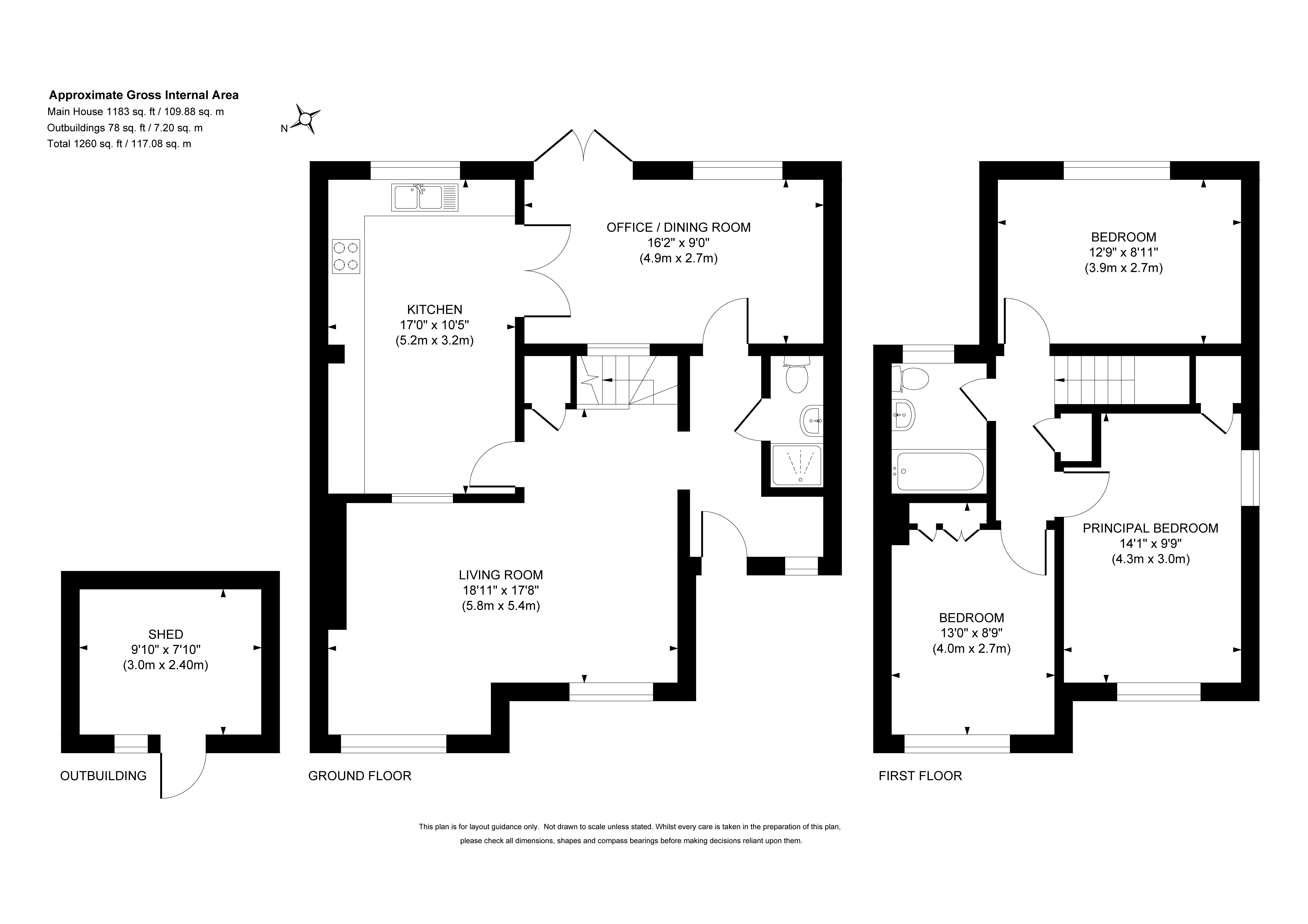
This thoughtfully extended semi-detached house in Merrow offers a well-balanced and versatile layout, designed to maximise space and natural light throughout. With driveway parking to the front, the property immediately presents itself as a practical and welcoming home.Downstairs, the living room is a bright and inviting space, finished in neutral tones that enhance the sense of light and openness. Dual aspect windows allow sunlight to flood the room throughout the day, while a feature mantelpiece provides a charming focal point. The kitchen is a real highlight of the home, combining style and functionality with large white floor tiles, sleek white cabinetry and warm wood worktops. A stylish olive green tiled backsplash adds a welcome splash of colour and character. Glass doors lead from the kitchen into the dining room, creating a natural flow between the spaces.The dining room is a fantastic addition, featuring wood-effect flooring and double glass doors that open directly onto the garden. This room enjoys plenty of natural light and works equally well for everyday family meals or entertaining guests. Completing the ground floor is a convenient WC, adding to the practicality of the layout.Upstairs, the principal bedroom is a calm and relaxing retreat, finished with soft beige walls and enhanced by slanted ceilings that add character and warmth. The second bedroom, located at the front of the property, also benefits from slanted ceilings and is decorated in pale blue tones, creating a light and airy feel. The third bedroom to the rear is spacious and well presented, making it suitable for a variety of uses. The family bathroom is tastefully finished with sandy-coloured tiled walls and floors, complemented by clean white fittings for a fresh, modern look.Outside, the garden offers a lovely space for both relaxation and entertaining. A good-sized patio provides the perfect area for outdoor dining, with steps leading up to a raised lawn. The garden is fully fenced, offering privacy, and a shed to the rear provides useful additional storage.

Important Information

  • This is a Freehold property.

Property Ref: BUR230063

Share:

Similar Properties

Weybrook Park, Burpham, Guildford, GU4

3 Bedroom Link Detached House | Guide Price £560,000

This attractive three-bedroom link-detached home is situated in the popular village of Burpham and offers comfortable, w...

Guildford, Surrey, GU4

3 Bedroom Semi-Detached House | Guide Price £550,000

This well-presented three-bedroom semi-detached home is arranged over three levels, offering a stylish and practical lay...

Merrow Park, Guildford, Surrey, GU4

3 Bedroom Link Detached House | Guide Price £550,000

This beautifully presented three bedroom link detached house is located in the desirable area of Merrow Park, close to l...

Burpham, Guildford, Surrey, GU4

3 Bedroom Detached House | Guide Price £575,000

Located in a pleasant spot on the popular Weybrook Park development, within easy walking distance of sought-after school...

Jacobs Well, Guildford, Surrey, GU4

4 Bedroom Terraced House | Guide Price £575,000

This beautifully presented four-bedroom terraced home in Jacobs Well is arranged over three storeys and has been thought...

Guildford, Surrey, GU1

2 Bedroom Semi-Detached House | Guide Price £575,000

Offered chain-free, this characterful semi-detached home is set in a popular residential area and offers a wonderful ble...

Seymours (Burpham)

Burpham, Surrey, GU1 1YP

01483 300667

How much is your home worth?

Use our short form to request a valuation of your property.

Request a Valuation

Mortgage Calculator

Amount Borrowed: £
Total Amount Repayable: £
Total Monthly Payment: £
©2026 The Guild of Property Professionals. All rights reserved. Terms and Conditions | Privacy Policy | Cookie Policy | Complaints Policy | Members Login
The Guild of Property Professionals Trading Address: 121 Park Lane, London W1K 7AG. GPEA Limited. Registered in England & Wales.  Company No: 02819824.  Registered Office Address: 2 St. Stephen's Court, St. Stephen's Road, Bournemouth, Dorset, England, BH2 6LA.  VAT Registration No: 576 8795 61
Book a Property Valuation Update Cookies Preferences