Epsom Road, Guildford, Surrey, GU1

Guide Price
£525,000

3 Bedroom Apartment for sale in Guildford

1 3 2

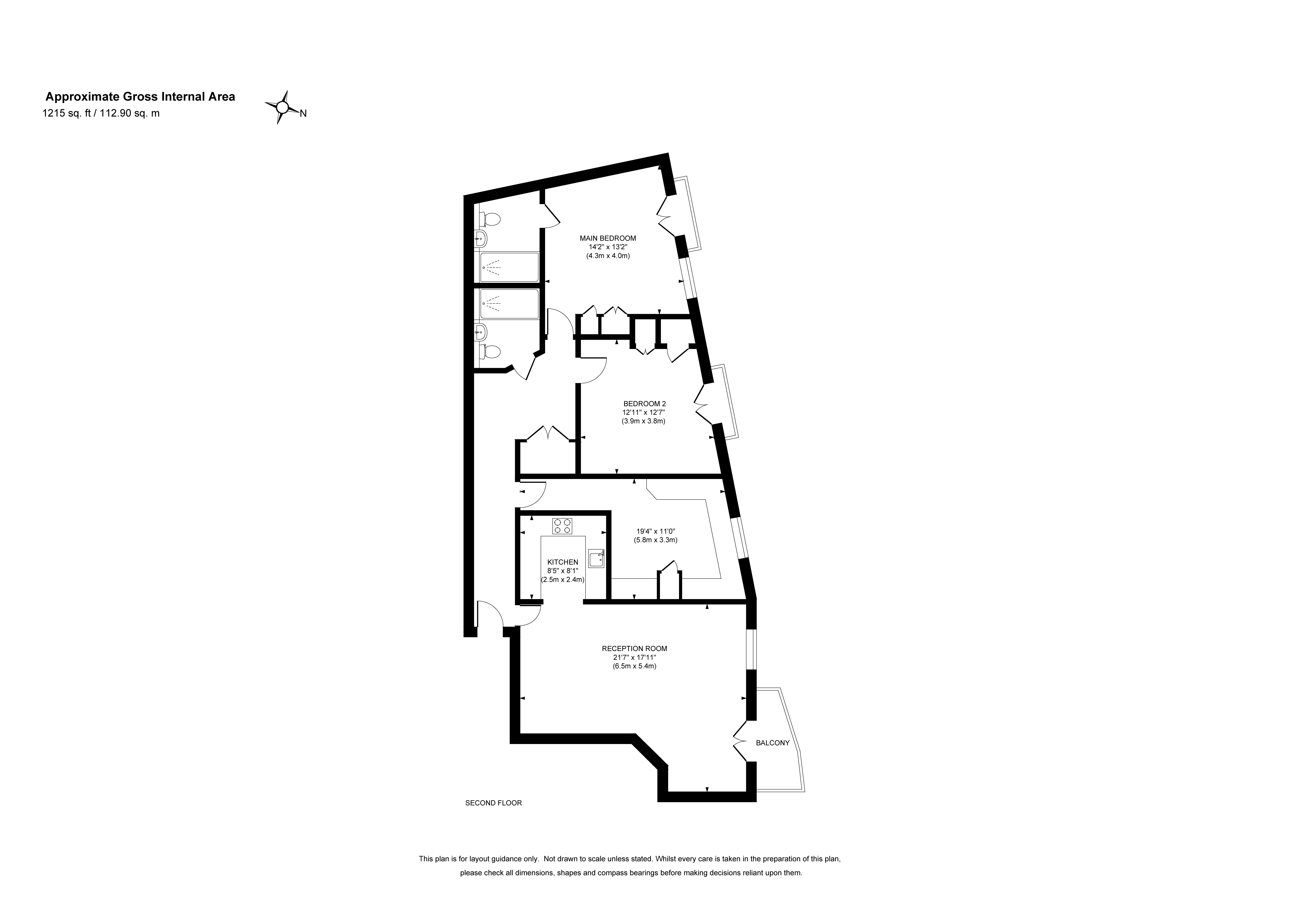
Trinity Gate was sensitively designed to replace the original Odeon Cinema and occupies a wonderfully convenient location, being just 100 yards from Guildford's High Street. This prime positioning ensures easy access to an array of amenities, including shops, restaurants, cultural attractions, and excellent transport links. With its elevated corner position, the apartment benefits from stunning townscape views, enhancing its appeal.The apartment offers a spacious and well-laid-out living space, comprising two generously proportioned bedrooms. The main bedroom is particularly impressive, offering ample space and natural light, while the second bedroom is equally well-sized, making it ideal for guests or a home office. The property also benefits from a modern bathroom and an en-suite to the main bedroom, providing convenience and privacy.A highlight of the apartment is the large reception room, which measures an impressive 17'11" x 17'10" (5.5m x 5.4m), offering a flexible and inviting space for both relaxing and entertaining. The adjoining kitchen is thoughtfully designed, featuring contemporary fittings, ample work surfaces, and integrated appliances, catering to all modern living needs.The property further benefits from a private balcony, offering an outdoor retreat to enjoy the views and fresh air. Additionally, underground allocated parking provides secure and convenient vehicle storage, a valuable asset in such a central location.Guildford is a historic and vibrant town, known for its excellent shopping, leisure, and cultural amenities. Residents can enjoy renowned venues such as the Yvonne Arnaud Theatre, a multiplex cinema, and the G-Live entertainment venue, all within close proximity.Transport links are excellent, with London Road station just 0.3 miles away and Guildford mainline station 0.7 miles from the property, providing fast and frequent services to London. The A3 is a mere 1 mile away, offering easy road access to the M25 (Junction 10) within 7.4 miles. Major airports are also accessible, with Heathrow 21 miles away and Gatwick 25 miles away. Central London is approximately 29 miles from the property, making it a highly convenient location for commuters.

Length of lease: 978 years remainingService charges are approximately £600 PCM, ensuring the upkeep and maintenance of the development's communal areas and facilities. This well-appointed apartment presents a rare opportunity to acquire a stylish and centrally located home in one of Guildford's most sought-after addresses.


Important Information

  • This is a Share of Freehold property.

Property Ref: 417897_GFD220327

Share:

Similar Properties

Guildford, Surrey, GU2

3 Bedroom Detached Bungalow | Guide Price £525,000

This beautifully presented detached three bedroom bungalow is situated in the very popular residential area of Rydes Hil...

Guildford, Surrey, GU2

2 Bedroom Semi-Detached Bungalow | Offers in excess of £525,000

Offered with no onward chain, this charming two bedroom semi-detached bungalow is located in the conservation area of th...

Guildford, Surrey, GU2

3 Bedroom Semi-Detached House | Guide Price £525,000

This beautifully presented three bedroom semi-detached family home has been fully refurbished and carefully maintained....

Chilworth, Guildford, Surrey, GU4

3 Bedroom End of Terrace House | Guide Price £535,000

A well-presented three bedroom, end-terrace family house with a stunning 35'0 open plan kitchen/lounge/dining room with...

Guildford, Surrey, GU1

4 Bedroom Semi-Detached House | Guide Price £535,000

This well-presented four bedroom semi-detached family home offers generous and versatile accommodation arranged over thr...

Guildford, Surrey, GU2

3 Bedroom Semi-Detached House | Guide Price £535,000

This property is a beautifully presented three bedroom home that has been tastefully updated over the years, offering a...

Seymours (Guildford)

Guildford, Surrey, GU1 3BJ

01483 576833

How much is your home worth?

Use our short form to request a valuation of your property.

Request a Valuation

Mortgage Calculator

Amount Borrowed: £
Total Amount Repayable: £
Total Monthly Payment: £
©2025 The Guild of Property Professionals. All rights reserved. Terms and Conditions | Privacy Policy | Cookie Policy | Complaints Policy | Members Login
The Guild of Property Professionals Trading Address: 121 Park Lane, London W1K 7AG. GPEA Limited. Registered in England & Wales.  Company No: 02819824.  Registered Office Address: 2 St. Stephen's Court, St. Stephen's Road, Bournemouth, Dorset, England, BH2 6LA.  VAT Registration No: 576 8795 61
Book a Property Valuation Update Cookies Preferences