Burpham, Guildford, Surrey, GU4

Guide Price
£275,000
SSTC
This property listing is now SSTC

1 Bedroom Semi-Detached House for sale in Guildford

1 1 1
  • Freehold
  • Semi-detached
  • Enclosed front garden
  • Well decorated throughout
  • Allocated parking
  • Close to local amenities
  • Ultrafast broadband available

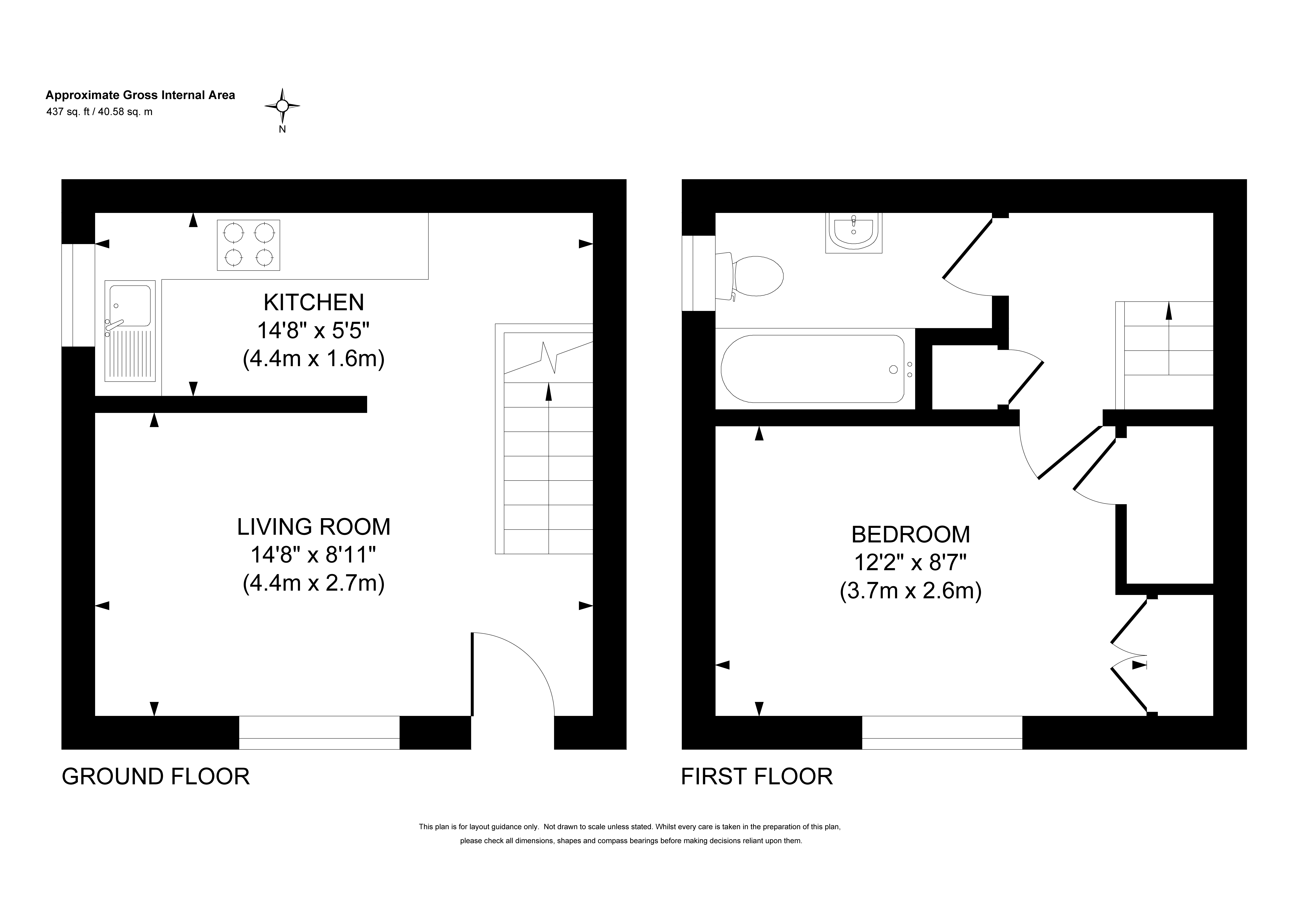
This one-bedroom semi-detached home in Burpham offers a bright and welcoming space, ideal for someone seeking a modern yet low-maintenance property. Positioned at the end of the terrace, it enjoys extra privacy along with its own allocated parking. The home benefits from a private front garden, giving it a charming kerb appeal as well as a practical outdoor retreat.Inside, the ground floor is neutrally decorated, creating a clean and versatile backdrop for personal touches. White walls and wood-effect flooring give the living space a light and airy feel. A peekaboo window connects the living room to the kitchen, making the area feel more open while still defining each space. The kitchen itself is well designed, featuring crisp white cabinetry paired with black granite-style countertops. Generous cupboard space ensures practicality alongside its modern look.Upstairs, the bedroom continues the neutral theme with soft carpeting and white walls, offering a calm and restful environment. A built-in cupboard provides convenient storage. The bathroom is modern and stylish, finished with tiled walls and flooring, and fitted with classic white fixtures for a fresh and contemporary feel.The private front garden has been fully paved, making it both attractive and easy to maintain. Enclosed by fencing for privacy, it offers a pleasant outdoor area with ample space for a table and chairs, perfect for dining al fresco or enjoying a quiet moment outside.

The property is located in the popular Weybrook Park development within walking distance of local shops, schools and Sainsbury's and Aldi superstores. The property is in the catchment area for excellent local schools, including St. Peters Secondary, George Abbot Secondary, Merrow Infants School, Burpham Primary School and Boxgrove Primary School. There are nearby road links with the A3 connecting with the M25 orbital motorway. There are local bus links to Guildford Town with its wide range of shopping and recreational facilities, as well as Guildford mainline train station connecting to London Waterloo.

Important Information

  • This is a Freehold property.

Property Ref: BUR070651

Share:

Similar Properties

Guildford, Surrey, GU4

1 Bedroom Semi-Detached House | Guide Price £275,000

This well-presented semi-detached home in the popular area of Burpham offers bright, comfortable living space that has b...

Guildford, Surrey, GU4

1 Bedroom Semi-Detached House | Guide Price £275,000

This charming semi-detached one-bedroom house in Burpham offers an ideal opportunity for first-time buyers or investors,...

Guildford, Surrey, GU4

2 Bedroom Maisonette | Guide Price £275,000

*NO ONWARD CHAIN*Nestled in the quiet residential setting of Bowers Close, Guildford, this well-presented two-bedroom ma...

Burpham, Guildford, Surrey, GU4

1 Bedroom End of Terrace House | Guide Price £285,000

This well-presented end of terrace house in Burpham offers a bright and comfortable living space, ideal for a single occ...

Merrow Park, Guildford, Surrey, GU4

1 Bedroom End of Terrace House | Guide Price £285,000

This charming one-bedroom house in Woodger Close, Guildford, offers a stylish and contemporary living space. The propert...

Merrow, Guildford, Surrey, GU4

1 Bedroom End of Terrace House | Guide Price £285,000

This charming one-bedroom house in Woodger Close, Guildford, offers a stylish and contemporary living space. The propert...

Seymours (Burpham)

Burpham, Surrey, GU1 1YP

01483 300667

How much is your home worth?

Use our short form to request a valuation of your property.

Request a Valuation

Mortgage Calculator

Amount Borrowed: £
Total Amount Repayable: £
Total Monthly Payment: £
©2026 The Guild of Property Professionals. All rights reserved. Terms and Conditions | Privacy Policy | Cookie Policy | Complaints Policy | Members Login
The Guild of Property Professionals Trading Address: 121 Park Lane, London W1K 7AG. GPEA Limited. Registered in England & Wales.  Company No: 02819824.  Registered Office Address: 2 St. Stephen's Court, St. Stephen's Road, Bournemouth, Dorset, England, BH2 6LA.  VAT Registration No: 576 8795 61
Book a Property Valuation Update Cookies Preferences