Plot 24, The Stableford, Abbots Lea, Hadnall SY4 4AG

Offers in region of
£530,000
SSTC
This property listing is now SSTC

5 Bedroom Detached House for sale in Hadnall

2 5 2
  • Brand new five bedroom home
  • Special packages available for reservations on first release
  • Turf to rear garden.
  • Integrated fridge freezer and dishwasher
  • Double garage

The Stableford is a five-bedroom property designed to impress. From its grand arched doorway and vestibule to the large dual aspect living room with bay window and french doors to the rear garden, this is a spectacular family home.

A spacious open plan kitchen and family room offers a great place to entertain, with bi-fold doors giving easy access to the rear garden. The Stableford's first floor is equally outstanding, featuring a Jack and Jill family bathroom as well as five bedrooms, two of which include contemporary en suite shower rooms. A separate double garage provides secure parking and completes the make up of this home.

Key Features:
Well-connected country location within close proximity to the market town of Shrewsbury
Dual aspect living room with bay window and fireplace
Open plan kitchen and family room with modern bi-fold doors to the garden
Welcoming vestibule
Jack and Jill bathroom
Two en suite bedrooms
End plot location

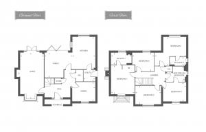
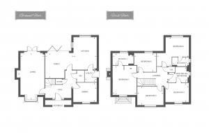
Inside The Property -

Kitchen/Dining/Family - 5.79m'1.22m" x 6.10m'3.35m" (19'4" x 20'11") -

Living - 3.35m'1.22m" x 6.10m'0.30m" (11'4" x 20'1") -

Utility - 0.61m'3.35m" x 1.22m'3.05m" (2'11" x 4'10") -

Study - 3.35m'0.00m" x 2.13m'0.91m" (11'0" x 7'3") -

Bedroom 1 - 4.88m'3.35m" x 3.35m'1.52m" (16'11" x 11'5") -

En Suite - 3.05m'0.00m" x 1.22m'2.13m" (10'0" x 4'7") -

Bedroom 2 - 3.35m'0.61m" x 3.05m'1.52m" (11'2" x 10'5") -

En Suite - 2.44m'0.61m" x 1.22m'1.83m" (8'2" x 4'6") -

Bedroom 3 - 3.35m'1.83m" x 3.05m'1.22m" (11'6" x 10'4") -

Bedroom 4 - 3.05m'2.74m" x 1.83m'3.35m" (10'9" x 6'11") -

Bathroom - 2.13m'0.61m" x 1.83m'1.22m" (7'2" x 6'4") -

Key Features

Well-connected country location within close proximity to the market town of Shrewsbury
Spacious open plan kitchen/dining room with large bay window and bi-fold doors to the rear garden
Separate study
French doors to the rear garden from the living room
Elegant main bathroom
End plot location

Washing machine and dishwasher plumbing points
Cottage-style, five-panel internal doors
External entrance lighting to the front
Shaver point in the master en suite
Compact style radiators
Optional log burner
Turf to the rear garden

*Images depict typical Galliers interiors; finishes and specification may be subject to change?
Specification

Property Ref: 28820635

Share:

Similar Properties

12 St. Georges Gardens, Pontesbury, Shrewsbury, SY5 0TB

4 Bedroom Detached House | Offers in region of £525,000

Situated within a quiet and exclusive cul-de-sac in the sought-after village of Pontesbury, this superior four-bedroom d...

9 Cavendish Close, Bicton Heath, Shrewsbury, SY3 5PG

5 Bedroom Detached House | Offers in region of £525,000

This superior five bedroom detached family home provides well planned and well proportioned accommodation with rooms of...

40 Mytton Oak Road, Shrewsbury, SY3 8UD

4 Bedroom Semi-Detached House | Offers in region of £525,000

A truly immaculate, much improved and extended four bedroom family house, presented throughout to an exacting standard a...

20 Old Coppice, Lyth Hill, Lyth Bank, Shrewsbury, SY3 0BP

4 Bedroom Detached Bungalow | Offers in region of £539,000

This neat, spacious and well presented dormer bungalow, provides well proportioned accommodation throughout, briefly com...

28 Alison Road, Church Stretton, SY6 7AT

3 Bedroom Detached Bungalow | Offers in region of £545,000

This well appointed detached dormer bungalow offers spacious and versatile accommodation arranged over two floors, brief...

5 New College Road, Shrewsbury, SY2 6PU

3 Bedroom Detached House | Offers in region of £550,000

This three bedroom detached property is presented throughout to an exacting standard and provides well planned and well...

Miller Evans (Shrewsbury)

Shrewsbury, Shropshire, SY1 1QJ

01743 236800

How much is your home worth?

Use our short form to request a valuation of your property.

Request a Valuation

Mortgage Calculator

Amount Borrowed: £
Total Amount Repayable: £
Total Monthly Payment: £
©2026 The Guild of Property Professionals. All rights reserved. Terms and Conditions | Privacy Policy | Cookie Policy | Complaints Policy | Members Login
The Guild of Property Professionals Trading Address: 121 Park Lane, London W1K 7AG. GPEA Limited. Registered in England & Wales.  Company No: 02819824.  Registered Office Address: 2 St. Stephen's Court, St. Stephen's Road, Bournemouth, Dorset, England, BH2 6LA.  VAT Registration No: 576 8795 61
Book a Property Valuation Update Cookies Preferences