Lymington Road, Lymington

Guide Price
£575,000

2 Bedroom Detached Bungalow for sale in Hampshire

1 2 1
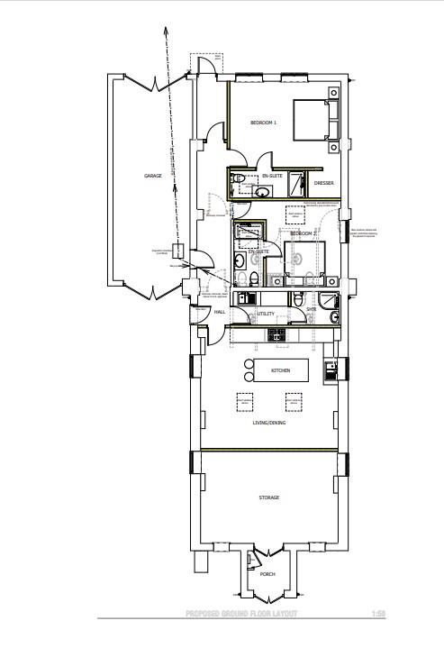
  • Charming Detached Former Chapel Attractive Elevations Planning Permission to Convert to a Residential Dwelling Ample Parking and Large Attached Garage Enclose Rear Garden Superb Location Adjacent...

THE PRESENT ACCOMMODATION COMPRISES:

(All measurements are approximate)

Entrance Vestibule

Double timer doors and tiled flooring, storage cupboard with glazed doors leading to

Room One 28’ x 18’8

High vaulted ceiling with exposed beamwork.

Kitchenette

Floor standing and wall mounted cupboards and drawers with a single bowl sink unit.

Two Separate Cloakrooms

Wc and wash basin.

Boiler Room

Oil fired boiler, passageway leading to

Inner Hallway

Door to

Room Two 21’ x 20’10

Kitchenette

Single bowl single drainer sink unit, storage cupboard

Two Separate Cloakrooms

Wc and wash basin

Door to Rear Garden

Attached Garage 30’ x 10’11

Double doors to front and rear

Outside

The property fronts the open forest and has a cattle grid leading down the side to a parking space and onto the garage. To the rear is an enclosed area of garden. Please follow the NPA planning link for full plans.

Council Tax – tba EPC Rating - tba

Please follow the NPA planning link for full plans.

https://planning.agileapplications.co.uk/nfnpa/application-details/100570

Important Information

  • This is a Freehold property.
  • EPC Rating is C

Property Ref: LYM250068

Share:

Similar Properties

Vitre Gardens, Lymington

3 Bedroom Detached House | Guide Price £575,000

**CHAIN FREE** A popular three bedroom family house which has a good balance of accommodation, being situated in a quiet...

Nursery Grove, Pennington

3 Bedroom Detached House | Guide Price £575,000

Nursery Grove is an exclusive small close of properties adjacent to Pennington Common and enjoys a highly convenient and...

The Ostlers, Hordle

4 Bedroom Detached House | Guide Price £570,000

A beautifully presented detached four bedroom family house which has an excellent balance of accommodation and being off...

The Rings, Lymington

4 Bedroom Detached House | Guide Price £579,950

A spacious four bedroom detached house being offered in excellent order throughout, being one of four properties in this...

Paddock Gardens, Lymington

3 Bedroom End of Terrace House | Guide Price £580,000

An immaculate three-bedroom end-terrace home in a quiet cul-de-sac, a short walk from Lymington High Street, Waitrose an...

Brook Road, Lymington

2 Bedroom Detached House | Guide Price £595,000

**NO FORWARD CHAIN** A charming detached two bedroom house located in a highly sought after area and within walking dist...

Hayward Fox (Lymington)

85 High Street, Lymington, Hampshire, SO41 9AN

01590 675424

How much is your home worth?

Use our short form to request a valuation of your property.

Request a Valuation

Mortgage Calculator

Amount Borrowed: £
Total Amount Repayable: £
Total Monthly Payment: £
©2026 The Guild of Property Professionals. All rights reserved. Terms and Conditions | Privacy Policy | Cookie Policy | Complaints Policy | Members Login
The Guild of Property Professionals Trading Address: 121 Park Lane, London W1K 7AG. GPEA Limited. Registered in England & Wales.  Company No: 02819824.  Registered Office Address: 2 St. Stephen's Court, St. Stephen's Road, Bournemouth, Dorset, England, BH2 6LA.  VAT Registration No: 576 8795 61
Book a Property Valuation Update Cookies Preferences