Whitefield Road, New Milton

Guide Price
£550,000

Not Specified for sale in Hampshire

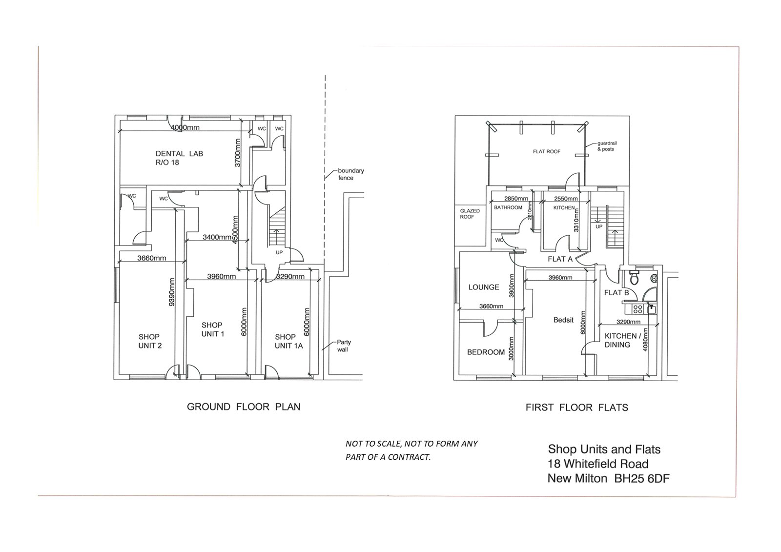
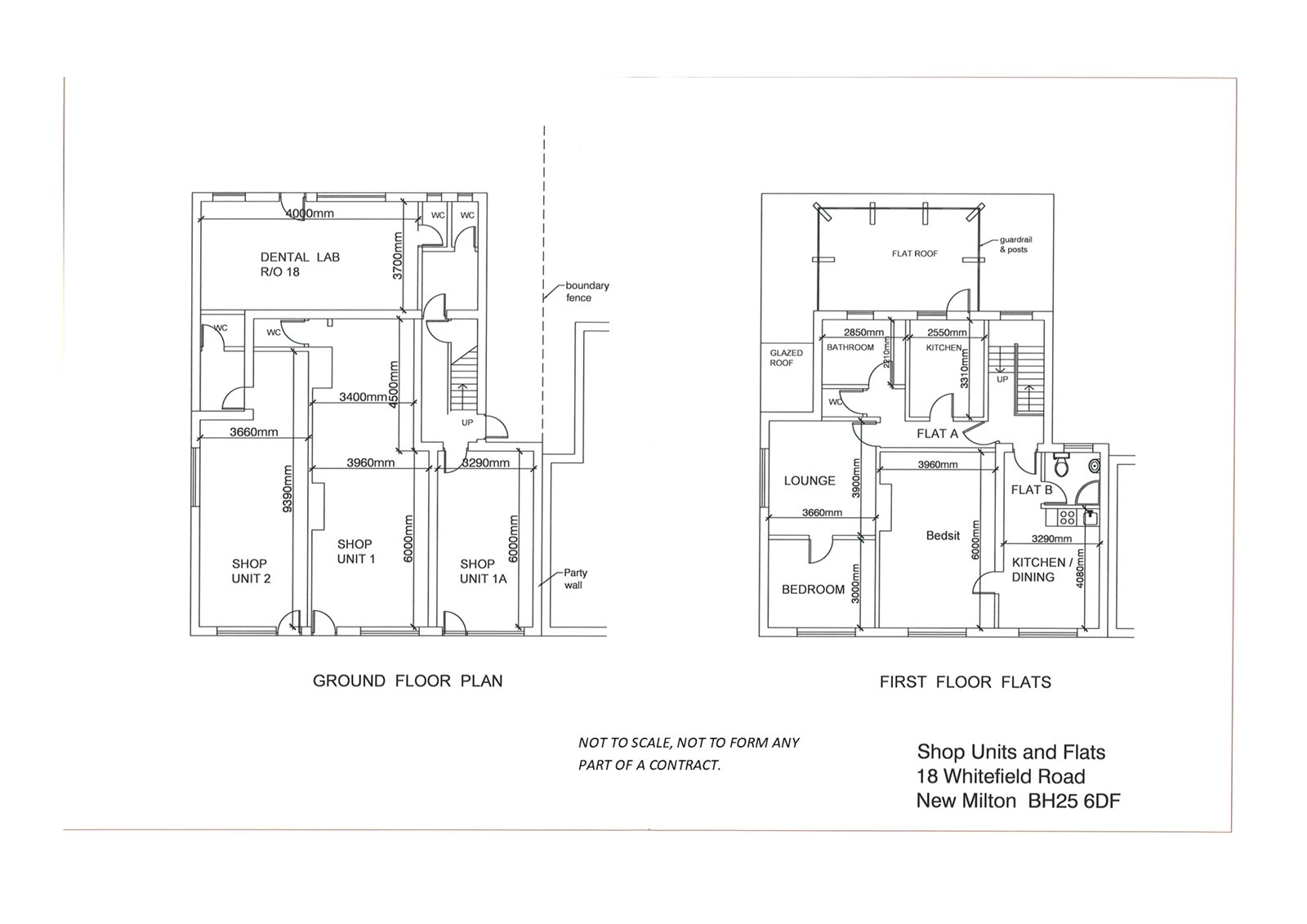
Accommodation in Detail

UNIT ONE: 35'7" x 12'11" (10.85m x 3.94m)

With kitchen area and rear cloakroom. Currently vacant.

UNIT TWO: 23' x 11'5" (7m x 3.48m)

Main room

Rear Office 7'11" x 6'11" (2.41m x 2.1m)

Door to rear kitchen area and cloakroom. Currently tenanted.

UNIT 1A: 18'8" x 9'8" (5.7m x 2.95m)

Rear store and access to cloakroom.

REAR OF 18: Currently tenanted and used as a dental lab)

Main Office 12'9" x 12' (3.89m x 3.66m)

Second Office 12'6" x 10'6" (3.8m x 3.2m)

Door to cloakroom.

Rear communal access with stairs to first floor.

Stairs lead to first floor landing.

Front door to entrance hall.

Flat B

(Currently tenanted)

Kitchen/Sitting Room 13'4" x 11'6" (4.06m x 3.5m)

With kitchen area, window to front.

Bedroom One 13' x 6'8" (3.96m x 2.03m)

Window to front. Inter-connecting door to:

Bedroom Two 12'4" x 11'9" (3.76m x 3.58m)

Separate Shower Room

With low level w.c., corner tiled shower cubicle, window to rear.

Flat A

(Currently tenanted)

Entrance Hall

Kitchen 11'2" x 9'2" (3.4m x 2.8m)

Window and door to rear patio terrace.

Sitting Room 12'9" x 12'2" (3.89m x 3.7m)

Window to side.

Bedroom 12'1" x 9'4" (3.68m x 2.84m)

Window to front.

Bathroom

Pedestal wash hand basin, bath, window to rear.

Separate WC

Comprising low level w.c., window to side.

Outside

Pedestrian access to the rear of the property with good sized gardens, laid predominately to lawn with mature shrubbery. Second area of garden to the rear.

Property Ref: NEM250124

Share:

Similar Properties

Ashley Lane, New Milton

3 Bedroom Detached House | Offers in excess of £550,000

An older style detached characterful three bedroom/two reception room house with attached annexe, set in south facing ga...

Oakwood Avenue, New Milton

4 Bedroom Detached House | Asking Price £548,500

Set in superb west facing gardens, a very well maintained three/four bedroom detached chalet bungalow with impressive si...

Warwick Avenue, New Milton

5 Bedroom Detached House | Asking Price £540,000

An internal inspection is highly recommended to appreciate the spacious accommodation on offer in this five bedroom, fou...

Lavender Road, Hordle

4 Bedroom Detached House | Asking Price £568,000

*OUTSTANDING COUNTRYSIDE VIEWS - SOUTH WEST FACING GARDENS* A deceptively spacious four bedroom chalet, providing well b...

Marley Avenue, New Milton

3 Bedroom Detached House | Asking Price £575,000

A characterful detached three bedroom chalet style bungalow with excellent sized living spaces, situated in a quiet loca...

Albert Road, New Milton

4 Bedroom Detached House | Asking Price £575,000

A characterful detached four bedroom house with superb kitchen/family dining room and rear conservatory, set in good siz...

Hayward Fox (New Milton)

17-19 Old Milton, New Milton, Hampshire, BH25 6DQ

01425 638656

How much is your home worth?

Use our short form to request a valuation of your property.

Request a Valuation

Mortgage Calculator

Amount Borrowed: £
Total Amount Repayable: £
Total Monthly Payment: £
©2026 The Guild of Property Professionals. All rights reserved. Terms and Conditions | Privacy Policy | Cookie Policy | Complaints Policy | Members Login
The Guild of Property Professionals Trading Address: 121 Park Lane, London W1K 7AG. GPEA Limited. Registered in England & Wales.  Company No: 02819824.  Registered Office Address: 2 St. Stephen's Court, St. Stephen's Road, Bournemouth, Dorset, England, BH2 6LA.  VAT Registration No: 576 8795 61
Book a Property Valuation Update Cookies Preferences